Otley Road, Skipton, North Yorkshire, BD23
Property Details
3
End of Terrace
Description
Property Details: • Type: End of Terrace • Tenure: FREEHOLD • Floor Area: N/A
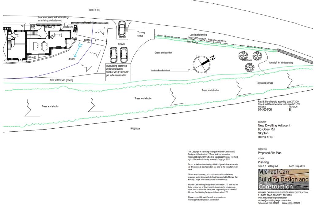
Key Features: • Three-bedroom end town house built in 2012, within level walking distance of Skipton town centre • Unusually generous gardens for a modern town property • Land extending across Eller Beck via private timber bridge • Planning permission already granted to erect a four-bedroom dwelling • Further development potential (subject to the necessary consents) • Ideal purchase for buyers seeking a home with genuine long-term upside and investment opportunity
Location: • Nearest Station: Skipton Station • Distance to Station: 1.0311528048201966 miles
Agent Information: • Address: 84 High Street, Skipton, BD23 1JH
Full Description: Three-bedroom end town house offering generous accommodation, unusually large gardens and significant long-term potential.<br /><br />Built in 2012 and now a well-established home, number 86 provides modern construction and practical living space within walking distance of town - but what truly sets it apart is the scale of land that accompanies it and the planning permission already in place.<br /><br />Opportunities combining a comfortable home with genuine development upside are rare in this location.<br /><br /> Location <br />Positioned on Otley Road, the property enjoys a level setting within comfortable walking distance of Skipton town centre. Shops, schools and everyday amenities are all close by, while the outlook across Eller Beck towards woodland gives an open feel. Convenience and outside space rarely come together like this so close to the centre.<br /><br />Ground Floor <br />Entrance hall with space for coats and access to a cloakroom fitted with WC and pedestal corner basin. Dining kitchen fitted with a range of gloss cream wall and base units with granite-effect worktops and integrated Lamona appliances including washer-dryer, slimline dishwasher and fridge freezer. Under-mounted oven with four-ring gas hob and canopy hood over. Dual aspect windows provide good natural light, with space for a breakfast table. Sitting room of good proportions with sliding glazed doors opening directly onto the patio and garden, creating an easy connection to the outside space. Pleasant outlook across Eller Beck enhances the sense of openness. Gas-fired central heating and double glazing throughout.<br /><br />First Floor <br />Landing with loft access (partially boarded) and useful over-stairs storage cupboard. Bedroom one positioned to the front with space for a double bed and bedroom furniture. Bedroom two to the rear, similar in size and enjoying long-distance views towards Skipton Moor. Bedroom three offers flexibility as a single bedroom, nursery or home office. House bathroom fitted with panelled bath and thermostatic shower over, WC, pedestal basin and chrome heated towel rail.<br /><br />External <br />Gardens are the standout feature here. Immediate patio and lawned garden can be accessed from both Otley Road and directly from the living room, providing private outdoor seating space alongside Eller Beck. A timber bridge crosses the beck to reveal a substantial additional area of land — highly unusual for a property within walking distance of town. This space offers excellent scope for those interested in gardening, growing produce or simply enjoying a much larger outdoor area than typically found with modern homes. Allocated parking space situated along the row.<br /><br />Planning & Future Potential <br />Planning permission has already been granted to erect a four-bedroom dwelling on part of the external land. This creates a clear and tangible development opportunity from day one. In addition, the extensive land across the bridge offers further scope, subject to the necessary consents. The size of the plot opens up possibilities that are simply not available with most town properties — whether that be additional development, long-term investment, or creating a more substantial residential footprint. For buyers looking beyond a standard three-bedroom home and wanting flexibility, upside and genuine future potential, this property offers a rare opportunity within Skipton.<br /><br />PLEASE NOTE <br />The extent of the property and its boundaries are subject to verification by inspection of the title deeds. The measurements in these particulars are approximate and have been provided for guidance purposes only. The fixtures, fittings and appliances have not been tested and therefore no guarantee can be given that they are in working order. The internal photographs used in these particulars are reproduced for general information and it cannot be inferred that any item is included in the sale.<br /><br />MONEY LAUNDERING, TERRORIST FINANCING AND TRANSFER OF FUNDS REGULATIONS 2017 <br />To enable us to comply with the expanded Money Laundering Regulations we are required to obtain identification from prospective buyers once a price and terms have been agreed on a purchase. Buyers are asked to please assist with this so that there is no delay in agreeing a sale. The cost payable by the successful buyer for this is £50 +VAT per named buyer and is paid to the firm who administer the money laundering ID checks, being Iamproperty / Movebutler. Please note the property will not be marked as sold subject to contract until the appropriate identification has been provided.<br /><br />FINANCIAL SERVICES <br />Linley and Simpson Sales Limited trading as Hardisty are Introducer Appointed Representatives of Mortgage Advice Bureau Limited and Mortgage Advice Bureau (Derby) Limited who are authorised and regulated by the Financial Conduct Authority. We routinely refer buyers to Mortgage Advice Bureau Limited. We receive a maximum of £30 per referral.<br /><br />SERVICES – Disclosure of Financial Interests <br />Unless instructed otherwise, the company would normally offer all clients, applicants, and prospective purchasers its full range of estate agency services, including the valuation of their present property and sales service. We also intend to offer clients, applicants and prospective purchasers' mortgage and financial services advice through our association with Mortgage Advice Bureau. We will also offer to clients and prospective purchasers the services of our panel solicitors, removers, and contactors. We would normally be entitled to commission or fees for such services and disclosure of all our financial interests can be found on our website.<br /><br />BROCHURE DETAILS <br />Hardisty and Co prepared these details, including photography, in accordance with our estate agency agreement.<br /><br />
Location
Address
Otley Road, Skipton, North Yorkshire, BD23
City
North Yorkshire
Features and Finishes
Three-bedroom end town house built in 2012, within level walking distance of Skipton town centre, Unusually generous gardens for a modern town property, Land extending across Eller Beck via private timber bridge, Planning permission already granted to erect a four-bedroom dwelling, Further development potential (subject to the necessary consents), Ideal purchase for buyers seeking a home with genuine long-term upside and investment opportunity
Legal Notice
Our comprehensive database is populated by our meticulous research and analysis of public data. MirrorRealEstate strives for accuracy and we make every effort to verify the information. However, MirrorRealEstate is not liable for the use or misuse of the site's information. The information displayed on MirrorRealEstate.com is for reference only.