Outwood Lane, Chipstead, Coulsdon
Property Details
Plot
Description
Property Details: • Type: Plot • Tenure: N/A • Floor Area: N/A
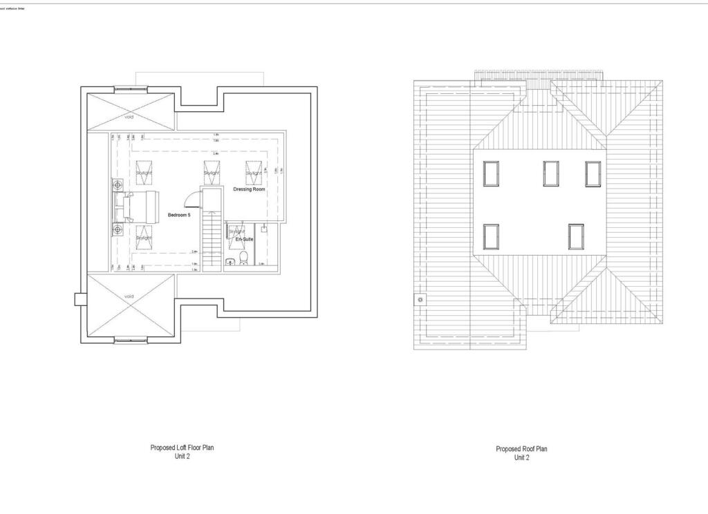
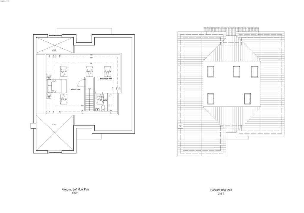
Key Features: • Residential Development • Planning Permission Granted For A Pair Of Detached Houses • Two New Homes Circa 3300 Sq Ft • Visit Reigate & Bantead Website Ref. No - 22/01461/F • Accommodation Approved - Five Bedrooms, Three Bath/Shower Rooms • Two Reception Rooms & Office • Open-Plan Kitchen/Dining/Family Room • Located Close To Chipstead Village & Railway Station • CIL Payment Of £113,000
Location: • Nearest Station: Chipstead Station • Distance to Station: 0.3 miles
Agent Information: • Address: The Estate Office, Woodland Way, Kingswood, Surrey, KT20 6HS
Full Description: Opportunity to purchase this plot of land with planning permission granted to construct a pair of five bedroom detached homes measuring circa 3300 sq ft each. The plot is located within walking distance of Chipstead village, Chipstead railway station and the Ramblers Rest public house. The accommodation which has been approved comprises of five bedrooms, two reception rooms, an open-plan kitchen/family/dining room, a study, a utility room, four bath/shower rooms and a carport. Visit Reigate & Bantead website Ref. No: 22/01461/FChipstead station is within walking distance and providing routes to London Bridge, Victoria, Gatwick and the south coast. Trains from Coulsdon South to London Bridge take approximately 20 minutes. Chipstead is surrounded by open countryside ideal for walking and equestrian pursuits providing good riding and exceptional hacking. In terms of road communications the nearby A23 leads to the M25 (junction 7) and into London whilst, for the frequent traveller, Gatwick Airport is approximately 14 miles to the south. Locally there is a good choice of state and independent schools and the village is a vibrant location with a drama club and active sports clubs, including rugby, golf, tennis and football. The nearby towns of Reigate and Banstead also provide a comprehensive range of shops, boutiques, cafes and restaurants, including Waitrose and Marks & Spencer.BrochuresOutwood Lane, Chipstead, CoulsdonBrochure
Location
Address
Outwood Lane, Chipstead, Coulsdon
City
London
Features and Finishes
Residential Development, Planning Permission Granted For A Pair Of Detached Houses, Two New Homes Circa 3300 Sq Ft, Visit Reigate & Bantead Website Ref. No - 22/01461/F, Accommodation Approved - Five Bedrooms, Three Bath/Shower Rooms, Two Reception Rooms & Office, Open-Plan Kitchen/Dining/Family Room, Located Close To Chipstead Village & Railway Station, CIL Payment Of £113,000
Legal Notice
Our comprehensive database is populated by our meticulous research and analysis of public data. MirrorRealEstate strives for accuracy and we make every effort to verify the information. However, MirrorRealEstate is not liable for the use or misuse of the site's information. The information displayed on MirrorRealEstate.com is for reference only.