Pasture Lane, Clayton, Bradford, BD14 6LU

GBP 1200000 For Sale

Property Details

Property Type

N/A

Description

Property Details: • Type: N/A • Tenure: N/A • Floor Area: N/A

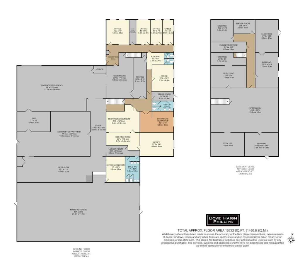
Key Features: • New internal refurbishment • 2 x ground level loading doors • Metal clad roof • High quality offices with boardroom facilities

Location: • Nearest Station: N/A • Distance to Station: N/A

Agent Information: • Address: 11 Park Square East, Leeds, LS1 2NG

Full Description: The property comprises a detached manufacturing building which has recently been fully refurbished internally and in brief provides the following specification:- Metal clad roof- 3 Phase electricity supply- Solid concrete floor- 2 x ground level loading doors- 3-3.5 minimum eaves height- Reznor gas blowers to workshop- High quality offices with boardroom facillities.The property is located in Clayton, a village situated 3 miles west of Bradford city centre. The A6177 Bradford Outer Ring Road is located less than 0.5 miles from the property to the east and the A6036 Halifax Road to the south, which are served by Clayton Road and Cooper Lane respectively. Junction 3 of the M606 is located approximately 3 miles south east of the property which provides convenient access to the M62 motorway and the wider motorway network. Thermocable is located on the southern side of Pasture Lane less and 0.25 miles from the centre of Clayton village.

Location

Address

Pasture Lane, Clayton, Bradford, BD14 6LU

City

Bradford

Features and Finishes

New internal refurbishment, 2 x ground level loading doors, Metal clad roof, High quality offices with boardroom facilities

Legal Notice

Our comprehensive database is populated by our meticulous research and analysis of public data. MirrorRealEstate strives for accuracy and we make every effort to verify the information. However, MirrorRealEstate is not liable for the use or misuse of the site's information. The information displayed on MirrorRealEstate.com is for reference only.

Real Estate Broker
Dove Haigh Phillips LLP, Leeds
Brokerage
Dove Haigh Phillips LLP, Leeds
Top Tags
Metal clad roof
Likes

0

Views

35

This website uses cookies to ensure you get the best experience. Learn more