Pembroke Road, Bournemouth, BH4

GBP 360000 For Sale

Property Details

Bedrooms

3

Bathrooms

1

Property Type

Apartment

Description

Property Details: • Type: Apartment • Tenure: N/A • Floor Area: N/A

Key Features: • No Chain - Quick Move Possible • Garden (Optional) • Stunning Property • Spacious First (Top) Floor Apartment • Three Bedrooms • Large Lounge/Diner • Two Allocated Parking Spaces • Large Loft Space (Suitable For Conversion) • Sought After Alum Chine Location • Share Of Freehold/980 Year Lease

Location: • Nearest Station: N/A • Distance to Station: N/A

Agent Information: • Address: Purplebricks, 650 The Crescent Colchester Business Park, Colchester, United Kingdom, CO4 9YQ

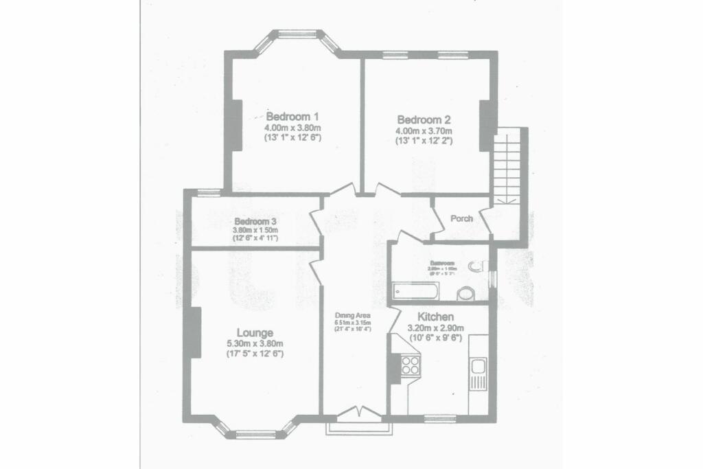
Full Description: The Property*** No Chain - Quick Sale Possible *****Potential to purchase garden space**Large 3 bedroom first (top) floor flat in Alum Chine. The property offers 2 parking spaces and is offered for sale chain free. This stunning and larger than average 3 bedroom top floor apartment, is situated in the sought after location of Alum Chine, close to the beach, The Chine, and Westbourne.External staircase leading to a private entrance and hallway. The large lounge/diner features a feature open fireplace, creating a cosy and inviting atmosphere. Additionally, there is a very large master bedroom with a feature fireplace, a second large double bedroom, and a long single third bedroom. The modern fitted kitchen comes with appliances, and there is a reception/study/dining area leading from the kitchen/hallway with a glass Juliet balcony.The property also includes a modern bathroom with a shower over the bath, gas central heating, double glazing, neutral decoration, and a large loft space considered suitable for conversion, subject to planning permission. The council tax band for this property is B.We highly recommend an internal viewing to fully appreciate the size and location of this impressive property.Please feel free to contact us if you have any further questions or would like to arrange a viewing. Property ownership informationGround rent review period: No review periodService charge review period: No review periodLease end date: 27/01/3004Property Description DisclaimerThis is a general description of the property only, and is not intended to constitute part of an offer or contract. It has been verified by the seller(s), unless marked as 'draft'. Purplebricks conducts some valuations online and some of our customers prepare their own property descriptions, so if you decide to proceed with a viewing or an offer, please note this information may have been provided solely by the vendor, and we may not have been able to visit the property to confirm it. If you require clarification on any point then please contact us, especially if you’re traveling some distance to view. All information should be checked by your solicitor prior to exchange of contracts.Successful buyers will be required to complete anti-money laundering checks. Our partner, Lifetime Legal Limited, will carry out the initial checks on our behalf. The current non-refundable cost is £80 inc. VAT per offer. You’ll need to pay this to Lifetime Legal and complete all checks before we can issue a memorandum of sale. The cost includes obtaining relevant data and any manual checks and monitoring which might be required, and includes a range of benefits. Purplebricks will receive some of the fee taken by Lifetime Legal to compensate for its role in providing these checks.BrochuresBrochure

Location

Address

Pembroke Road, Bournemouth, BH4

City

Poole

Features and Finishes

No Chain - Quick Move Possible, Garden (Optional), Stunning Property, Spacious First (Top) Floor Apartment, Three Bedrooms, Large Lounge/Diner, Two Allocated Parking Spaces, Large Loft Space (Suitable For Conversion), Sought After Alum Chine Location, Share Of Freehold/980 Year Lease

Legal Notice

Our comprehensive database is populated by our meticulous research and analysis of public data. MirrorRealEstate strives for accuracy and we make every effort to verify the information. However, MirrorRealEstate is not liable for the use or misuse of the site's information. The information displayed on MirrorRealEstate.com is for reference only.

Real Estate Broker
Purplebricks, covering Bournemouth
Brokerage
Purplebricks, covering Bournemouth
Top Tags
Likes

0

Views

45

This website uses cookies to ensure you get the best experience. Learn more