Penn Lane, Tanworth-In-Arden

GBP 675000 For Sale

Property Details

Bedrooms

3

Bathrooms

2

Property Type

House

Description

Property Details: • Type: House • Tenure: N/A • Floor Area: N/A

Key Features: • A opportunity to develop the Outbuilding subject to obtain planning permission. • Great potential to refit and refurbish • In a lovely rural setting surrounded by similar properties • Accessed via a lovely long private tree lined drive

Location: • Nearest Station: N/A • Distance to Station: N/A

Agent Information: • Address: 74 High Street, Henley-In-Arden, B95 5BX

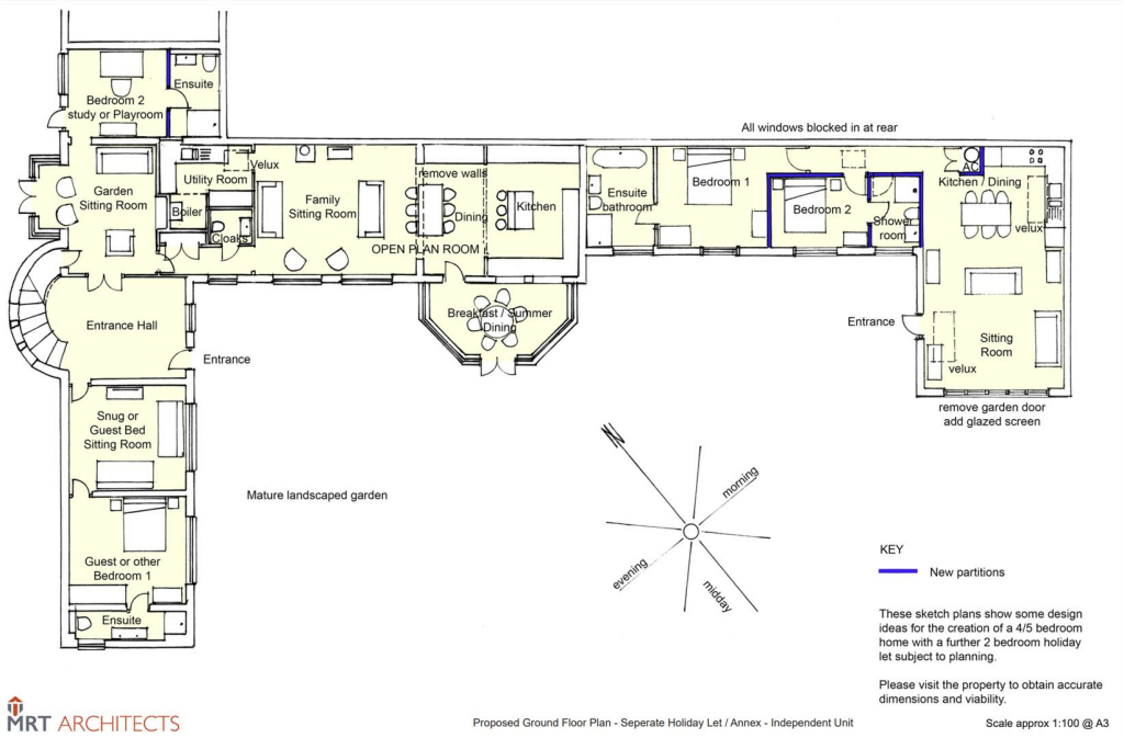
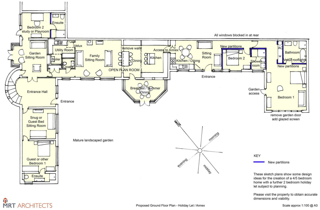
Full Description: Introduction - The bringing to the market of Ladbrook Cottage by public auction (subject to prior sale) presents a lovely opportunity for a new owner to alter, change, develop, and create for themselves a fascinating home within the Ladbrook Hall Estate. The property, which was formerly a Victorian coach house, is situated at the end of a long, private driveway and therefore, is set well back from the public highway in a secluded area of Tanworth-in-Arden. In the following pages, there are some plans prepared by MRT Architects, which show how the internal layout could be altered, if required, into residential annexes for family use or for holiday let purposes. The architects' planning consultant has stated that the alterations being suggested are possible without the need for planning permission from the local authority and the conversion of the single storey outbuildings into an annexe or holiday let unit seem to comply with planning policies contained within Stratford-on-Avon District Council's core strategy policy document. For further advise or assistance on the proposed alteration/redevelopment ideas, please contact MRT Architects / ).The Ladbrook Hall Estate lies within the Parish of Tanworth-in-Arden and is only a short distance from the A435 dual carriageway, which, in turn, gives links to the M5, M40 and M42 motorways. The nearest railway station ("Wood End") offers regular trains to Stratford-upon-Avon, Henley-in-Arden and Birmingham City Centre. Tanworth-in-Arden is a charming village with an active local community and provides such facilities as The Bell (pub and restaurant), highly regarded primary school with nursery, 13th Century parish church, village hall, and golf and tennis clubs.This property is approached from the driveway through a pair of timber gates onto a paved parking and turning area. A paved pathway leads through the very formal foregardens with box hedged enclosures with specimen topiaried, variegated holly trees. The front door, with matching glazed panel to the side, opens into:Entrance Hall - 6.30m (max) x 3.60m (20'8" (max) x 11'9") - With curved mahogany tread staircase rising to the first floor and modern quarry tiled flooring. A pair of casement doors open into:Dining Room - 4.60m x 4.40m (15'1" x 14'5") - With a pair of casement doors leading to the sun terrace and gardens, recess fireplace with inset wood burner, and modern quarry tiled flooring.Bedroom - 3.40m x 3.00m (11'1" x 9'10") - With part glazed PVC door leading to the sun terrace and gardens. Door into:En-Suite Bathroom - 2.90m x 2.60m (max) (9'6" x 8'6" (max)) - With 3-piece suite comprising; panelled bath with glazed screen, central mixer tap, telephone-style shower attachment and separate “Mira” electric shower over, low level WC, pedestal wash hand basin, extractor fan, tiling to splashback areas, and electric panel heater.Inner Hallway - 2.80m x 1.20m (9'2" x 3'11") - With modern quarry tiled flooring. Double doors into:Storage Cupboard - With fitted shelving.Boiler Area - Housing the “Worcester Bosch” oil-fired central heating and hot water boiler with wall mounted timer clock.Living Room - 5.80m x 4.60m (19'0" x 15'1") - With door leading to walkway to storage cupboard, wood burner with gas supply and modern quarry tiled flooring.Inner Hallway - 4.70m (max) x 2.20m (15'5" (max) x 7'2") - With a pair of double doors leading to built-in wardrobes and modern quarry tiled flooring. Door into:Conservatory - 5.00m x 2.80m (16'4" x 9'2") - With timber casement double glazed windows to three sides, all set above low brick walls.Kitchen - 4.40m x 3.20m (14'5" x 10'5") - With a range of wall, drawer and base units with wooden work surfaces over, inset double bowl single drainer sink with mixer tap over, and modern quarry tiled flooring.From the entrance hall, there is a door into:Bedroom - 4.20m x 3.60m (13'9" x 11'9") - With UPVC double glazed window.Bedroom - 4.00m x 3.60m (13'1" x 11'9") - With UPVC double glazed window. Door into:En-Suite Shower Room - 4.20m (max) x 1.00m (13'9" (max) x 3'3") - With 3-piece suite comprising; shower cubicle with glazed door and shower attachment over, low level WC, cantilever wash hand basin, tiling to splashback areas, and chrome ladder-style heater towel rail.First Floor Central Landing - Door into:Main Bedroom Suite - •Bedroom Area - 3.60m x 3.20m (11'9" x 10'5") - With UPVC double glazed window.•Bathroom - 3.40m x 3.20m (11'1" x 10'5") - With cast iron bath, pedestal wash hand basin, extractor fan, electric shaver point, and wall mounted “Dimplex” downdraft heater. Door to:•Wardrobe Room - 2.10m x 1.90m (6'10" x 6'2") - With a range of built-in wardrobes with hanging rails and shoe racks below.•Cloakroom - With low level WC.Bedroom Or Family Room - 7.70m x 4.30m (25'3" x 14'1") - With wealth of exposed main roof trusses timbers, UPVC double glazed windows, and feature ornate fireplace.Dressing Room - 4.30m x 3.60m (14'1" x 11'9") - With double glazed window. Door into:En-Suite Shower Room - With 3-piece suite comprising; shower cubicle with “Mira” electric shower over, low level WC, pedestal wash hand basin, tiling to splashback areas, and “Dimplex” downdraft heater.Formal Gardens - Designed in 2000 by Debra Deane.Outbuildings - A range of single storey outbuilding of brick and tile construction adjoining the property to the East.Former Tank Room - 3.70m x 3.10m (12'1" x 10'2") - With windows to the front and rear.Workshop One - 6.00m x 3.80m (19'8" x 12'5") - With exposed roof trusses, purlins and rafters.Workshop Two - 3.70m x 2.80m (12'1" x 9'2") - With exposed purlins and rafters, window to the rear, and two old feeding troughs. Door into:Garage - 8.80m x 5.20m (28'10" x 17'0") - With electronically operated roll-up door to the front driveway and concrete floor.General Information - Services - Prospective purchasers should make their own enquiries with the appropriate utility companies for the verification as to the availability (or otherwise) of services. That being said, we understand that mains drainage, electricity and water are connected to the property.Authorities - National Grid ( Severn Trent Water ( Stratford-on-Avon District Council ( Warwickshire County Council ( Tenure And Possession - The property is Freehold and vacant possession will be given upon completion.Plans - Plans are shown for identification purposes (only).Viewing - Strictly by prior appointment with the auctioneers / ). Please call the office / ) to arrange a viewing.Directions - What3words:///foil.itself.logs (for driveway)Agent's Note - Earles is a Trading Style of 'John Earle & Son LLP' Registered in England. Company No: OC326726 for professional work and 'Earles Residential Ltd' Company No: 13260015 Agency & Lettings. Registered Office: Carleton House, 266 - 268 Stratford Road, Shirley, West Midlands, B90 3AD.BrochuresPenn Lane, Tanworth-In-ArdenBrochure

Location

Address

Penn Lane, Tanworth-In-Arden

City

Stratford-on-Avon

Features and Finishes

A opportunity to develop the Outbuilding subject to obtain planning permission., Great potential to refit and refurbish, In a lovely rural setting surrounded by similar properties, Accessed via a lovely long private tree lined drive

Legal Notice

Our comprehensive database is populated by our meticulous research and analysis of public data. MirrorRealEstate strives for accuracy and we make every effort to verify the information. However, MirrorRealEstate is not liable for the use or misuse of the site's information. The information displayed on MirrorRealEstate.com is for reference only.

Real Estate Broker
Earles, Henley In Arden
Brokerage
Earles, Henley In Arden
Top Tags
Likes

0

Views

78

This website uses cookies to ensure you get the best experience. Learn more