Peterston-Super-Ely, Cardiff, CF5
Property Details
Plot
Description
Property Details: • Type: Plot • Tenure: N/A • Floor Area: N/A
Key Features: • Fantastic Opportunity To Acquire A Plot of Land • Located In The Desirable Village Peterston-Super-Ely • Stunning Unobstructed Views • Freehold • No Onward Chain • Perfect Investment
Location: • Nearest Station: Fairwater Station • Distance to Station: 4.0 miles
Agent Information: • Address: 2 New Street, Pontnewydd, Cwmbran, NP44 1EE
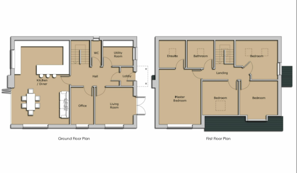
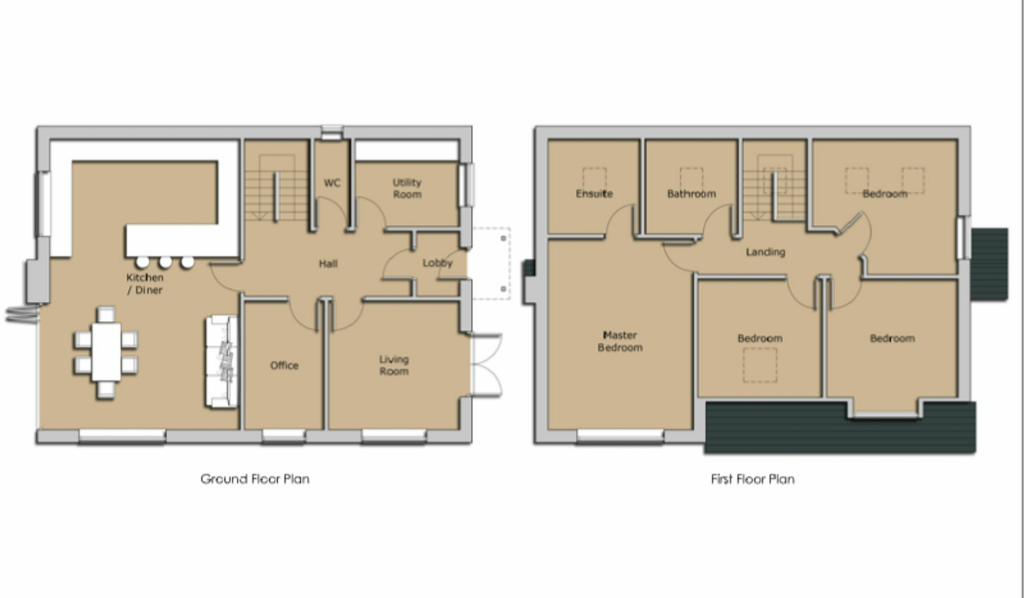
Full Description: Hathways are pleased to present to market this very rare opportunity to purchase a Plot of Land in the sought after village of Peterston-Super-Ely. Situated in a picturesque setting, this unique piece of land boasts a prime location looking towards the Vale of Glamorgan, offering uninterrupted views that are simply breathtaking.There are plans to build a 5 Bedroom, Detached house and Garage on a 1090sq metre plot. This fantastic opportunity comes with the advantage of no onward chain, ensuring a smooth and hassle-free transaction for the fortunate new owner. Whether you are looking to build your dream home or invest in a prime piece of real estate, this land holds immense potential for a variety of purposes and promises a lifestyle of exclusivity and serenity.Properties in the area of Peterston-Super-Ely are priced at a premium, but this plot could be yours for just £335,000. This rare opportunity is not to be missed!For further details or to arrange to view the plot, please contact Simon on .
Location
Address
Peterston-Super-Ely, Cardiff, CF5
City
Cardiff
Features and Finishes
Fantastic Opportunity To Acquire A Plot of Land, Located In The Desirable Village Peterston-Super-Ely, Stunning Unobstructed Views, Freehold, No Onward Chain, Perfect Investment
Legal Notice
Our comprehensive database is populated by our meticulous research and analysis of public data. MirrorRealEstate strives for accuracy and we make every effort to verify the information. However, MirrorRealEstate is not liable for the use or misuse of the site's information. The information displayed on MirrorRealEstate.com is for reference only.