Pier Road, Littlehampton, BN17 5LW
Property Details
Mixed Use
Description
Property Details: • Type: Mixed Use • Tenure: N/A • Floor Area: N/A
Key Features:
Location: • Nearest Station: Littlehampton Station • Distance to Station: 0.3 miles
Agent Information: • Address: 45 St. Johns Road, Hemel Hempstead, HP1 1QQ
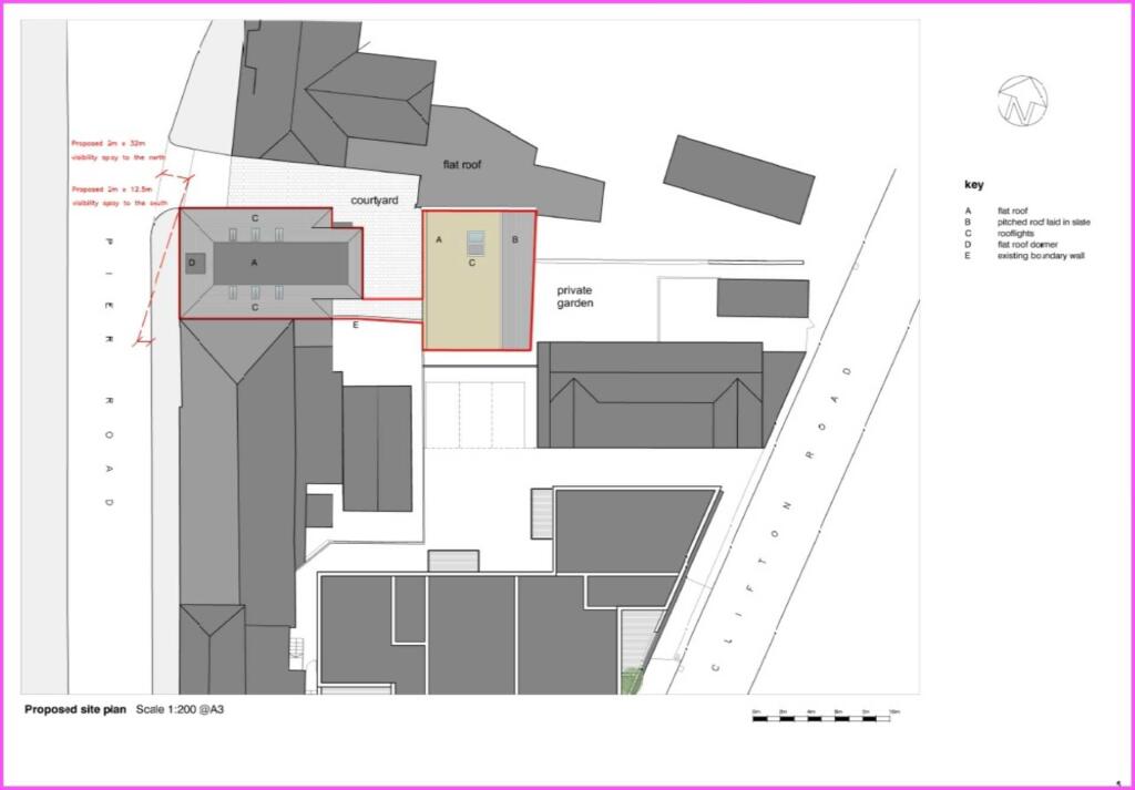
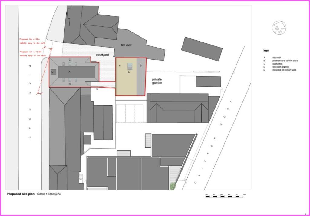
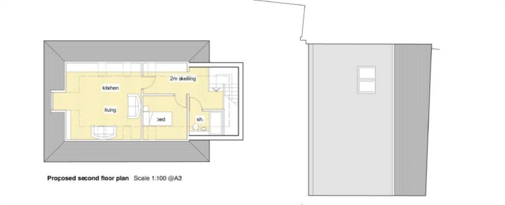
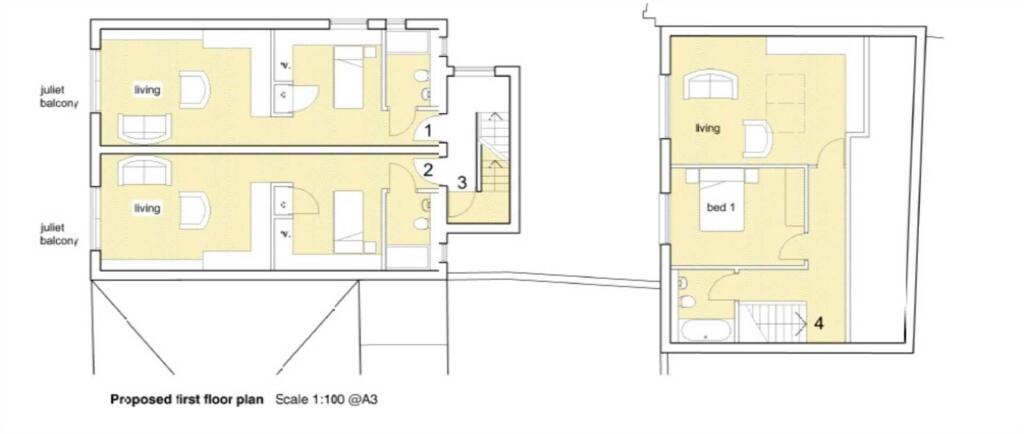
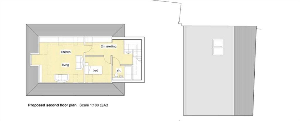
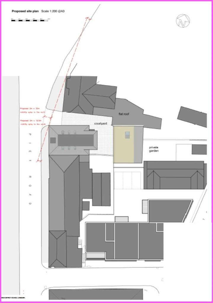
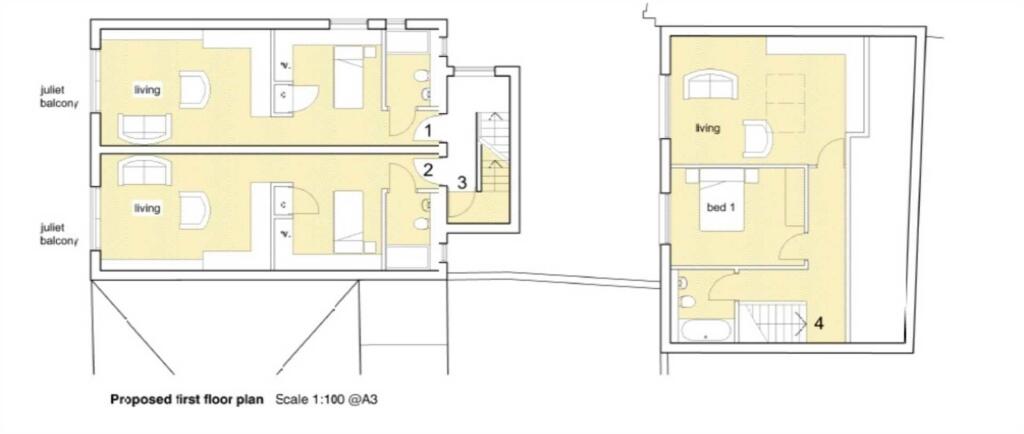
Full Description: Redevelopment opportunity in desirable riverside location of Pier Road, Littlehampton. This rarely available opportunity presents an approved planning permission for demolition and a chance to create a development that combines both residential and commercial spaces.Application reference and web link to copy and paste into web browserReference: LU/86/22/PL Front Block: Three Contemporary Apartments and 2 retail/shop units with river viewsThe front block boasts three storeys and comprising three contemporary apartments, 2 with Juliet balconies and enjoying river views. Each apartment is thoughtfully designed to maximize space and comfort, featuring open plan living/dining/kitchen areas. A modern layout that will appeal to residents wanting to enjoy the convenience of the location beside the river along with its close proximity to many other local amenitiesSituated beneath the apartments are two ground-level shop units, presenting an incredible opportunity for commercial ventures. Both units have enchanting views of the picturesque River Arun, these spaces will be prime units looking to attract thriving businesses. The units are equipped with their own individual kitchen areas and cloakroomsDetached Rear Block: Spacious Apartment with Private AccessThe detached rear block offers a single, spacious apartment with its own private access. The apartment is designed with an open plan living, kitchen, and dining area along with a comfortable bedroom and well-appointed bathroomCovered Parking for ConvenienceDesigned with practicality in mind, the rear block includes a covered parking area capable of accommodating up to three cars. This invaluable addition ensures the utmost convenience and security for residents and visitors alike.Pier Road, Littlehampton : Coastal Charm and Vibrant LivingLocated in Pier Road, this development offers the perfect blend of coastal charm and vibrant living. Residents and visitors will be captivated by the breathtaking sea views that surround the area. The nearby River Arun adds to the allure, providing a serene and picturesque backdrop. Pier Road itself is renowned for its delightful cafes, boutique shops, and bustling restaurants, creating a lively and vibrant atmosphere.NoticePlease note we have not tested any apparatus, fixtures, fittings, or services. Interested parties must undertake their own investigation into the working order of these items. All measurements are approximate and photographs provided for guidance only.
Location
Address
Pier Road, Littlehampton, BN17 5LW
City
Arun
Features and Finishes
None
Legal Notice
Our comprehensive database is populated by our meticulous research and analysis of public data. MirrorRealEstate strives for accuracy and we make every effort to verify the information. However, MirrorRealEstate is not liable for the use or misuse of the site's information. The information displayed on MirrorRealEstate.com is for reference only.