Plains, Yamanakako Village, Minamitsuru District, Yamanashi Prefecture

JPY 25000000 For Sale

Property Details

Property Type

House

Description

Construction Year: 1990

Prefecture: yamanashi

Views: 37

Likes: 1

First Seen: Fri, 03 Nov 2023 00:00:00 GMT

Building Area: N/A m²

Land Area: N/A m²

Property Type: House

Station: Fuji Mountain

Station Distance: 11557m

Parking: Not Available

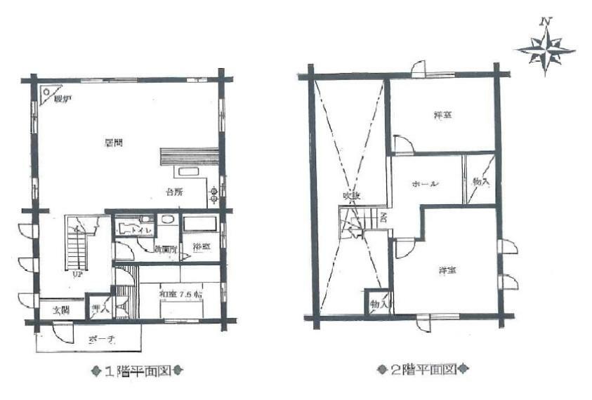
・Large-diameter hand-cut log house ・Exterior walls painted in October 2020 *If the drawings and the current situation differ, the current situation will take priority.

Water supply: Private / Sewerage: Individual septic tank / Propane gas

This 33-year-old large log house has recently been repainted. The floor plan may not be up-to-date, so please refer to the current layout. The house is connected to a private water source and a private septic tank. It uses liquified petroleum gas for cooking and heating.

Nestled amidst the serene beauty of Yamanakako Village, this property offers a tranquil retreat in the heart of Yamanashi Prefecture. Surrounded by picturesque landscapes, including the iconic Mount Fuji, the area boasts a rich history and vibrant culture. From the charming streets of Plains to the pristine shores of Lake Yamanaka, this location provides an idyllic setting for both relaxation and exploration.

Location

Address

Plains, Yamanakako Village, Minamitsuru District, Yamanashi Prefecture

City

yamanashi

Legal Notice

Our comprehensive database is populated by our meticulous research and analysis of public data. MirrorRealEstate strives for accuracy and we make every effort to verify the information. However, MirrorRealEstate is not liable for the use or misuse of the site's information. The information displayed on MirrorRealEstate.com is for reference only.

Real Estate Broker
Akiya Mart
Brokerage
Akiya Mart
Top Tags
Private septic tank
Likes

0

Views

45

This website uses cookies to ensure you get the best experience. Learn more