Plantagenet Chase, Yeovil, Somerset, BA20
Property Details
2
1
Bungalow
Description
Property Details: • Type: Bungalow • Tenure: FREEHOLD • Floor Area: N/A
Key Features: • Two bedroom bungalow • Garage and driveway parking • Close to local amenities • No onward chain
Location: • Nearest Station: Yeovil Junction Station • Distance to Station: 1.7935634206770983 miles
Agent Information: • Address: 22 Princes Street, Yeovil, BA20 1EQ
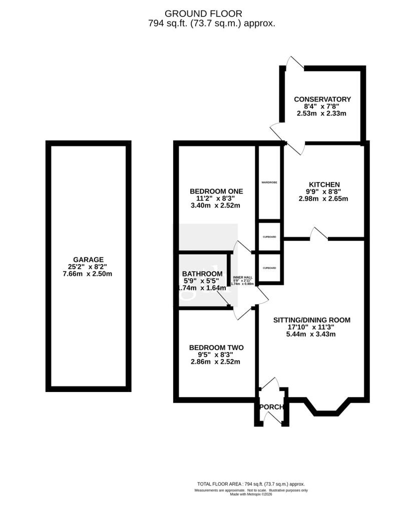
Full Description: A spacious and light two bedroom 1970's semi detached bungalow, located in a popular part of Yeovil, with a drive, garage and garden and offered for sale with no onward chain.<br /><br />15 Plantagenet Chase comprises a spacious semi-detached bungalow, pleasantly situated in the quiet cul-de-sac to be found off Lysander Road. <br /><br />The property has a welcoming front porch that opens into a generous sitting room, enhanced by a bay window to the front of the property, filling the space with natural light. The sitting room provides extra space for dining. From here, a door leads you through to the well-maintained kitchen, fitted with a range of wall and base units and offering ample room for appliances. A further door leads into the conservatory, which overlooks the rear garden and provides an additional reception room, this could be ideal utility space or separate dining room. <br /><br />Just off the sitting room, an inner hallway provides access to the two <br />bedrooms and the family bathroom. <br /><br />The master bedroom sits at the rear of the property and features a <br />window overlooking the rear garden. It also benefits from fitted wardrobes. Bedroom two offers good space, suitable for use as a bedroom, nursery, or home office depending on your needs.<br />The shower room has been modernised and includes a WC, wash hand basin, and a generous shower area, creating a clean and contemporary <br />space.<br /><br />SERVICES & OUTGOINGS<br /><br />We understand that mains electric, gas, water and drainage are connected to the property. Gas fired central heating.<br /><br />Council Tax: Somerset Council—Band C.<br /><br />ADDITIONAL INFORMATION<br /><br />Broadband: FTTP—Ultrafast full fibre broadband is available—highest <br />available download speed 1600 Mbps, highest available upload speed 115 Mbps. (Openreach).<br /><br />Mobile Coverage: Available via EE, O2, Three and Vodafone. For an indication of specific speeds and supply or coverage in the area we <br />recommend contacting your own provider. (Openreach).<br /><br />Flooding: The property is in an area at a very low risk from River/Sea flooding and a very low risk from Surface Water flooding. (GOV.UK)<br /><br />The property is located in an elevated, quiet position on Plantagenet Chase situated on the western edge of Yeovil. Within walking distance <br />is Leonardo Helicopters, Holy Trinity Primary School, a local parade of shops and two supermarkets.<br /><br />Yeovil’s town centre, with its comprehensive range of shopping and leisure facilities including a multi-screen cinema with adjacent ten pin bowling and a public swimming pool, is just over 1 mile in distance. <br /><br />Transport links are excellent with the A303 in easy reach. The county town of Taunton and the M5 are approximately 24 miles away.<br /><br />To the front of the property, there is a low-maintenance gravelled garden with a pathway leading to the front door, along with access to two parking spaces and a single garage. <br /><br />The main garden is positioned at the rear of the property and features a variety of planting that brings colour and interest throughout the year. Directly outside the conservatory, a small patio sits to the left, offering the potential to extend and create an ideal space for alfresco dining or relaxing during the warmer months. The remainder of the garden is laid to lawn, and there is also convenient access directly from the garden into the garage.
Location
Address
Plantagenet Chase, Yeovil, Somerset, BA20
City
Somerset
Features and Finishes
Two bedroom bungalow, Garage and driveway parking, Close to local amenities, No onward chain
Legal Notice
Our comprehensive database is populated by our meticulous research and analysis of public data. MirrorRealEstate strives for accuracy and we make every effort to verify the information. However, MirrorRealEstate is not liable for the use or misuse of the site's information. The information displayed on MirrorRealEstate.com is for reference only.