Plantation Road, Darbys Corner

GBP 160000 For Sale

Property Details

Property Type

Land

Description

Property Details: • Type: Land • Tenure: N/A • Floor Area: N/A

Key Features:

Location: • Nearest Station: Poole Station • Distance to Station: 1.9 miles

Agent Information: • Address: 219 Lower Blandford Road, Broadstone, BH18 8DN

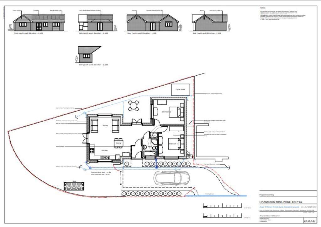
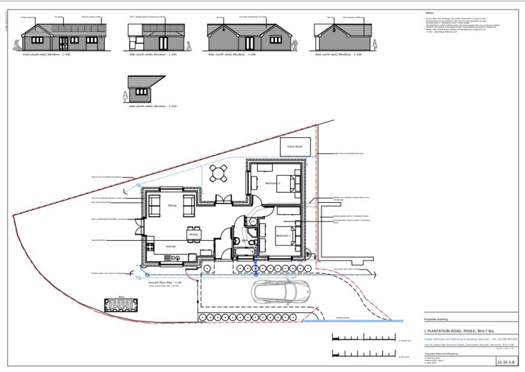
Full Description: SUMMARY The opportunity to purchase a building plot with planning permission for a two bedroom detached bungalow in a convenient location between Poole and Broadstone.

Location

Address

Plantation Road, Darbys Corner

City

Plantation Road

Legal Notice

Our comprehensive database is populated by our meticulous research and analysis of public data. MirrorRealEstate strives for accuracy and we make every effort to verify the information. However, MirrorRealEstate is not liable for the use or misuse of the site's information. The information displayed on MirrorRealEstate.com is for reference only.

Real Estate Broker
Wilson Thomas Limited, Broadstone
Brokerage
Wilson Thomas Limited, Broadstone
Top Tags
Likes

0

Views

70

This website uses cookies to ensure you get the best experience. Learn more