Platts Farm Barns, High Street, West Wickham, Cambridge, Cambridgeshire, CB21 4RY
Property Details
4,445 sq ft
Description
Property Details: • Type: 4,445 sq ft • Tenure: N/A • Floor Area: N/A
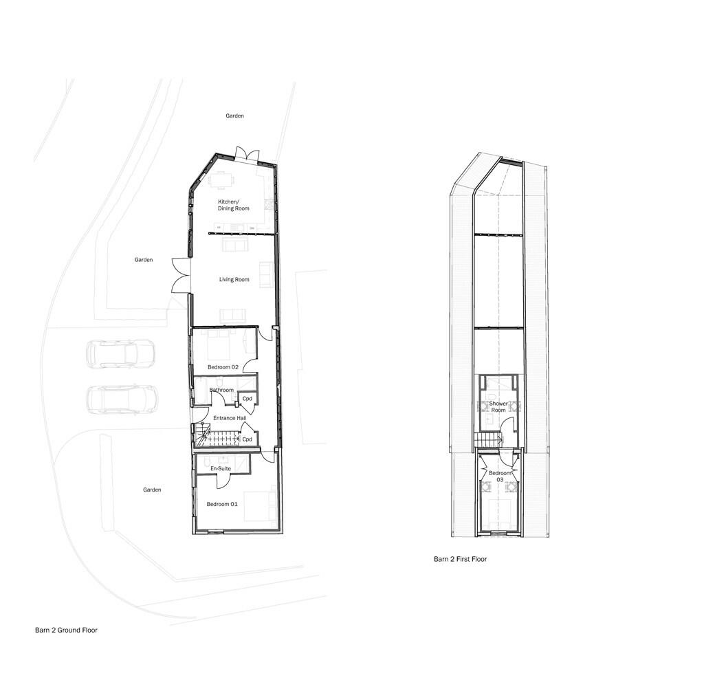
Key Features: • Residential Barn Conversions • Two Barns with Full Planning Consent for conversion into Dwellings • Barn 1: 280m2 Gross Internal Floor Area once developed • Barn 2: 133m2 Gross Internal Floor Area once developed
Location: • Nearest Station: Dullingham Station • Distance to Station: 5.8 miles
Agent Information: • Address: West Wing Lindon Square 146 Kings Road Bury St Edmunds IP33 3DJ
Full Description: Two Traditional barns with Planning Consent for conversion into dwellings with associated gardens and a new access for sale by Private Treaty
Location
Address
Platts Farm Barns, High Street, West Wickham, Cambridge, Cambridgeshire, CB21 4RY
City
South Cambridgeshire
Features and Finishes
Residential Barn Conversions, Two Barns with Full Planning Consent for conversion into Dwellings, Barn 1: 280m2 Gross Internal Floor Area once developed, Barn 2: 133m2 Gross Internal Floor Area once developed
Legal Notice
Our comprehensive database is populated by our meticulous research and analysis of public data. MirrorRealEstate strives for accuracy and we make every effort to verify the information. However, MirrorRealEstate is not liable for the use or misuse of the site's information. The information displayed on MirrorRealEstate.com is for reference only.