Plot 1, Hill Street, Newmill, Keith, AB55 6TY

GBP 49995 For Sale

Property Details

Property Type

Land

Description

Property Details: • Type: Land • Tenure: N/A • Floor Area: N/A

Key Features:

Location: • Nearest Station: Keith Station • Distance to Station: 0.8 miles

Agent Information: • Address: 38 Holburn Street, Aberdeen, AB10 6BT

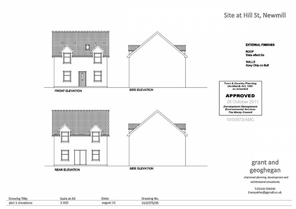
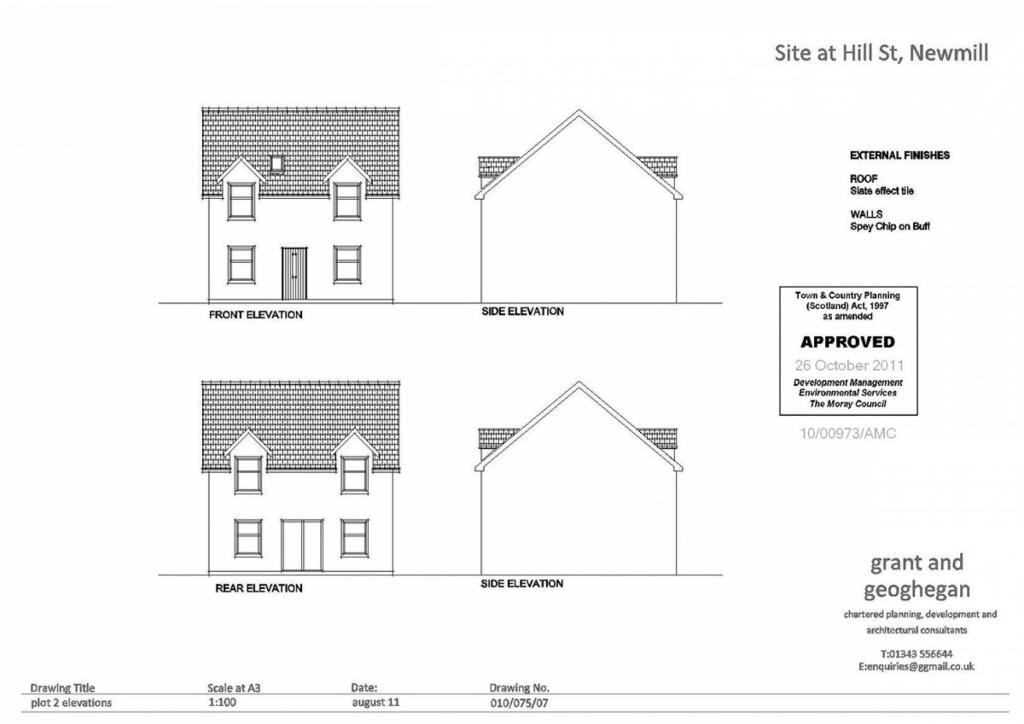
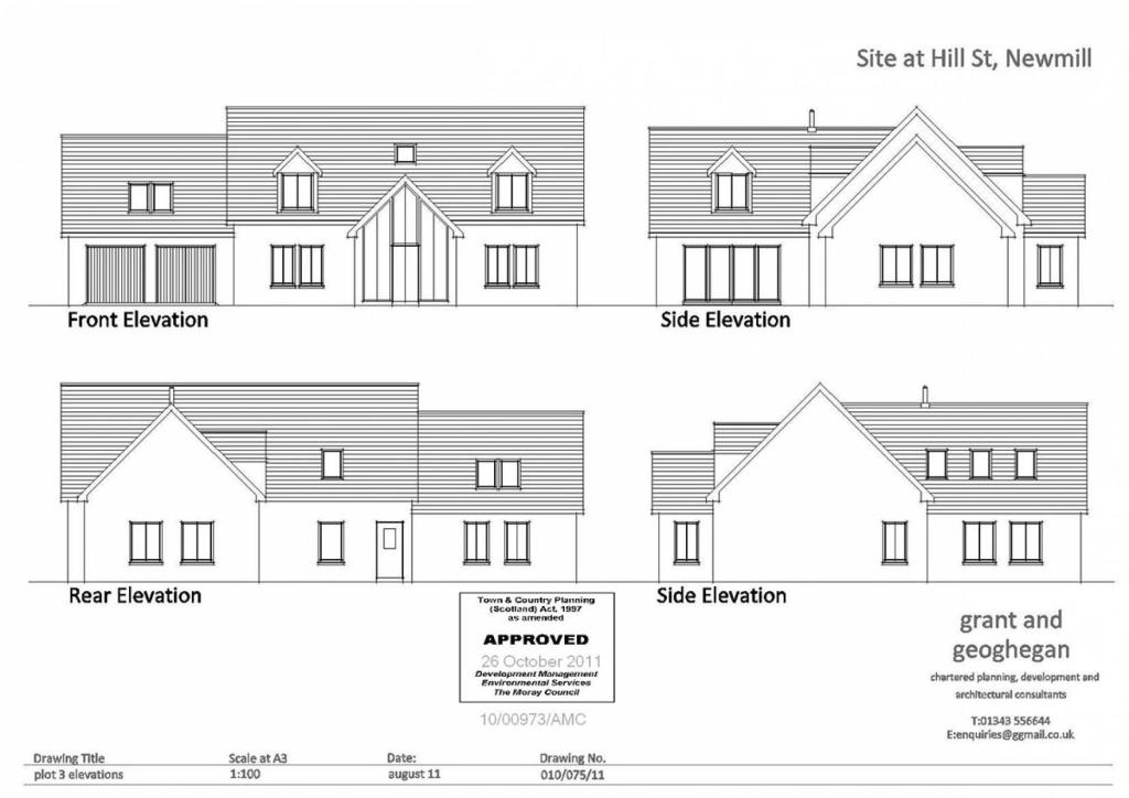
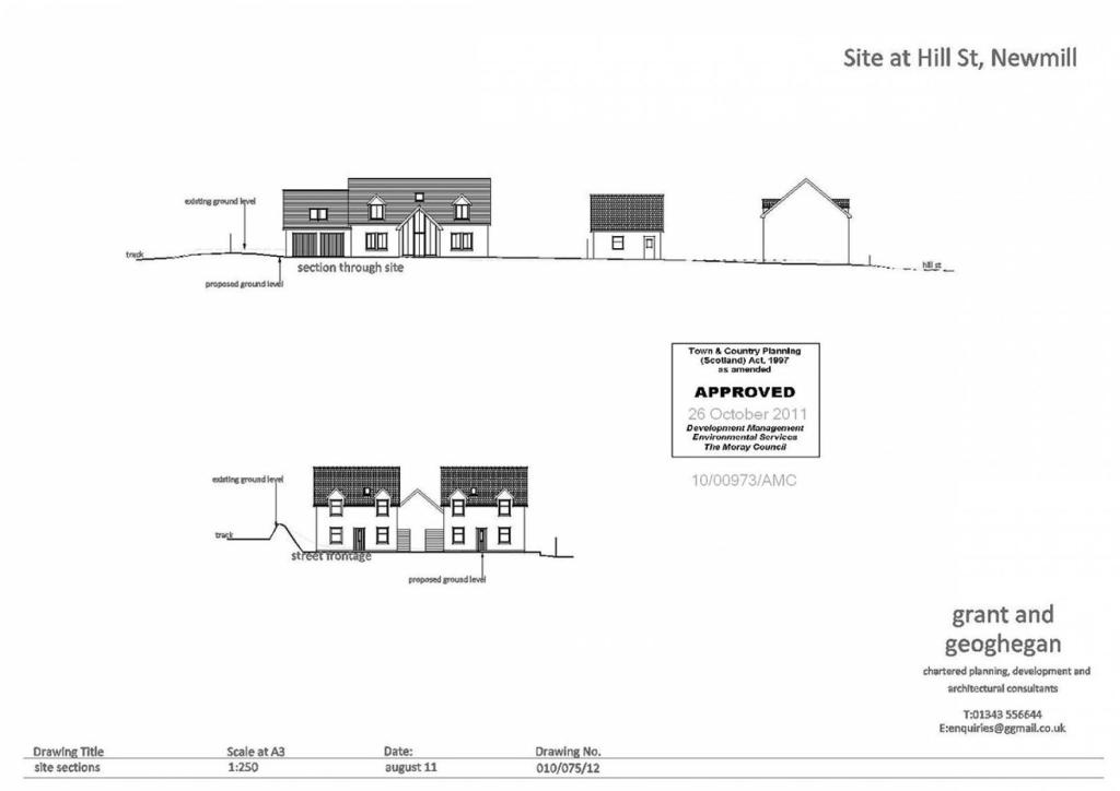
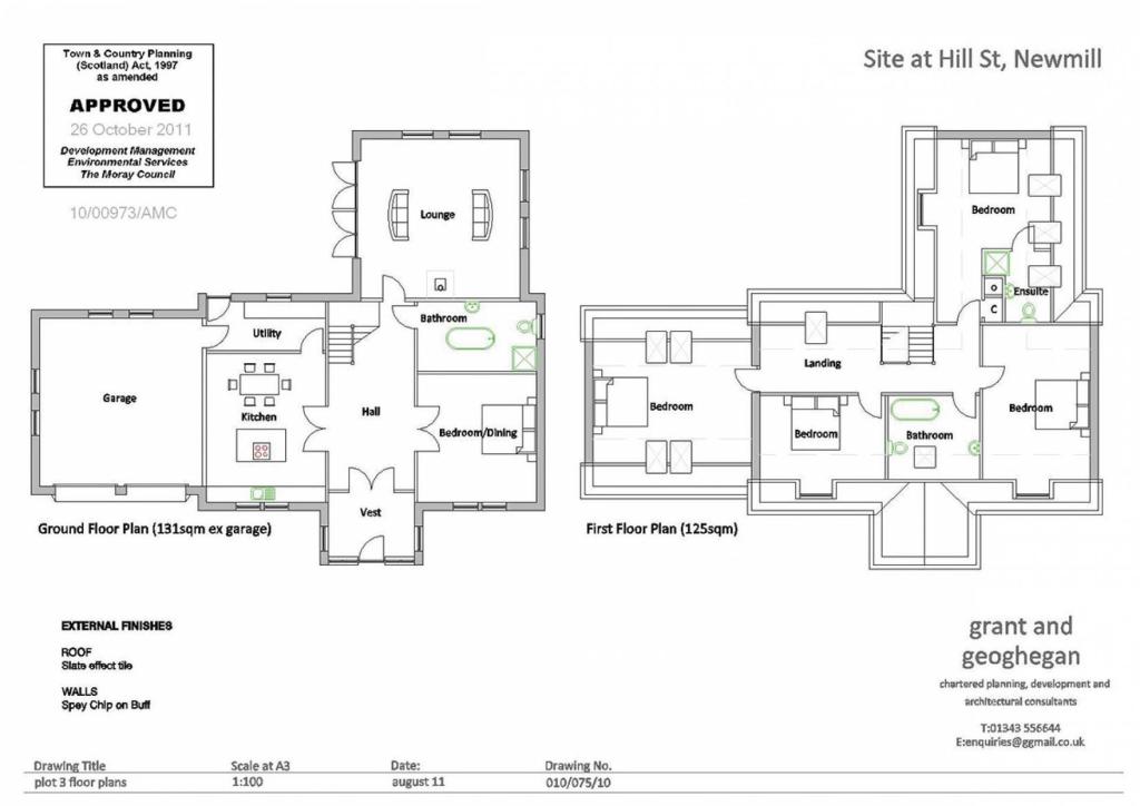
Full Description: We are pleased to offer for sale this large building plot, which is situated in a picturesque village location of Newmill. The nearby town of Keith and Huntly are only a short drive away. The plot is situated on a minor public road close to the village centre. Full planning permission has been granted for the erection of three detached two storey dwelling houses with detached garage and temporary siting of residential caravan during construction. The decisions and conditions for both 14/01590/APP and 10/00973/AMC can be viewed online at: Mains electric nearby. Viewing: By attending at the site Note: If required the three individual building plots can be sold separately.BrochuresBrochure 1

Location

Address

Plot 1, Hill Street, Newmill, Keith, AB55 6TY

City

Keith

Legal Notice

Our comprehensive database is populated by our meticulous research and analysis of public data. MirrorRealEstate strives for accuracy and we make every effort to verify the information. However, MirrorRealEstate is not liable for the use or misuse of the site's information. The information displayed on MirrorRealEstate.com is for reference only.

Real Estate Broker
McEwan Fraser Legal, Aberdeen
Brokerage
McEwan Fraser Legal, Aberdeen
Top Tags
Likes

0

Views

31

This website uses cookies to ensure you get the best experience. Learn more