Plot 2 Hilton Farm, Buckie, AB56

GBP 90000 For Sale

Property Details

Property Type

Land

Description

Property Details: • Type: Land • Tenure: N/A • Floor Area: N/A

Key Features:

Location: • Nearest Station: Keith Station • Distance to Station: 7.3 miles

Agent Information: • Address: Alba Innovation Centre, Alba Campus, Livingston, West Lothian, EH54 7GA

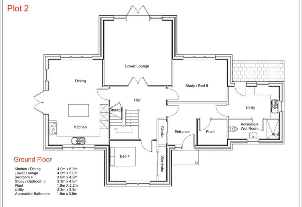
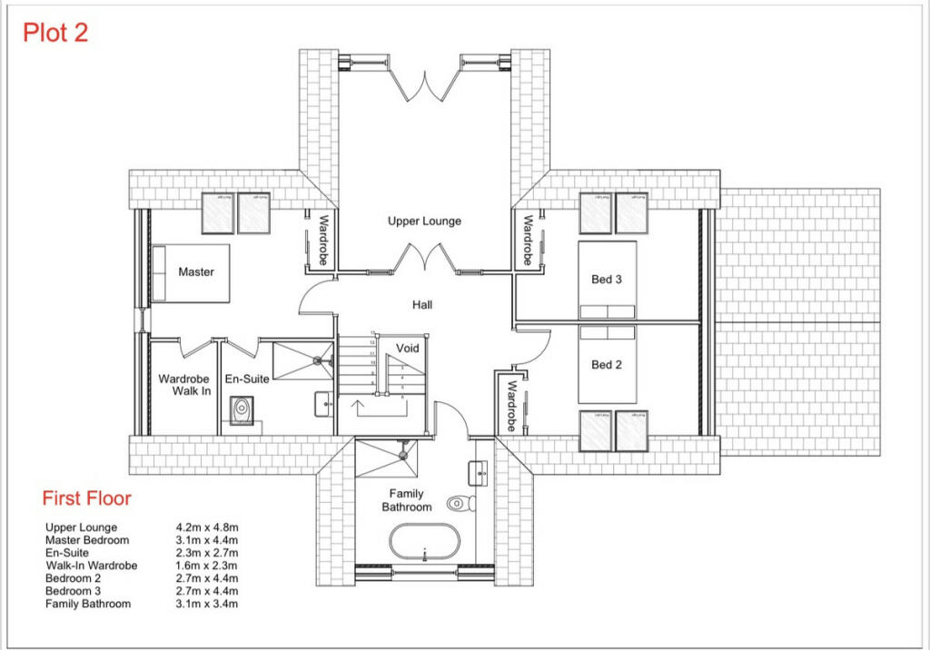
Full Description: Deena Aranci of Compass Estates is delighted to present to the market, this 1000m2 serviced building plot with planning permission. Situated amidst the stunning Moray countryside, just a little over a mile away from Buckie, this property offers beautiful panoramic sea views.This presents an incredible opportunity for individuals seeking to construct their dream home in a picturesque countryside setting, while still being conveniently close to the Moray coast and a range of local amenities.Kindly note that the property plans shown are solely for illustrative purposes and can be modified to accommodate specific requirements.LocationHilton is within easy reach of Buckie which has its own working harbour and marina. It's well known for being a welcoming and friendly community and offers numerous leisure facilities including a leisure centre with swimming pool, two links golf courses, outdoor bowling greens and two major NHS facilities with a small hospital. Banking facilities, restaurants, cafes, pubs, local shops and supermarkets can be found in and around the town centre.The Moray Coast is within easy access and has a choice of spectacular walks on pebbled and sandy beaches with an abundance of wildlife including Ospreys, dolphins, seals, and whales often to be seen along this World Heritage coastline. The property’s location is within easy reach of Speyside, the heart of the Whisky Country.There is easy access to the A96 which gives a direct route to Aberdeen, Inverness and the Cathedral city of Elgin. The main East Coast Rail network operates through Elgin providing a link to both Inverness and Aberdeen with Keith Railway station (with free parking) being the nearest rail link.DisclaimerThese particulars are intended to give a fair description of the property but their accuracy cannot be guaranteed, and they do not constitute or form part of an offer of contract. Intending purchasers must rely on their own inspection of the property. None of the above appliances/services have been tested by ourselves. We recommend that purchasers arrange for a qualified person to check all appliances/services before making a legal commitment. Whilst every attempt has been made to ensure the accuracy of the floorplan contained here, measurements of doors, windows, rooms and any other items are approximate and no responsibility is taken for any error, omission, or misstatement. This plan is for illustrative purposes only and should be used as such by any prospective purchaser. Photos may have been altered, enhanced or virtually staged for marketing purposes.

Location

Address

Plot 2 Hilton Farm, Buckie, AB56

City

Buckie

Legal Notice

Our comprehensive database is populated by our meticulous research and analysis of public data. MirrorRealEstate strives for accuracy and we make every effort to verify the information. However, MirrorRealEstate is not liable for the use or misuse of the site's information. The information displayed on MirrorRealEstate.com is for reference only.

Real Estate Broker
Compass Estates, Livingston
Brokerage
Compass Estates, Livingston
Top Tags
Likes

0

Views

102

This website uses cookies to ensure you get the best experience. Learn more