Plot 2, Land To North East Of 3, Old Aberdeen Road, Fordoun, AB30
Property Details
4
2
Plot
Description
Property Details: • Type: Plot • Tenure: N/A • Floor Area: N/A
Key Features:
Location: • Nearest Station: Laurencekirk Station • Distance to Station: 3.4306704453145143 miles
Agent Information: • Address: 40 Allardice Street, Stonehaven, AB39 2BU
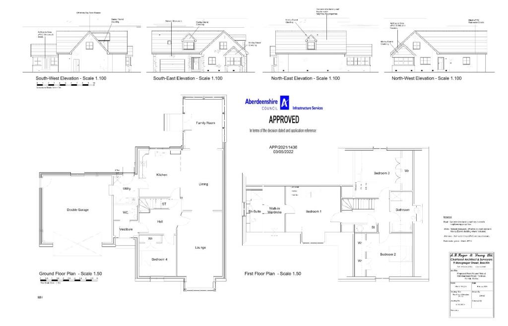
Full Description: Plot 1 North East of 3 Old Aberdeen Road presents an exciting opportunity to acquire a development site, offered for sale with Full Planning Permission for a 4 BED DETACHED TWO STOREY DWELLING. The total development site extends to approximately 1353sqm/0.35acres and is perfectly positioned on the outskirts of Fordoun village, with excellent transport links to Aberdeen in the North and Dundee and beyond to the South. The finished property will offer an exceptionally spacious and versatile home, showcasing the best of open-plan family living, with the benefit of a ground floor bedroom and WC, together with 3 double bedrooms, ensuite and family bathroom to the first floor. An integral double garage will create ample space for secure parking and storage, with additional parking on the driveway and a generous plot for the discerning buyer to landscape their preferred garden. Full details and all relevant planning documentation can be found on the Aberdeenshire Council website by using planning reference – APP/2021/1436.
Location
Address
Plot 2, Land To North East Of 3, Old Aberdeen Road, Fordoun, AB30
City
Fordoun
Features and Finishes
None
Legal Notice
Our comprehensive database is populated by our meticulous research and analysis of public data. MirrorRealEstate strives for accuracy and we make every effort to verify the information. However, MirrorRealEstate is not liable for the use or misuse of the site's information. The information displayed on MirrorRealEstate.com is for reference only.