Plot 2 Parc-Tyn-y-Waun, Llangynwyd, Maesteg, Bridgend. CF34 9RG
Property Details
Detached
Description
Property Details: • Type: Detached • Tenure: N/A • Floor Area: N/A
Key Features: • BRAND NEW HOMES IN LLANGYNWYD • Sought after village location • Beautiful countryside to explore • Quality finishes throughout • Balcony off the lounge with elevated views • Potential for a self contained ground floor flat • Images for illustration only
Location: • Nearest Station: N/A • Distance to Station: N/A
Agent Information: • Address: 8 Dunraven Place, Bridgend, CF31 1JD
Full Description: COMING SOON!!! Two brand new FOUR bedroom detached houses available within the sought after development of Parc Tyn y Waun. Single garage. Balcony off the lounge. Open plan kitchen / dining room. Quality finishes throughout. REGISTER YOUR INTEREST TODAY.
Parc Tyn Y Waun is a popular and established residential development positioned within the historic village of Llangynwyd. The properties are within easy walking distance of Ysgol Gyfun Gymraeg Llangynwyd and Llangynwyd Primary school. There is fantastic countryside to explore locally as well as local pubs, a quality restaurant at The Old House 1147 and local retail facilities.
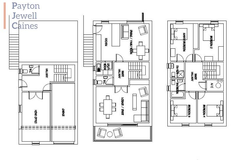
Ground work is due to start by the end of 2024 with the homes due for completion in the summer of 2025. Please register your details with us today.DescriptionThese plans are the proposed layout for the house. The developer may be able to consider some minor amendments to the layout should a purchaser wish (subject to timescale and proposed changes).
The ground floor provides an ideal opportunity for conversion to a self contained 'annexe'. In light of this there is additional access to the first floor provided by the side staircase. (This will require appropriate planning consent and building regulations).Entrance HallWith double doors to the home office, a courtesy door to the garage and a door to the WC.Home office7.20m x 3.25m (23' 7" x 10' 8")With double doors accessed off the entrance hallway and a full height picture window overlooking the front.W.C.Kitchen/Breakfast/Family RoomAccess off the first floor landing and with large bi-fold doors giving access to the rear garden.
The kitchen layout has been agreed but the choice of finishes is available to a purchaser. Integrated appliances to include cooker & hob, overhead extractor hood, fridge / freezer and dishwasher.UtilityW.C.Lounge/diner6.50m x 5.35m Max (21' 4" x 17' 7" Max)A generous room with large pocket doors leading to a balcony area to the front.Bedroom 14.60m x 3.00m (15' 1" x 9' 10")Overlooking the rear garden with a door into the en-suite and fitted wardrobes.En-suite shower roomFitted with a 3 piece suite to include a quadrant style shower. Tile choices available.Bedroom 24.60m x 3.00m (15' 1" x 9' 10")Overlooking the rear with fitted wardrobes.Bedroom 33.20m x 3.00m (10' 6" x 9' 10")Bedroom 43.20m x 3.00m (10' 6" x 9' 10")Family bathroomFitted with a 3 piece suite and tiling options and choices available.Rear GardenEnclosed with close board fence and laid with turf. Gated access to the front.Single GarageWith electric roller shutter door. Courtesy door into the entrance hallway. Power and light plus EV charging point.BrochuresBrochure
Location
Address
Plot 2 Parc-Tyn-y-Waun, Llangynwyd, Maesteg, Bridgend. CF34 9RG
City
None
Features and Finishes
BRAND NEW HOMES IN LLANGYNWYD, Sought after village location, Beautiful countryside to explore, Quality finishes throughout, Balcony off the lounge with elevated views, Potential for a self contained ground floor flat, Images for illustration only
Legal Notice
Our comprehensive database is populated by our meticulous research and analysis of public data. MirrorRealEstate strives for accuracy and we make every effort to verify the information. However, MirrorRealEstate is not liable for the use or misuse of the site's information. The information displayed on MirrorRealEstate.com is for reference only.