Plot 36 Parc Dol Gwyn, Padeswood Road South, Buckley

GBP 625000 For Sale

Property Details

Property Type

Detached

Description

Property Details: • Type: Detached • Tenure: N/A • Floor Area: N/A

Key Features: • Exceptional Four Bedroom Detached House • Views Across Surrounding Countryside • To Be Completed To High Specification • Superb Open Plan Kitchen/Family Room • Living Room & Study/Media Room • Principal Bedroom With Luxury Ensuite & Dressing Room • Bedroom 2 with En-Suite • Choice Of Carpets • Block Paved Drive • Detached Double Garage

Location: • Nearest Station: N/A • Distance to Station: N/A

Agent Information: • Address: The Cross, Mold, CH7 1AZ

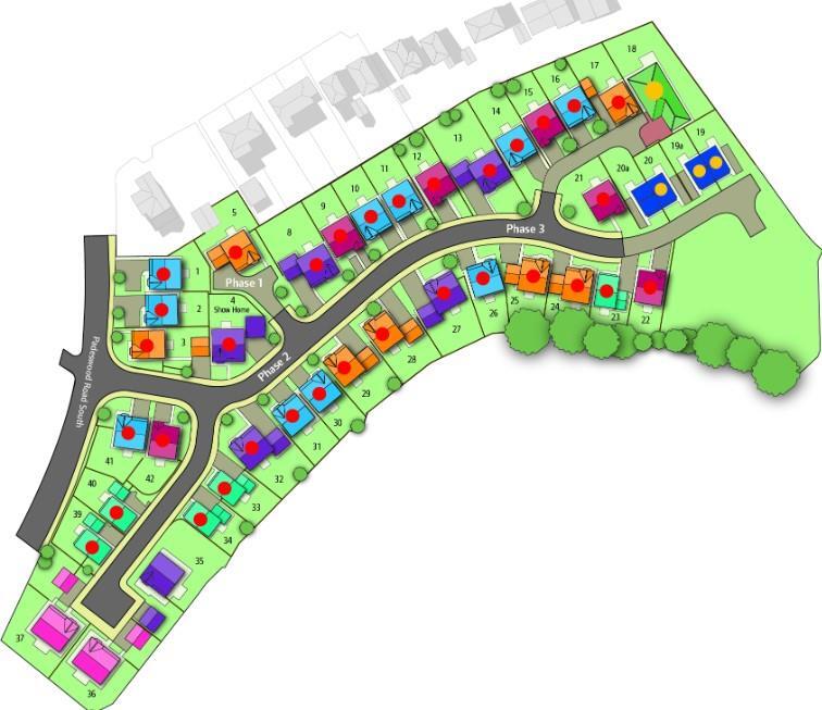
Full Description: 'The Penrhyn' - Exceptional 'New Build' Four Bedroom Detached House with Double Garage, designed to a spacious plan, approximately 2084 sq ft, with a high standard of specification throughout. Forming part of the successful Parc Dol Gwyn development by highly regarded local developers, F G Whitley, whom are known for their high standards of workmanship and attention to detail. Plot 36 is located in an enviable position at the head of a small select cul de sac with far reaching views over surrounding countryside, yet is within a few minutes drive of Mold and the A55 Expressway. Features include an impressive reception hall, superb open plan Kitchen/Dining/Family Room with extensive range of units with granite worktops, Living Room, Study/Media Room, Principal Bedroom with Ensuite and Dressing Room, Bedroom Two with Ensuite and Luxury Family Bathroom. Blocked paved drive, detached double garage, gas central heating, double glazing, choice of carpets from an approved range and NHBC Builders Warranty. Available Spring 2025.Price List & Availability - Please contact the Mold office for current prices and availability.Directions - From the Agent's Mold office proceed along Chester Street and on reaching the roundabout bear right onto Chester Road. Follow the road up to the main roundabout on the outskirts of the town and take the third exit onto the A541 Wrexham Road. After approximately 0.75 mile bear left signposted for Penymynydd/Penyffordd and after a further 1.25 mile, take the left turning, opposite the Padeswood Golf Club onto Padeswood Road South signposted for Buckley. Follow the lane up into Buckley, whereupon the Development will be found on the right hand side.Agent's Notes - This brochure is issued as a general guide and does not form the basis of any offer or contract. Prospective purchasers must satisfy themselves by their own inspection or other enquiries as to the correctness of each statement and information contained within this brochure. The internal photographs shown are of the original Show House (now sold) and are provided for guidance purposes only.Viewing - By appointment through the Agent's Mold Office .FLOOR PLANS - included for identification purposes only, not to scale.Anti Money Laundering Regulations - Intending purchasers will be asked to produce identification documentation before we can confirm the sale in writing. There is an administration charge of £30.00 per person payable by buyers and sellers, as we must electronically verify the identity of all in order to satisfy Government requirements regarding customer due diligence. We would ask for your co-operation in order that there will be no delay in agreeing the sale.Extra Services - Mortgage referrals, conveyancing referral and surveying referrals will be offered by Cavendish Estate Agents. If a buyer or seller should proceed with any of these services then a commission fee will be paid to Cavendish Estate Agents Ltd upon completion.Material Information Report - The Material Information Report for this property can be viewed on the Rightmove listing. Alternatively, a copy can be requested from our office which will be sent via email.BrochuresParc Dôl Gwyn plan and properties.pdfBrochure

Location

Address

Plot 36 Parc Dol Gwyn, Padeswood Road South, Buckley

City

Buckley

Features and Finishes

Exceptional Four Bedroom Detached House, Views Across Surrounding Countryside, To Be Completed To High Specification, Superb Open Plan Kitchen/Family Room, Living Room & Study/Media Room, Principal Bedroom With Luxury Ensuite & Dressing Room, Bedroom 2 with En-Suite, Choice Of Carpets, Block Paved Drive, Detached Double Garage

Legal Notice

Our comprehensive database is populated by our meticulous research and analysis of public data. MirrorRealEstate strives for accuracy and we make every effort to verify the information. However, MirrorRealEstate is not liable for the use or misuse of the site's information. The information displayed on MirrorRealEstate.com is for reference only.

Real Estate Broker
Cavendish Estate Agents, Mold
Brokerage
Cavendish Estate Agents, Mold
Top Tags
Likes

0

Views

61

This website uses cookies to ensure you get the best experience. Learn more