Plot To The South Of, Main Road, Brailsford, DE6 3DA

GBP 125000 For Sale

Property Details

Property Type

13,068 sq ft

Description

Property Details: • Type: 13,068 sq ft • Tenure: N/A • Floor Area: N/A

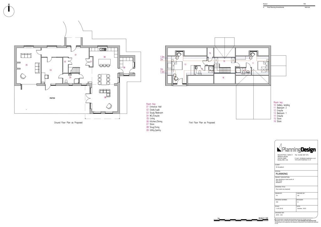
Key Features: • Full Planning for impressive dormer bungalow • 2 ensuite bedrooms and open plan kitchen/living • Large plot in pleasant rural setting • Popular village • Central position close to shops, restaurants & bus stop • 6 miles from Ashbourne Town Centre

Location: • Nearest Station: Duffield Station • Distance to Station: 5.8 miles

Agent Information: • Address: 19 St Christopher's Way, Derby, DE24 8JY

Full Description: DescriptionFull planning for impressive 2 bed dormer bungalow in 0.3 acres. Set back from A52. Central position within village. Walking distance from an excellent range of amenities. The consented scheme provides a detached 2 bed home, approx. 2,153 sq ft, benefitting from open plan kitchen/dining/living area, lounge and study on the ground floor with 2 ensuite bedrooms to the first floor.The plot is situated to the rear of the converted Old School House and enjoys a rural setting. The plot would be accessed via the existing public footpath along the side of the Old School House. A separate parcel of land will be used for parking, and this is located close by at the front of the Old School House.ViewingPlease contact us or visit the OMEETO website for full details and a virtual tour. Roadside inspections are possible. Please contact OMEETO for instructions of access. OMEETO do not take any responsibility for any loss or injury caused whilst carrying out a site visit.VATAll figures are quoted exclusive of VAT, we are advised the land is not registered for VAT. Vendor to confirm.

Location

Address

Plot To The South Of, Main Road, Brailsford, DE6 3DA

City

Brailsford

Features and Finishes

Full Planning for impressive dormer bungalow, 2 ensuite bedrooms and open plan kitchen/living, Large plot in pleasant rural setting, Popular village, Central position close to shops, restaurants & bus stop, 6 miles from Ashbourne Town Centre

Legal Notice

Our comprehensive database is populated by our meticulous research and analysis of public data. MirrorRealEstate strives for accuracy and we make every effort to verify the information. However, MirrorRealEstate is not liable for the use or misuse of the site's information. The information displayed on MirrorRealEstate.com is for reference only.

Real Estate Broker
OMEETO LTD, Derbyshire
Brokerage
OMEETO LTD, Derbyshire
Top Tags
rural setting plot
Likes

0

Views

87

This website uses cookies to ensure you get the best experience. Learn more