Plots at Oakenfield, Newmill, Keith, AB55 6QR

GBP 75000 For Sale

Property Details

Property Type

Land

Description

Property Details: • Type: Land • Tenure: N/A • Floor Area: N/A

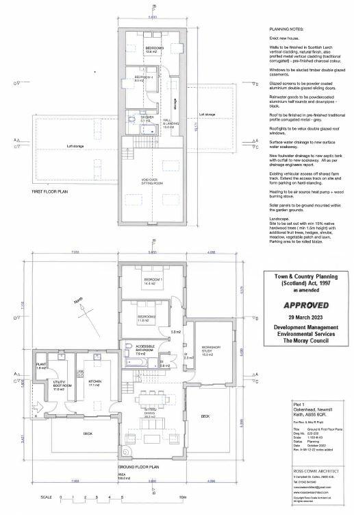
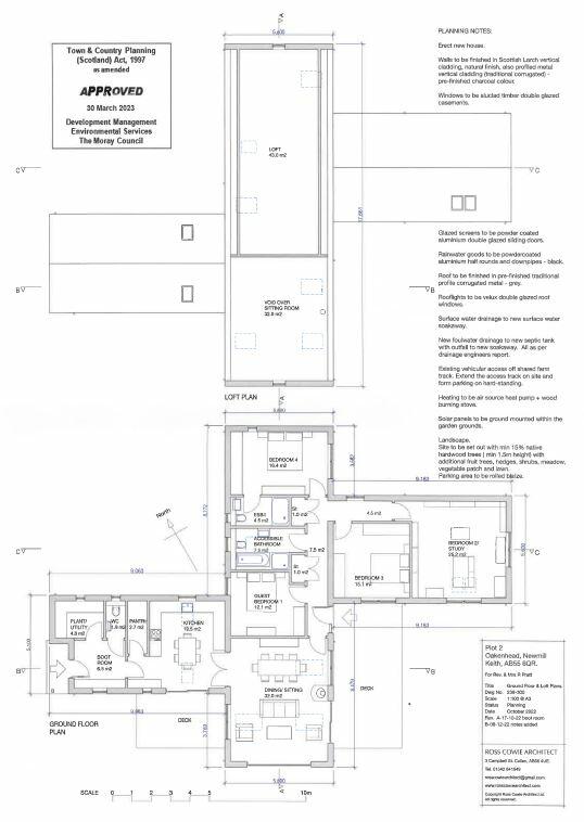
Key Features: • 2 plots, circa one acre each • Full Planning Permission for 4-bedroom detached house on each plot • Sunny, south-facing, aspect • Countryside location with wonderful, open, views • Located close to Keith and its amenities

Location: • Nearest Station: Keith Station • Distance to Station: 1.3 miles

Agent Information: • Address: 117/121 High Street, Forres, IV36 1AB

Full Description: We are delighted to offer for sale these two large (circa one acre each), building plots, occupying a superb south-facing aspect, with wonderful open views across farmland towards the hills beyond.

With full planning permission (references: 22/01855/APP and 22/01856/APP) for detached 4-bedroom homes, the plots are gently sloping with fields to three sides. Situated in a peaceful, rural location, yet just minutes from all the amenities of Keith, including a large supermarket, good transport links (bus and rail), schools, churches and a traditional small town High Street, the plots provide a wonderful opportunity to develop the house of your dreams, with land, in a great location.

Known as “the friendly town”, Keith is an ideal commuter base for both Aberdeen and Inverness with good rail, bus and road transport links, there is a full range of commercial, recreational, sport, leisure and educational facilities in the town as well as a health centre, hospital and dental practices. The stunning Moray coast is only 30 minutes away.

The plots are being offered as separate building plots, however, should a single purchaser be interested in both, either to have larger acreage, potentially suitable for livestock, horses or planting, or to build two homes to live close to family or friends, the seller would consider negotiating a better price for the combined sale.

Location

Address

Plots at Oakenfield, Newmill, Keith, AB55 6QR

City

Keith

Features and Finishes

2 plots, circa one acre each, Full Planning Permission for 4-bedroom detached house on each plot, Sunny, south-facing, aspect, Countryside location with wonderful, open, views, Located close to Keith and its amenities

Legal Notice

Our comprehensive database is populated by our meticulous research and analysis of public data. MirrorRealEstate strives for accuracy and we make every effort to verify the information. However, MirrorRealEstate is not liable for the use or misuse of the site's information. The information displayed on MirrorRealEstate.com is for reference only.

Real Estate Broker
R & R Urquhart Property, Forres
Brokerage
R & R Urquhart Property, Forres
Top Tags
2 plots Sunny south-facing aspect
Likes

0

Views

118

This website uses cookies to ensure you get the best experience. Learn more