Plots at Oakenhead, Newmill, Keith, Moray AB55 6QR
Property Details
Plot
Description
Property Details: • Type: Plot • Tenure: FREEHOLD • Floor Area: N/A
Key Features: • Two Building Plots Available as one or as a whole • Large Sites of Approx 1 Acre Each • Lovely, Countryside Location with Beautiful Views • Full Planning Permission in Place • Boreholes in Place
Location: • Nearest Station: Keith Station • Distance to Station: 1.299348206508212 miles
Agent Information: • Address: Willow House, Kestrel View, Strathclyde Business Park Bellshill ML4 3PB
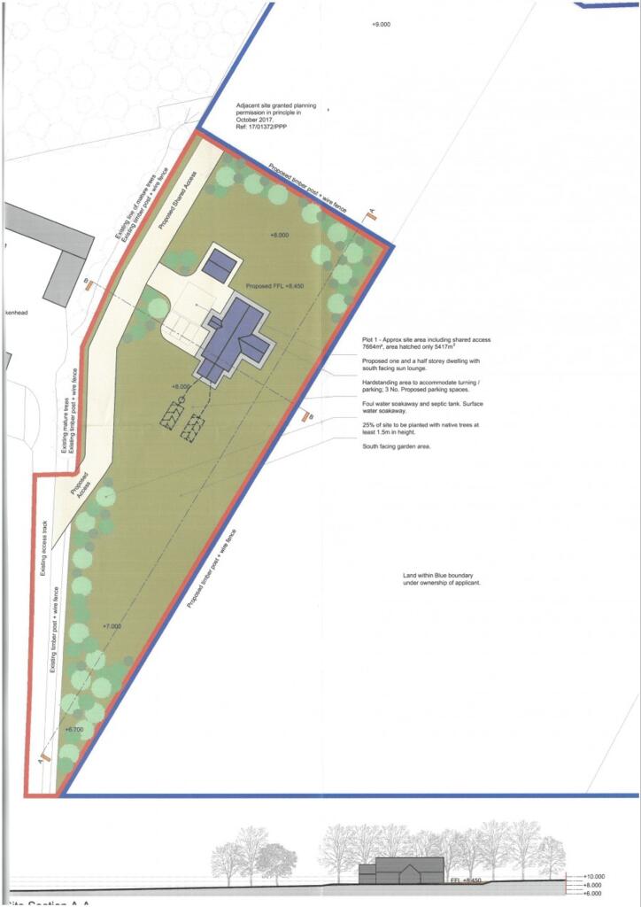
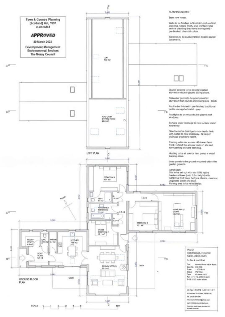
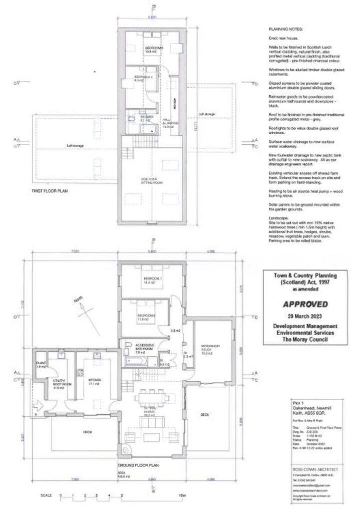
Full Description: <p><strong>Holly Burton of REMAX Evolution is delighted to present this excellent opportunity to acquire one or two building plots, both with full planning permission for the erection of a 4 bed and a 5 bed detached home. Each plot has a borehole and septic tank in place. The South facing plots extend to approx 1 acre each and benefit from beautiful countryside views. Plot 1 extends to 0.4 HA, plot 2 extends to 0.47 HA.</strong></p><p><strong>Plot 1 - Offers around £65,000</strong><br /><strong>Plot 2 - Offers around £65,000</strong><br /><strong>Both plots - Offers around £120,000</strong><br /><br />Plot 1 Aberdeenshire Planning Ref; <strong>APP/21/01412/PPP</strong><br />Plot 2 Aberdeenshire Planning Ref; <strong>APP/</strong>21/01358/PPP</p><p>What3Words Location; ///lookout.balancing.acre<br /><br /><br /><strong>Location</strong><br />The plots are situated in a lovely rural location, approx 2 miles from the popular town of Keith. Keith provides a variety of amenities and shops, along with primary and secondary schools. The plots are within easy distance from the A96 - the main road from Aberdeen to Inverness, and along with the train station in Keith - this makes for easy commuting to various towns and cities. The city of Elgin is approx 15 miles.<br /></p>
Location
Address
Plots at Oakenhead, Newmill, Keith, Moray AB55 6QR
City
Keith
Features and Finishes
Two Building Plots Available as one or as a whole, Large Sites of Approx 1 Acre Each, Lovely, Countryside Location with Beautiful Views, Full Planning Permission in Place, Boreholes in Place
Legal Notice
Our comprehensive database is populated by our meticulous research and analysis of public data. MirrorRealEstate strives for accuracy and we make every effort to verify the information. However, MirrorRealEstate is not liable for the use or misuse of the site's information. The information displayed on MirrorRealEstate.com is for reference only.