Plots with planning behind Lion & Fiddle, Trowbridge Road, Hilperton, Trowbridge, BA14

GBP 299995 For Sale

Property Details

Property Type

Plot

Description

Property Details: • Type: Plot • Tenure: N/A • Floor Area: N/A

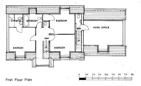
Key Features: • Superb residential development site with full planning, subject to conditions • Full planning consent for two quality new build homes • 2 x 4 Bedroom detached dwellings with double garage and office space above • Wiltshire Planning application number PL/2021/03253 • Good location, close by to the popular town of Trowbridge

Location: • Nearest Station: N/A • Distance to Station: N/A

Agent Information: • Address: 6 The Bridge, Frome, BA11 1AR

Full Description: Description - We are delighted to be able to offer an exciting development opportunity with full planning for two detached dwellings on land south east of the Lion and Fiddle pub in Hilperton.Located off the Trowbridge Road/Devizes Road/Church Road junction in Hilperton, the site is approached over a legal right of way across the Lion & Fiddle car park alongside a public footpath.The topography of the land is level and approximately 50% of the proposed development area is surfaced with Tarmac and adjoins the car park to the public house, whilst the remainder is a tussock grassed area. Beyond the site the grass area continues to a small copse of trees including Hazel, Ash, Blackthorn and Plum.Cooper and Tanner Warminster residential office ) will be well placed to comment upon the local market and provide guidance on potential completed development sales prices. Interested parties must undertake their own investigations and satisfy themselves in respect of potential scheme end values.Planning - Planning was approved on 2/3/2023, further details regarding the planning consent are available from the selling agent or can be found via the Wiltshire Council online Planning Portal using reference PL/2021/03253. Interested parties must satisfy their own planning investigations.Location - Hilperton is a lovely village situated on the edge of Trowbridge, the county town of Wiltshire. The village includes a primary school, public house and popular garden centre. The areas scenic countryside enjoys a selection of beautiful walks nearby, including the Kennet and Avon Canal whilst Southwick Country Park and Biss Meadows Country Park are not far. Within the town of Trowbridge, you will discover a wide variety of facilities including the multi-screen cinema complex at St Stephens Place which is surrounded by a number of dining options. The village has excellent transport links with the A361 passing outside the village and the A350 nearby which leads to the M4 via Chippenham and the A303 and A36 to the south. Trowbridge station provides access to London as well as a short ride to the world heritage city of Bath.Plot DetailsGround floor each house 1065 sq ftFirst Floor each house 930 sq ftFirst Floor Garage each house 200 sq ftTotal Sq Ft Internally approx. 2295 – 2300 Sq FtMethod of Sale - Private Treaty.Viewings - Strictly by prior appointment with Cooper and Tanner. Tel. . Please note this is an area of bare land and suitable precautions and care should be taken during viewings.Local Council - Wiltshire CouncilServices - New mains water and electric supply required and private drainage system. Prospective purchasers must satisfy themselves as to the location and capacity of any services.Tenure - Freehold. Vacant possession upon completion.CIL Payment - An amount of £30,789.42 – LA/2024/0037 will be due.Development-PropertyBrochuresBrochure 1

Location

Address

Plots with planning behind Lion & Fiddle, Trowbridge Road, Hilperton, Trowbridge, BA14

City

Trowbridge

Features and Finishes

Superb residential development site with full planning, subject to conditions, Full planning consent for two quality new build homes, 2 x 4 Bedroom detached dwellings with double garage and office space above, Wiltshire Planning application number PL/2021/03253, Good location, close by to the popular town of Trowbridge

Legal Notice

Our comprehensive database is populated by our meticulous research and analysis of public data. MirrorRealEstate strives for accuracy and we make every effort to verify the information. However, MirrorRealEstate is not liable for the use or misuse of the site's information. The information displayed on MirrorRealEstate.com is for reference only.

Real Estate Broker
Cooper & Tanner, Frome
Brokerage
Cooper & Tanner, Frome
Top Tags
Likes

0

Views

50

This website uses cookies to ensure you get the best experience. Learn more