Podimore, Yeovil, BA22
Property Details
4
2
Plot
Description
Property Details: • Type: Plot • Tenure: N/A • Floor Area: N/A
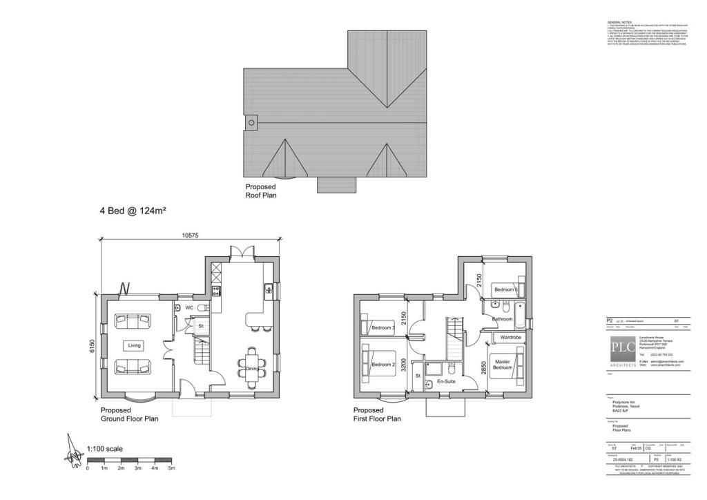
Key Features: • Building Plot With Planning Permission Granted • Detached Four Bedroom Family Home • 124 sqm / 1,334 sqft • Double Aspect Living Room & Generous Kitchen/Diner • WC, Family Bathroom & En Suite Shower Room • Private Garden & Parking • Planning Ref - 25/00678/FUL. (Somerset Council)
Location: • Nearest Station: Yeovil Pen Mill Station • Distance to Station: 5.636558689400374 miles
Agent Information: • Address: 8 Bridge Street, Halstead, CO9 1HT
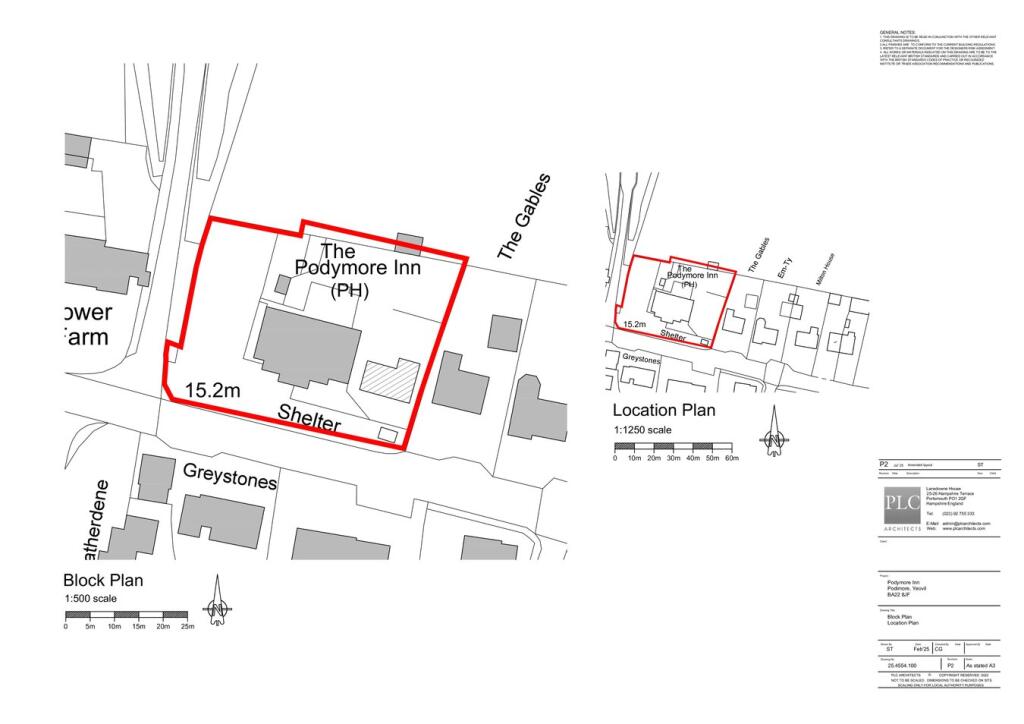
Full Description: <p>An excellent opportunity to acquire a building plot located adjacent to The Podimore Inn in the village of Podimore, Somerset, with full planning permission granted for the construction of a four bedroom detached dwelling extending to approximately 124 sq m (1,334 sq ft).</p><p>The approved accommodation will provide well-proportioned living space including a large kitchen/dining room, double aspect living room, and cloakroom/WC on the ground floor. The first floor will comprise four bedrooms, including a principal bedroom with en-suite, together with a family bathroom.</p><p>Externally, the property will benefit from a private garden and allocated parking. Prospective purchasers should note that VAT is applicable to the purchase.</p><p>There is a Community Infrastructure Levy (CIL) payment of £6,901.64 and a phosphate mitigation balance of £19,550 payable. Biodiversity Net Gain (BNG) is to be provided on site.</p><p>Planning permission has been granted by Somerset Council under reference 25/00678/FUL.</p><p>Further information, including planning documents and site details, is available upon request.</p>
Location
Address
Podimore, Yeovil, BA22
City
Yeovil
Features and Finishes
Building Plot With Planning Permission Granted, Detached Four Bedroom Family Home, 124 sqm / 1,334 sqft, Double Aspect Living Room & Generous Kitchen/Diner, WC, Family Bathroom & En Suite Shower Room, Private Garden & Parking, Planning Ref - 25/00678/FUL. (Somerset Council)
Legal Notice
Our comprehensive database is populated by our meticulous research and analysis of public data. MirrorRealEstate strives for accuracy and we make every effort to verify the information. However, MirrorRealEstate is not liable for the use or misuse of the site's information. The information displayed on MirrorRealEstate.com is for reference only.