Primrose Lane, Yeovil

GBP 490000 For Sale

Property Details

Bedrooms

4

Bathrooms

2

Property Type

Detached Bungalow

Description

Property Details: • Type: Detached Bungalow • Tenure: Freehold • Floor Area: N/A

Key Features: • IMPRESSIVE DETACHED CHALET-STYLE HOUSE (2227 sq ft) WITH 4 DOUBLE BEDROOMS. • ONE OF THE BEST RESIDENTIAL ADDRESSES ON THE RURAL EDGE OF YEOVIL TOWN. • GENEROUS PLOT AND GARDENS EXTENDING TO JUST UNDER A QUARTER OF AN ACRE. • EXTENSIVE DRIVEWAY PARKING FOR 8 CARS OR MORE. • ATTACHED TANDEM DOUBLE GARAGE PLUS CARPORT AND OUTIBUILDING / WORKSHOP. • SUPERB EAST-FACING COUNTRYSIDE VIEWS AT THE FRONT BOASTING SUNRISES! • SUNNY WEST-FACING REAR GARDEN. • TWO GROUND FLOOR DOUBLE BEDROOMS / TWO FIRST FLOOR DOUBLE BEDROOMS. • SHORT WALK TO NEARBY COUNTRYSIDE AND SHORT DISTANCE FROM TOWN CENTRE. • NO FURTHER CHAIN.

Location: • Nearest Station: N/A • Distance to Station: N/A

Agent Information: • Address: 80 Cheap Street, Sherborne, DT9 3BJ

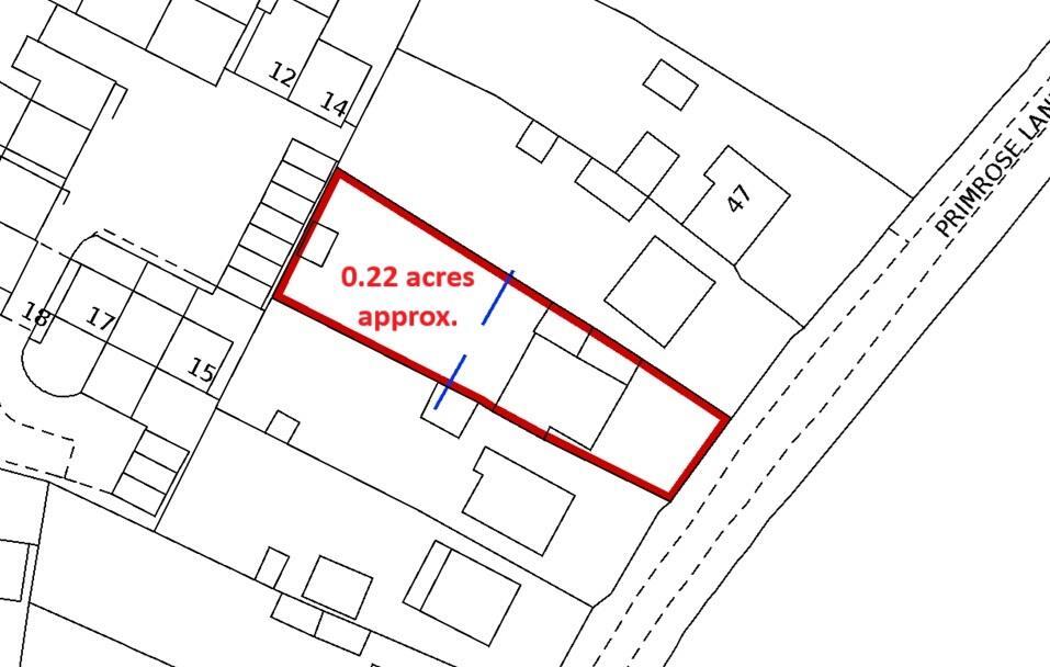
Full Description: NO FURTHER CHAIN. '43 Primrose Lane' is a mature, detached, four double bedroom, chalet-style property (XXXX square feet) occupying a generous level plot and stunning gardens extending to just under a quarter of an acre (0.22 acres approximately). The house is located in, arguably the best address on the edge of Yeovil – Primrose Lane – with extensive countryside views at the front and country lane walks from the front door. The flexible accommodation extends to over 2227 square feet including large, extensive outbuildings. There is a large, private driveway providing off road parking for 8 cars or more leading to a carport and tandem length double garage. There is also a detached brick-built outbuilding in the grounds. The rear garden boasts a sunny west-facing aspect and enjoys the afternoon and evening sun. The property is in excellent decorative order throughout. It is heated by mains gas fired radiator central heating and also benefits from solar panels and uPVC double glazing. It offers superb scope for further extension or reconfiguration of the existing accommodation, subject to the necessary planning permission. The well laid out, flexible accommodation enjoys good levels of natural light from a sunny east-to-west aspect and dual and triple aspects in many of the rooms. The accommodation briefly comprises entrance hall, sitting room / dining room, conservatory / reception room two, kitchen / breakfast room, utility room / rear lobby, inner hall, two ground floor double bedrooms – one which could be used as a third reception room - and a ground floor shower room / WC. On the first floor, there is a landing area, two double bedrooms and a family bathroom. There are lovely country lane walks from the front door. Primrose Lane is a top, exclusive residential address on the edge of the North Eastern side of Yeovil. The lane leads out in to the countryside. The centre of the town and it's excellent amenities is within walking distance. NO FURTHER CHAIN.uPVC double glazed front door to entrance porch. Glazed door to ENTRANCE RECEPTION HALL: 9’10 maximum x 19’9 maximum. A generous L-shaped main reception hall providing a greeting area and a heart to the home, staircase rises to the first floor, two radiators, timber effect flooring, door leads to understairs storage cupboard space. Doors lead off to main ground floor rooms.SITTING ROOM / DINING ROOM: 24’9 maximum x 11’10 maximum. A very well propertied main reception room enjoying a light triple aspect with three uPVC double glazed windows to the front, two uPVC double glazed windows to both sides, natural stone fireplace recess and hearth, cast iron log burning stove, two radiators, TV point telephone point.KITCHEN BREAKFAST ROOM: 13’9 maximum x 12’ maximum. A generous room boasting an extensive range of Shaker-style kitchen units comprising oak effect laminated worksurface and surrounds, inset composite one and a half sink bowl and drainer unit, mixer tap over, large range style leisure oven with five burner mains gas hob, warming plate and electric oven and grill, a range of drawers and cupboards under, integrated dishwasher, recess provides space for upright fridge freezer, chrome heated towel rail, fitted waste bin, fitted corner carousel unit, a range of matching wall mounted cupboards, concealed wall mounted cooker hood extractor fan, two uPVC double glazed windows to the side, oak effect flooring. uPVC double glazed door gives access to SIDE LOBBY / UTILITY ROOM: 13’11 maximum x 3’ maximum. Space and plumbing for washing machine, windows to the side, glazed door to the side leading to the carport.CONSERVATORY / RECEPTION ROOM TWO: 13’5 maximum x 9’5 maximum. uPVC double glazed windows to the rear and side, rear overlooks the main rear garden, uPVC double glazed double French doors open onto the rear patio, light and power connected.Further doors lead off the inner hall to the ground floor bedrooms.BEDROOM ONE: 16’1 maximum x 9’6 maximum. A generous double bedroom enjoying a light dual aspect with uPVC double glazed windows to the front and side, radiator.BEDROOM TWO: 16’2 maximum x 10’6 maximum. A second generous double bedroom, radiator, alcove with TV point, uPVC double glazed door and side lights open onto the rear patio.GROUND FLOOR SHOWER ROOM: 11’5 maximum x 5’2 maximum. A modern white suite comprising low level WC, wash basin over storage cupboards, tiled splashback, walk in double sized glazed shower cubicle with wall mounted mains shower, glazed shower screen, extractor fan, illuminated demister mirror with Bluetooth, chrome heated towel rail, timber effect flooring.Staircase rises from the entrance reception hall to the first floor landing, ceiling hatch to loft storage space, door leads to shelved linen cupboard, further door leads to eves storage cupboard space. Doors lead off the landing to further bedrooms.BEDROOM THREE: 11’11 maximum x 11’11 maximum. A third generous double bedroom, uPVC double glazed window to the front boasts extensive countryside views, an easterly aspect in the morning sun enjoying sunrise, radiator, door leads to eves storage cupboard space.BEDROOM FOUR: 13’2 maximum x 11’11 maximum. A fourth generous double bedroom, uPVC double glazed window to the rear overlooks the rear garden boasting a westerly aspect and the afternoon sun, radiator, two doors lead to eves storage cupboard space.FIRST FLOOR FAMILY BATHROOM: 6’3 maximum x 6’4 maximum. A modern white suite comprising low level WC, wash basin over storage cupboard, tiled splashback, panel bath with glazed shower screen over, wall mounted mains shower over, secondary mixer tap and hand held shower, tiling to splash prone areas, chrome heated towel rail, illuminated mirror, extractor fan, timber effect flooring.OUTSIDE:This substantial detached property occupies a generous level plot extending to under a quarter of an acre (0.22 acres approximately). At the front of the property a dropped curb gives vehicular access to a private driveway. This area provides extensive off road parking for eight cars or more. A variety of flowerbeds and borders, outside light. Driveway leads to CARPORT: 27’8 maximum x 9’7 maximum. Area to store recycling containers and wheelie bins, outside light, outside tap. Carport leads to attached garage.TANDEM DOUBLE GARAGE: 38’3 maximum x 11’ maximum. This tandem length double garage offers exceptional space, light and power connected, uPVC double glazed windows to the side and rear, uPVC double glazed personal door to the side, automatic roller door to the rear garden.MAIN REAR GARDEN: Boasting a sunny westerly aspect and a good degree of privacy. This rear garden measures approximately 113’7 maximum in depth x 52’7 maximum in width. It is laid mainly to lawn and enclosed by timber panel fencing. There is a large paved patio seating area with outside light and outside tap, outside power point, variety of mature trees and fruit trees, water feature.DETACHED GARDEN STORE comprising two rooms.Room one: 14’3 maximum x 8’11 maximum.Room two: 6’3 maximum x 5’8 maximum. There is further undercover storage at the rear of the outbuilding.BrochuresPrimrose Lane, Yeovil

Location

Address

Primrose Lane, Yeovil

City

Mudford

Features and Finishes

IMPRESSIVE DETACHED CHALET-STYLE HOUSE (2227 sq ft) WITH 4 DOUBLE BEDROOMS., ONE OF THE BEST RESIDENTIAL ADDRESSES ON THE RURAL EDGE OF YEOVIL TOWN., GENEROUS PLOT AND GARDENS EXTENDING TO JUST UNDER A QUARTER OF AN ACRE., EXTENSIVE DRIVEWAY PARKING FOR 8 CARS OR MORE., ATTACHED TANDEM DOUBLE GARAGE PLUS CARPORT AND OUTIBUILDING / WORKSHOP., SUPERB EAST-FACING COUNTRYSIDE VIEWS AT THE FRONT BOASTING SUNRISES!, SUNNY WEST-FACING REAR GARDEN., TWO GROUND FLOOR DOUBLE BEDROOMS / TWO FIRST FLOOR DOUBLE BEDROOMS., SHORT WALK TO NEARBY COUNTRYSIDE AND SHORT DISTANCE FROM TOWN CENTRE., NO FURTHER CHAIN.

Legal Notice

Our comprehensive database is populated by our meticulous research and analysis of public data. MirrorRealEstate strives for accuracy and we make every effort to verify the information. However, MirrorRealEstate is not liable for the use or misuse of the site's information. The information displayed on MirrorRealEstate.com is for reference only.

Real Estate Broker
Rolfe East, Sherborne
Brokerage
Rolfe East, Sherborne
Top Tags
Likes

0

Views

34

This website uses cookies to ensure you get the best experience. Learn more