Quarry Lane, Kingsweston, Bristol

GBP 55000 For Sale

Property Details

Property Type

Land

Description

Property Details: • Type: Land • Tenure: N/A • Floor Area: N/A

Key Features: • 13 February LIVE ONLINE AUCTION • Building plot with Outline Planning granted • 3-bedroom detached house with parking and gardens • Ideal for builders, developers and self-builders • GDV of circa £325,000 • 6-week completion

Location: • Nearest Station: Sea Mills Station • Distance to Station: 1.6 miles

Agent Information: • Address: 60 Northumbria Drive, Henleaze, Bristol, BS9 4HW

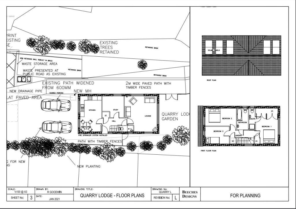
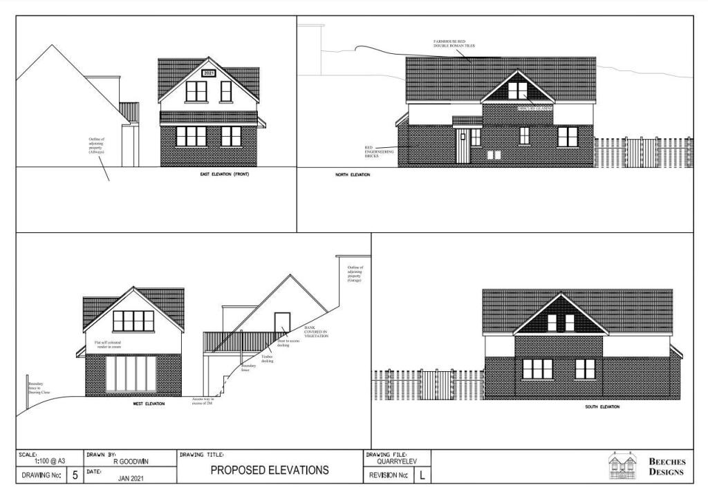
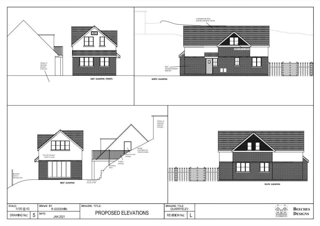
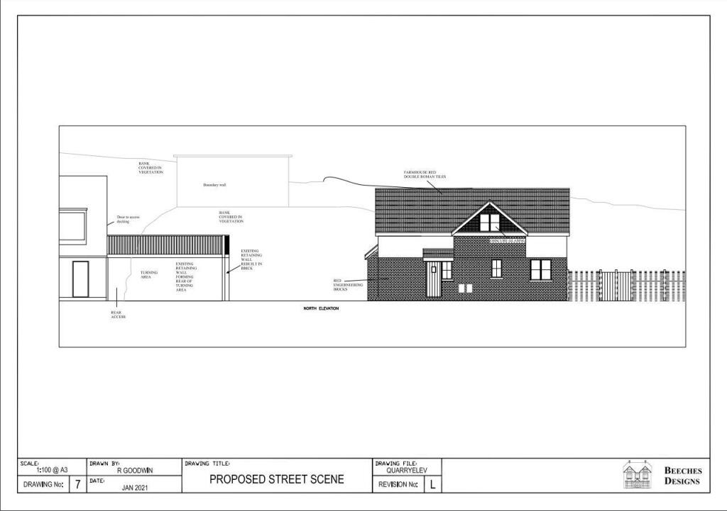
Full Description: GUIDE PRICE: £55,000-£65,000 An opportunity to purchase a residential building plot with outline planning consent granted for the erection of a detached 3 bedroom house with parking and gardens. Currently, the majority of relevant plans have been approved with approval of the details of the landscaping remaining. An ideal prospect for builders, developers and self-builders to purchase create a superb new home within close proximity to the Blaise Castle Estate.For Sale By Auction - This property is due to feature in our online auction on 13 February 2025 at 6.00pm. Bidding is via proxy, telephone or online remote bidding.Viewings - By appointment.VIEWING NOTE - When viewing, please park in Kingsweston Lane and not the private driveway.Summary - BUILDING PLOT WITH OUTLINE PLANNING CONSENT GRANTED FOR S DETACHED HOUSEDescription - A building plot situated in a convenient residential location on Quarry Lane in Kingsweston. The site has outline planning permission granted with the majority of reserved matters approved - the approval of the details of the proposed landscaping is yet to be approved. The proposed house will benefit from 3 bedrooms on the first floor, a kitchen, study and lounge on the ground floor with parking and gardens externally. A fantastic opportunity for builders, developers and those looking for a self-build project.Location - Situated at the end of Quarry Lane, just off Lawrence Weston Road, there are good transport links and amenities available locally. The property is located within close proximity of the historic Blaise Castle Estate and park.Planning - Outline planning consent was granted on 12 April 2022 for the erection of a detached single dwelling house, with 'Access', Appearance'. 'Layout' and 'Scale' to be considered. under Application No. 19/05954/P.Gross Development Value (Gdv) - We would anticipate a GDV in the region of £325,000 for the proposed dwelling.Local Authority - Bristol City Council.Completion - Completion for this lot will be 6 weeks from exchange of contracts or sooner by mutual agreement.Letting - What Can Maggs & Allen Achieve For You? - Maggs & Allen's experienced letting team are happy to discuss the rental of this property and can advise on maximising the investment. We offer Full Management, Let Only and Rent Collection Services. Contact Jessica Archer and her team on or email .Auction Or Bridging Finance Required? - Do you need a mortgage or loan quickly? Maggs & Allen have specialist Independent Brokers who can arrange residential and commercial finance on all types of property. Contact the Auction Team today to be put through to our mortgage and loan experts on or email Buyer's Premium - Please be advised that all purchasers are subject to a £1,500 plus VAT (£1,800 inc VAT) buyer’s premium payable upon exchange of contracts.*Guide Price - Guide Prices are provided as an indication of each seller's minimum expectation. They are not necessarily figures which a property will sell for and may change at any time prior to the auction. Each property will be offered subject to Reserve Price (a figure below which the Auctioneer cannot sell the property during the auction) which we expect will be set within the Guide Range or no more than 10% above a single figure Guide.Reserve Price - The seller's minimum acceptable price at auction and the figure below which the auctioneer cannot sell. The reserve price is not disclosed and remains confidential between the seller and the auctioneer. Both the guide price and the reserve price can be subject to change up to and including the day of the auction.Proxy, Telephone & Online Remote Bidding - The auction will be held online via live video stream with buyers able to bid via telephone, online or by submitting a proxy bid. You will need to complete our remote bidding form, which is available to download from our website. The completed form, ID (driving licence or passport and a recent utility bill stating the home address of the purchaser) and a bank transfer for the Preliminary Deposit must be received no later than 24 hours before the date of the auction.Preliminary Deposits - The Preliminary Deposit required for each lot you wish to bid for will be calculated based upon the Guide Price as follows:£1,000 - £150,000: £5,000£151,000 and above: £10,000If you bid is successful, the balance of the deposit monies and Buyer’s Premium (£1,800 inc VAT) must be transferred to our client account within 24 hours of the auction sale. If you are unsuccessful at the auction, your Preliminary Deposit will be returned to you within 5 working days.BrochuresQuarry Lane, Kingsweston, Bristol

Location

Address

Quarry Lane, Kingsweston, Bristol

City

Kingsweston

Features and Finishes

13 February LIVE ONLINE AUCTION, Building plot with Outline Planning granted, 3-bedroom detached house with parking and gardens, Ideal for builders, developers and self-builders, GDV of circa £325,000, 6-week completion

Legal Notice

Our comprehensive database is populated by our meticulous research and analysis of public data. MirrorRealEstate strives for accuracy and we make every effort to verify the information. However, MirrorRealEstate is not liable for the use or misuse of the site's information. The information displayed on MirrorRealEstate.com is for reference only.

Real Estate Broker
Maggs & Allen, Auction, Commercial & Investment
Brokerage
Maggs & Allen, Auction, Commercial & Investment
Top Tags
ideal for builders GDV of circa £325 6-week completion
Likes

0

Views

73

This website uses cookies to ensure you get the best experience. Learn more