Raconor, Weeford Road, Sutton Coldfield, B75 5RF
Property Details
4
2
Bungalow
Description
Property Details: • Type: Bungalow • Tenure: FREEHOLD • Floor Area: N/A
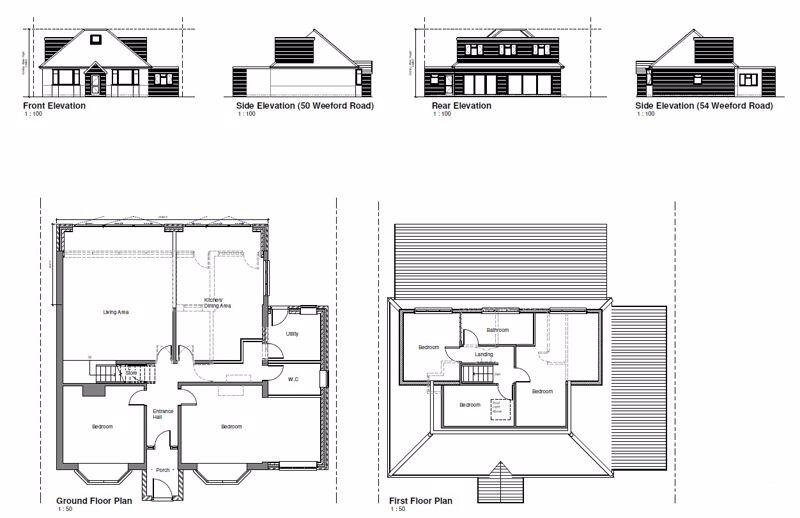
Key Features: • PLANNING FOR A TWO & A HALF STOREY DWELLING UNDER PERMITTED DEVELOPMENT APPROX. 1,700 SQUARE FEET • FURTHER SINGLE STOREY ANNEX BUILDING APPROX. 850 SQUARE FEET • ADDITIONAL SUBSTANTIAL BARNS AND OUTBUILDINGS OF APPROX. 5,000 SQUARE FEET • SET IN SUBSTANTIAL GROUNDS EXTENDING TO APPROX. 1.9 ACRES • SOUGHT AFTER RESIDENTIAL LOCATION ON THE OUTSKIRTS OF FOUR OAKS • OPEN VIEWS TO FIELDS & FARMLAND TO FRONT & REAR • EASY ACCESS TO A38 AND M42 PLUS BIRMINGHAM & LICHFIELD
Location: • Nearest Station: Four Oaks Station • Distance to Station: 1.5524556128183746 miles
Agent Information: • Address: First Floor, 5 High Street, Aldridge, WS9 8LX
Full Description: Raconor, Weeford Road, Sutton Coldfield offers a rare opportunity to acquire a bungalow with planning under permitted development rights for a two storey dwelling of approximately 1700 square feet, Planning Document 2022/08305/PA, and substantial single storey outbuilding extending to an overall 850 square feet suitable for home office, gym and offering flexible accommodation. <br /> <br />Rural in feel located on the outskirts of Four Oaks, the opportunity offers approximately 1.9 acres of land with additional barns and outbuildings offering a further 5,000 square feet suitable for a variety of potential uses including equestrian, storage or further dwelling subject to planning permission being granted. <br /> <br />Weeford Road is a well regarded residential location with views towards open fields front and rear. Local shops and farm shop are within walking distance along with Mere Green Centre only a short drive away providing a comprehensive range of shops and fine bistro dining. For commuters there is easy access to the A38, M42 along with nearby train services providing a regular service to Birmingham and Lichfield.
Location
Address
Raconor, Weeford Road, Sutton Coldfield, B75 5RF
City
Sutton Coldfield
Features and Finishes
PLANNING FOR A TWO & A HALF STOREY DWELLING UNDER PERMITTED DEVELOPMENT APPROX. 1,700 SQUARE FEET , FURTHER SINGLE STOREY ANNEX BUILDING APPROX. 850 SQUARE FEET, ADDITIONAL SUBSTANTIAL BARNS AND OUTBUILDINGS OF APPROX. 5,000 SQUARE FEET, SET IN SUBSTANTIAL GROUNDS EXTENDING TO APPROX. 1.9 ACRES, SOUGHT AFTER RESIDENTIAL LOCATION ON THE OUTSKIRTS OF FOUR OAKS, OPEN VIEWS TO FIELDS & FARMLAND TO FRONT & REAR, EASY ACCESS TO A38 AND M42 PLUS BIRMINGHAM & LICHFIELD
Legal Notice
Our comprehensive database is populated by our meticulous research and analysis of public data. MirrorRealEstate strives for accuracy and we make every effort to verify the information. However, MirrorRealEstate is not liable for the use or misuse of the site's information. The information displayed on MirrorRealEstate.com is for reference only.