Ram Hill, Coalpit Heath, Bristol

GBP 249950 For Sale

Property Details

Bedrooms

2

Bathrooms

2

Property Type

Mobile Home

Description

Property Details: • Type: Mobile Home • Tenure: N/A • Floor Area: N/A

Key Features: • Detached Park Home • Two Double Bedrooms • Ensuite Bathroom to Master Bedroom • 19' Lounge • Overr 55's Only • Dining Room • Gardens to all sides • Off Street Parking

Location: • Nearest Station: N/A • Distance to Station: N/A

Agent Information: • Address: 4 Flaxpits Lane, Winterbourne, Bristol, BS36 1JX

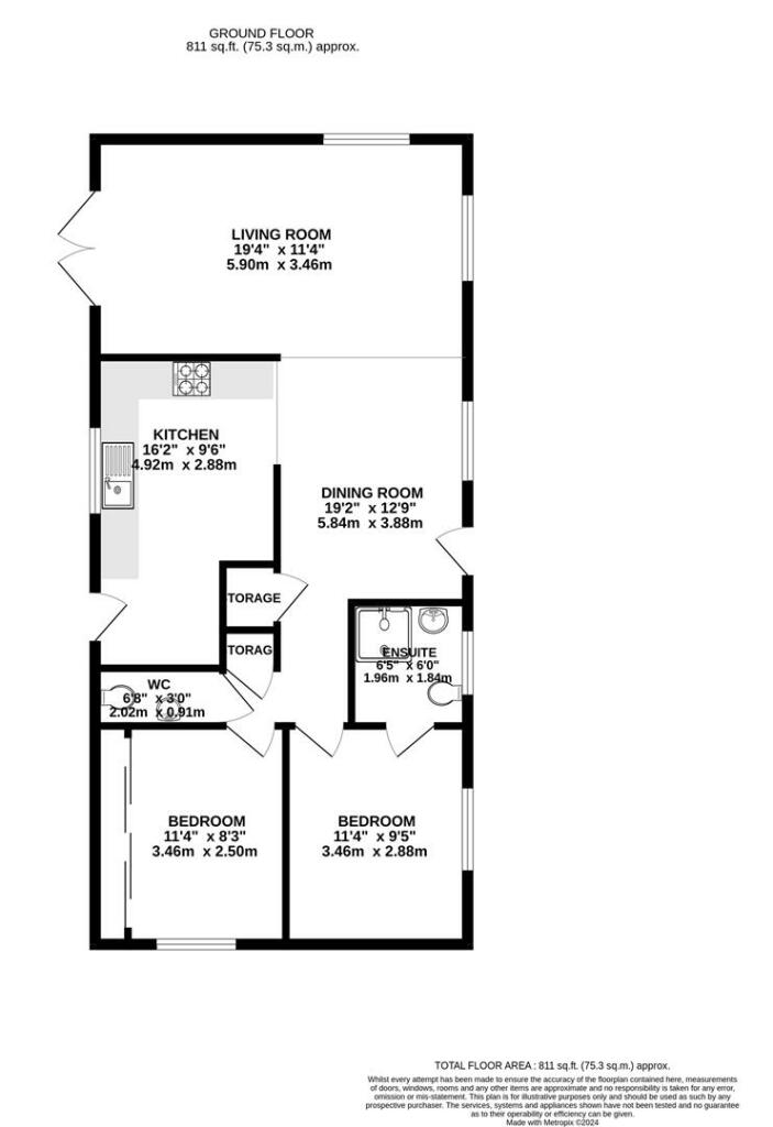
Full Description: Vendor advises complete renovation to include All Brand new replacement double glazed windows and doors Brand new central heating system throughout including a New combi boiler A complete full rewire, under guarantee . To include all brand new chrome hardware throughout External wall installation which will minimise heat loss, reduce energy costs and improve the external appearance of the property. External wall insulation will also reduce ongoing maintenance requirements.Exterior has also been freshly painted with recommended Park Home paint Resitex All Interior walls plaster-boarded and plastered throughout , including ceilings, all freshly painted Brand new Kitchen to include Neff 5 ring hobb with neff extract fan Double Neff oven & Neff Microwave Full height freezer & Full height fridge Brand new stylish and modern en-suite , to include brand new walk in shower & Brand new stylish and modern cloakroom Garden has been professionally landscaped with the focus on making it maintenance free To include new fences, large decking full length of the bungalow . Large area laid with artificial grass Newly slate tiles for a quite secluded area Brand new flooring and made toMeasure blinds throughoutNestled in the charming village of Ram Hill, Coalpit Heath, Bristol, this fully renovated to an exceptional standard park home is a hidden gem waiting to be discovered. Boasting two cosy reception rooms, perfect for entertaining guests or simply unwinding after a long day, this property offers a warm and inviting atmosphere.With two well-appointed bedrooms, each providing a peaceful retreat, and two bathrooms ensuring convenience and comfort for all residents, this bungalow is designed for modern living. The layout is ideal for those seeking a manageable yet spacious home.Situated on a generous plot, this property offers ample parking for one vehicle, a rare find in this sought-after location. The tranquil surroundings and easy access to local amenities make this park home a desirable choice for those looking to enjoy country living.Don't miss the opportunity to make this charming park home your own and experience the quintessential British countryside lifestyle near the heart of Bristol.Entrance - Composite door to entrace area with radiator and open to:Dining Room - 5.84m x 3.89m (19'2 x 12'9) - Double glazed window to the front and radiator, open to:Lounge - 5.89m x 3.45m (19'4" x 11'4") - Double glazed windows to the front, side and French door to rear garden. feature fireplace with living flame, television point.Kitchen - 4.93m x 2.90m (16'2" x 9'6) - Double glazed door to rear, double glazed window to rear, a range of wall and base units with work surface over, larder units with full height freezer and full height fridge, integrated dishwasher and five ring gas hob with extractor fan over, combination oven, microwave and oven, radiator, tiles splashback, stainless steel sink with mixer tap. Karndean flooring throughout the kitchen dining area and living roomInner Lobby - Radiator, two storage cupboard and doors to:Bedroom One - 3.45m x 2.87m (11'4 x 9'5") - Double glazed window to the front, double radiator and door to:En-Suite - Double glazed obscure window to front, large shower cubicle with mains waterfall shower, inset spotlights and extractor fan. Vanity hand wash basin with mixer tap, low level WC and heated towel railBedroom Two - 3.45m x 2.87m (11'4 x 9'5) - Double glazed window to the side, radiator, fitted wardrobes.Cloakroom - Suite comprising of low level WC and vanity hand wash basin with mixer tap, part tiled walls, tiled floor, heated towel rail, extractor fan and spotlights.Gardens - Mainly laid to astro turf on the front and sides, astro turf area to the rear, paved patio area, block paved area providing off street parking.BrochuresRam Hill, Coalpit Heath, Bristol

Location

Address

Ram Hill, Coalpit Heath, Bristol

City

Cardiff

Features and Finishes

Detached Park Home, Two Double Bedrooms, Ensuite Bathroom to Master Bedroom, 19' Lounge, Overr 55's Only, Dining Room, Gardens to all sides, Off Street Parking

Legal Notice

Our comprehensive database is populated by our meticulous research and analysis of public data. MirrorRealEstate strives for accuracy and we make every effort to verify the information. However, MirrorRealEstate is not liable for the use or misuse of the site's information. The information displayed on MirrorRealEstate.com is for reference only.

Real Estate Broker
A J Homes, Winterbourne
Brokerage
A J Homes, Winterbourne
Top Tags
Detached Park Home Two Double Bedrooms 19' Lounge Over 55's Only
Likes

0

Views

34

This website uses cookies to ensure you get the best experience. Learn more