RARE OPPORTUNITY - Main Street, Carlton

GBP 2000000 For Sale

Property Details

Bedrooms

8

Bathrooms

5

Property Type

Detached

Description

Property Details: • Type: Detached • Tenure: N/A • Floor Area: N/A

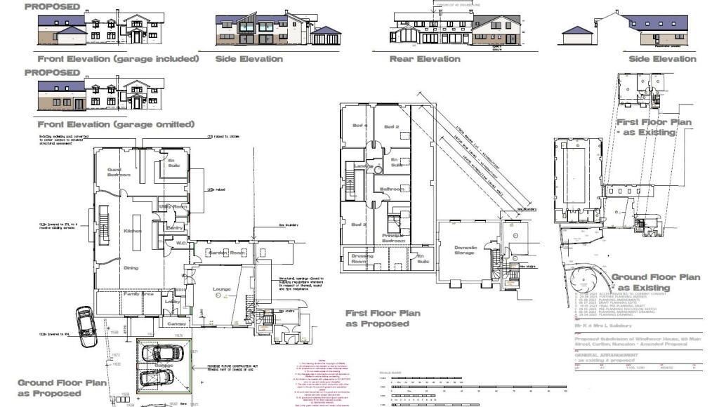
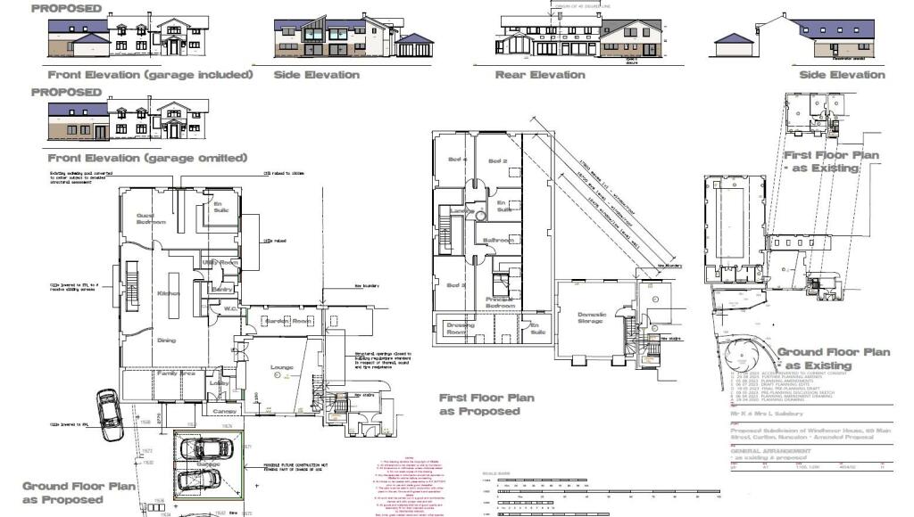
Key Features: • Vast Property, Vast Plot & Vast Potential • Centre of Carlton Village Location - Plot of circa 1.2 acres • Circa 6,000 sq ft of accommodation • Executive Detached Residence, Gated & Set Back From Road • Beautiful Gardens and Outlook Backing onto Farmers Fields • NO CHAIN SALE • Approved Planning Permission For Conversion - Ask For Further Details • Self Contained Annexe Bungalow circa 2,000 sq ft • Phenomenal Multi General Living Setup & Potential • Swimming Pool & Leisure Suite

Location: • Nearest Station: N/A • Distance to Station: N/A

Agent Information: • Address: 11 Dugdale Street, Nuneaton, CV11 5QJ

Full Description: **Unique Opportunity - Multi-Generational Living - Circa 6,000 sq ft - Sought After Village Locale - Superb Plot With Scope - Enviable Set Back From Road Position** Perhaps this may be your once-in-a-lifetime opportunity to purchase a property with flexible, spacious living, located in a highly sought after village just outside Market Bosworth. Situated on a plot of circa 1.2 acres, with further **Adjacent paddock land and a 3 bedroom Detached dwelling also available by further conversation and negotiation**, which would take the overall plot to circa 2.6 acres. There has been an approved planning application with Hinckley & Bosworth Council, Ref No: 23/00503/CONDIT ( activeTab=summary&keyVal=RV2FQQIIFR300, to develop the existing swimming pool suite area into a separate, two-story dwelling of circa 4,000 sq ft, effectively creating three distinct dwellings, on the same site.Property Description - It is rare to find the blend of size, further potential, and sought-after location that Windhover offers, meaning this is an opportunity not to be missed for a discerning buyer. Call our team today to discuss further the sheer scope of possibilities for this distinctive home, located in a quiet, desirable village near the historic market town of Bosworth.The property has a truly versatile floorplan and layout, via the spacious rooms to the main dwelling, as well as the "bungalow annexe", which in itself is generous in accommodation and benefits from 2/3 bedrooms, 2 bathrooms and lovely lounge with terrace leading onto the garden. This property offers large family lifestyle living, with a spacious 12.5m x 5m heated swimming pool and leisure facility including jacuzzi room, changing and store rooms ideally for entertaining and larger gatherings. There are (expansive mature gardens, with substantial vegetable area, orchard, main gardens and large patio and decked area with delightful views over rolling farmers fields.The property has been meticulously improved by the current owners, including opening up and refitting the Kitchen/Diner space with Snug Lounge off, as well as reconfiguration of the upstairs space to offering 5 double bedrooms, as well as two bathrooms on the First Floor of the main dwelling.Windhover (main dwelling) council tax band - G. Annexe Council Tax Band - D. EPC rating TBProperty Information Summary - Council Tax Band: GLocal Authority: Hinckley & BosworthTenure: FreeholdMaintenance or Service Charges: N/AEPC Certificate Rating: DApprox. Total Floor Area: 5955.00 sqftHeating System: Oil HeatingImportant Note To Purchasers - Intending purchasers will be asked to produce identification documentation for Anti Money Laundering Regulations at a later stage and we would ask for your co-operation in order that there will be no delay in agreeing the sale.We endeavour to make our sales particulars accurate and reliable, however, they do not constitute or form part of an offer or any contract and none is to be relied upon as statements of representation or fact. Any services, systems and appliances listed in this specification have not been tested by us and no guarantee as to their operating ability or efficiency is given.All measurements have been taken as a guide to prospective buyers only and are not precise. Please be advised that some of the particulars may be awaiting vendor approval. If you require clarification or further information on any points, please contact us, especially if you are traveling some distance to view.All fixtures and fittings ultimately are to be agreed with the seller via the fixtures and fittings form which will then form part of a legal contact through the conveyances and as the marketing estate agent none of our particulars or conversations are legally binding, only the legal solicitor paperwork.Up Estates has not sought to verify the legal title of the property and the buyers must obtain verification from their solicitor.BrochuresRARE OPPORTUNITY - Main Street, Carlton

Location

Address

RARE OPPORTUNITY - Main Street, Carlton

City

Carlton

Features and Finishes

Vast Property, Vast Plot & Vast Potential, Centre of Carlton Village Location - Plot of circa 1.2 acres, Circa 6,000 sq ft of accommodation, Executive Detached Residence, Gated & Set Back From Road, Beautiful Gardens and Outlook Backing onto Farmers Fields, NO CHAIN SALE, Approved Planning Permission For Conversion - Ask For Further Details, Self Contained Annexe Bungalow circa 2,000 sq ft, Phenomenal Multi General Living Setup & Potential, Swimming Pool & Leisure Suite

Legal Notice

Our comprehensive database is populated by our meticulous research and analysis of public data. MirrorRealEstate strives for accuracy and we make every effort to verify the information. However, MirrorRealEstate is not liable for the use or misuse of the site's information. The information displayed on MirrorRealEstate.com is for reference only.

Real Estate Broker
Up Estates, Nuneaton
Brokerage
Up Estates, Nuneaton
Top Tags
Carlton Detached Residence Orchard
Likes

0

Views

33

This website uses cookies to ensure you get the best experience. Learn more