Reservoir Retreat (D), Edgbaston, Birmingham, West Midlands, B16
Property Details
2
2
House
Description
Property Details: • Type: House • Tenure: N/A • Floor Area: N/A
Key Features: • Available from: 1st July 2026 • Deposit (per person): £550 • 2 WCs, 2 Showers • 2 Beds, 2 Doubles
Location: • Nearest Station: N/A • Distance to Station: N/A
Agent Information: • Address: 189 Dawlish Road, Bournbrook, Birmingham, B29 7AW
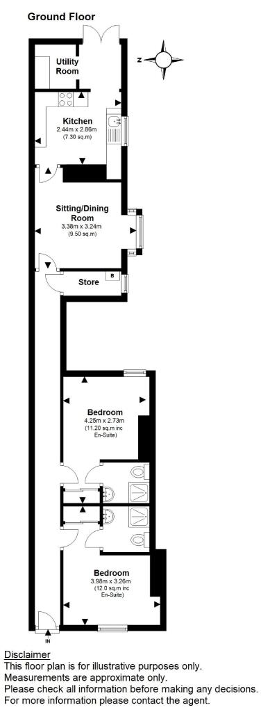
Full Description: 112 pppw Ex Bills | £154.90 pppw INCLUDING BILLS | 2 double bedroom house | AVAILABLE FOR THE 26/27 ACADEMIC YEAR | Tenancy Start Date 01/07/2026 | Ref: 24957Bills Included: Gas, green electricity, water, TV licence, highspeed broadband where possible, (limited by a fair usage policy).Pre-installed 350 Mbps Virgin Media optical fibre broadband, uncapped usage, included in the rent Security Alarm and Security Lights at both the front and rear doors, giving you peace of mind!Ground floor flat in a traditional 2 storey end terraced house situated in a quiet cul de sac near to Edgbaston Reservoir, within easy reach of University of Birmingham, BCU, Hagley Road, Five Ways and Birmingham city centre.The accommodation has modern gas central heating, is fully furnished and consists in:Hall, front ensuite bedroom, middle ensuite bedroom, lounge leading into a fully equipped kitchen.Large secluded garden and patio to rear, shared with 9B Reservoir Retreat, gardener included.(Cellar not demised)To see a video of this property: Holding Deposit of £112 Per PersonThis property is Council Tax Band AEnergy Efficiency Rating - DAlarm Washing Machine Central Heating Furnished Garden Maintained Garden Outside Seating Shower Storage Cupboard
Location
Address
Reservoir Retreat (D), Edgbaston, Birmingham, West Midlands, B16
City
None
Features and Finishes
Available from: 1st July 2026, Deposit (per person): £550, 2 WCs, 2 Showers, 2 Beds, 2 Doubles
Legal Notice
Our comprehensive database is populated by our meticulous research and analysis of public data. MirrorRealEstate strives for accuracy and we make every effort to verify the information. However, MirrorRealEstate is not liable for the use or misuse of the site's information. The information displayed on MirrorRealEstate.com is for reference only.