Reservoir Retreat, Edgbaston, Birmingham, West Midlands, B16

GBP 1,129 /mo
For Rent

Property Details

Property Type

House Share

Description

Property Details: • Type: House Share • Tenure: N/A • Floor Area: N/A

Key Features: • Available from: 1st July 2025 • Deposit (per person): £650 • 2 WCs, 2 Showers • 2 Beds, 2 Doubles

Location: • Nearest Station: N/A • Distance to Station: N/A

Agent Information: • Address: 189 Dawlish Road, Bournbrook, Birmingham, B29 7AW

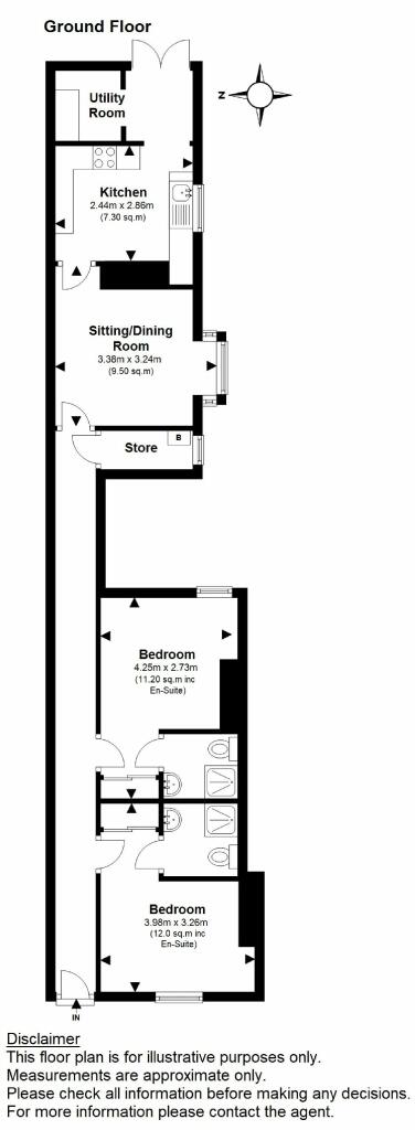
Full Description: AVAILABLE FOR THE 24/25 ACADEMIC YEAR - £130 pppw - Tenancy Start Date 01/07/2025 *Ref: 16230Pre-installed 350 Mbps Virgin Media optical fibre broadband, uncapped usage, included in the rent Security Alarm and Security Lights at both the front and rear doors, giving you peace of mind!Ground floor flat in a traditional 2 storey end terraced house situated in a quiet cul de sac near to Edgbaston Reservoir, within easy reach of University of Birmingham, BCU, Hagley Road, Five Ways and Birmingham city centre.The accommodation has modern gas central heating, is fully furnished and consists in:Hall, front ensuite bedroom, middle ensuite bedroom, lounge leading into a fully equipped kitchen.Large secluded garden and patio to rear, shared with 9B Reservoir Retreat, gardener included.(Cellar not demised)To see a video of this property: Holding Deposit of £130 Per Person (£260 per property)This property is Council Tax Band AEnergy Efficiency Rating - DAlarm Washing Machine Central Heating Furnished Garden Maintained Garden Outside Seating Shower Storage Cupboard

Location

Address

Reservoir Retreat, Edgbaston, Birmingham, West Midlands, B16

City

West Midlands

Features and Finishes

Available from: 1st July 2025, Deposit (per person): £650, 2 WCs, 2 Showers, 2 Beds, 2 Doubles

Legal Notice

This website uses cookies to ensure you get the best experience. Learn more