Room 3, Hotwell Road, BS8 4SA

GBP 895 For Rent

Property Details

Bedrooms

1

Bathrooms

4

Property Type

Terraced

Description

Property Details: • Type: Terraced • Tenure: N/A • Floor Area: N/A

Key Features: • Furnished • Room to rent • 4 Bathrooms • Separate kitchen & lounge • Garden • Bills included (Gas, Electric, Water, Wifi)

Location: • Nearest Station: N/A • Distance to Station: N/A

Agent Information: • Address: The Coach House, 38 Cotham Hill, Redland, Bristol, BS6 6LA

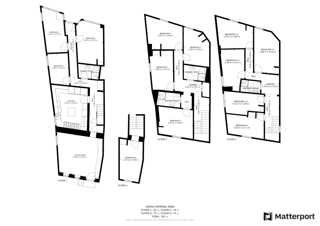
Full Description: A room (room 3 on the floorplan) to rent within a 13 bed student HMO. Finished to a very high standard throughout. The property benefits from 4 bathrooms, a separate kitchen & a separate lounge. The room is offered on a fully furnished basis & is available to move into for the next accedemic year - August move date.  Bills included - gas/electric/water/wifi. Students only.

Location

Address

Room 3, Hotwell Road, BS8 4SA

City

Rancho Palos Verdes

Features and Finishes

Furnished, Room to rent, 4 Bathrooms, Separate kitchen & lounge, Garden, Bills included (Gas, Electric, Water, Wifi)

Legal Notice

Our comprehensive database is populated by our meticulous research and analysis of public data. MirrorRealEstate strives for accuracy and we make every effort to verify the information. However, MirrorRealEstate is not liable for the use or misuse of the site's information. The information displayed on MirrorRealEstate.com is for reference only.

Real Estate Broker
Anthony James & Co, Cotham
Brokerage
Anthony James & Co, Cotham
Top Tags
Room to rent 4 Bathrooms Garden Bills included
Likes

0

Views

55

This website uses cookies to ensure you get the best experience. Learn more