Room in a Shared House, Charter Avenue, CV4, N1 7GU
Property Details
8
6
House
Description
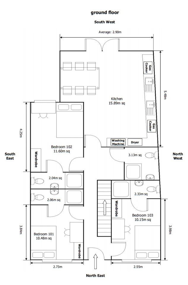
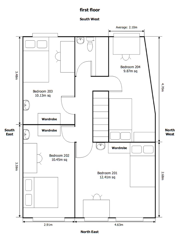
This property is located in the highly sought-after area of Charter Ave, which is in close proximity to the University of Warwick. The location is extremely convenient, with bus stops on both sides of the property within a 2-minute walk, offering routes 10A, 10S, 12X, 14, 14A, 18A, which connect to the city center, train stations, and other areas. It takes just 7 minutes to walk to Cannon Park Shopping Center, where you'll find a Tesco supermarket, and only 13-19 minutes to reach Warwick Business School (WBS), WMG, and the library, making both daily living and studying very convenient.The property comes with a front yard parking space (can accommodate 2 cars) and a back garden. The house spans three floors:Ground floor: 3 spacious Ensuite rooms, plus a kitchen and living room.First floor: 4 double bedrooms sharing 2 bathrooms.Third floor: A simple studio, featuring an ensuite bathroom, as well as a small fridge, microwave, and electric cooker.The house is fully furnished with modern furniture and appliances, including two 4-ring gas hobs, a fridge, microwave, washing machine, dryer, and more. A 24-hour CCTV security system covers the front and rear of the property. Utilities such as water, electricity, heating, and high-speed broadband are all fully provided.House Orientation: NortheastEPC Rating: CHouse layoutGround floor: 3 ensuite / shared bathroom / kitchen / living room First floor: 4 double bedrooms / shared bathroomSecond floor: 1 Studio
--- Property Details --- Type: House Bedrooms: 8 Bathrooms: 6 Rent: £472 per month Deposit: £560 Max Tenants: 1 Furnished: Furnished EPC Rating: C Available From: Today Minimum Tenancy: 8 Months Bills Included: Broadband View Offers Postcode: N1 7GU Listed By: OpenRent Landlord
Location
Address
Room in a Shared House, Charter Avenue, CV4, N1 7GU
City
London
Features and Finishes
Furnished, EPC: C, Available: Today, Min tenancy: 8 Months, Bills: Broadband View Offers, Max tenants: 1
Legal Notice
Our comprehensive database is populated by our meticulous research and analysis of public data. MirrorRealEstate strives for accuracy and we make every effort to verify the information. However, MirrorRealEstate is not liable for the use or misuse of the site's information. The information displayed on MirrorRealEstate.com is for reference only.