Room in a Shared House, Hemberton Road, SW9, N1 7GU
Property Details
6
7
House
Description
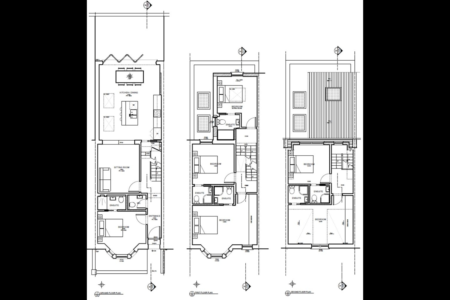
* All bills included* Weekly cleaner* Young professional household* Large shared areasWe have a large ensuite double room available in a refurbished and extended shared house in Clapham for young professionals and mature students.The room is available with around four weeks' notice, and is located on the ground floor and faces the front of the house. All bills are included in the rent. The current housemate is looking for a place nearer to his new work location, but is flexible on the moving date.* Location *The house is a few minutes walk away from Clapham North tube station, and is close to many nearby supermarkets, coffee shops and restaurants. Clapham Common is only a fifteen minute walk away.* Setup of the House *On the ground floor, there is a shared living room and large kitchen with an island, and workbench, where there is a full range of cooking facilities, as well as two tall fridges and freezers. There is also a washer dryer and dishwasher. The living room has a 49" UHD TV, a coffee table, and two Chesterfield sofas. The house also has a basement for storage (this isn't shown on the floorplan).The house has six ensuite bedrooms. The bedrooms are all ensuite with their own private full ensuite shower room with a toilet and basin, as well as a fullsize double bed, bedside table, desk, chair, chest of drawers and large wardrobe.Community Fibre 1GB optic fibre broadband is included, as well as all other bills. An excellent cleaner comes once a week to clean the shared areas.* Housemates *The housemates are a wonderful group of young professionals (five male) from a lovely mix of international and British backgrounds: all working in London in sectors such as technology, marketing, and finance.We are the owners of the house, so you would be liaising directly with the landlords for any maintenance issues (also no hidden charges and no middlemen).The rent is £1,350 per month with all bills included (or £311.54 per week).No couples, and no pets please.
--- Property Details --- Type: House Bedrooms: 6 Bathrooms: 7 Rent: £1,350 per month Deposit: £1,557.69 Max Tenants: 1 Furnished: Furnished Available From: Today Minimum Tenancy: 3 Months Bills Included: Broadband View Offers Postcode: N1 7GU Listed By: OpenRent Landlord
Location
Address
Room in a Shared House, Hemberton Road, SW9, N1 7GU
City
N1 7GU
Features and Finishes
Furnished, Available: Today, Min tenancy: 3 Months, Bills: Broadband View Offers, Max tenants: 1
Legal Notice
Our comprehensive database is populated by our meticulous research and analysis of public data. MirrorRealEstate strives for accuracy and we make every effort to verify the information. However, MirrorRealEstate is not liable for the use or misuse of the site's information. The information displayed on MirrorRealEstate.com is for reference only.