Room Let, Oldfield Place, Bristol, BS8
Property Details
1
3
Terraced
Description
Property Details: • Type: Terraced • Tenure: N/A • Floor Area: N/A
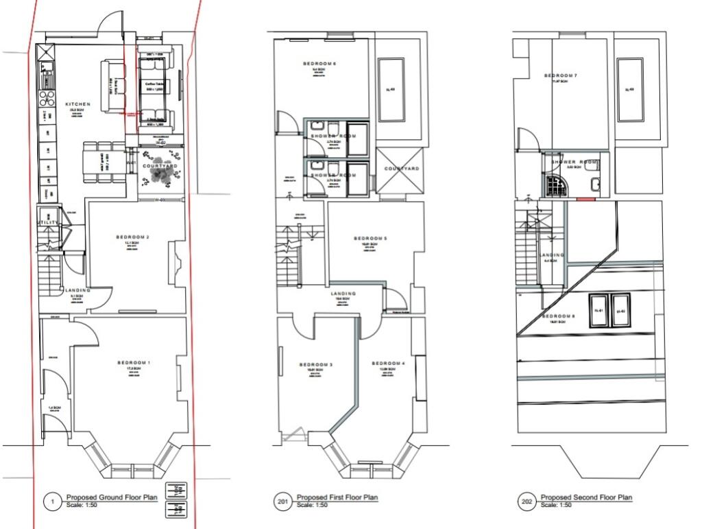
Key Features: • Individual student rooms available • Under going refurbishment • High spec finish • Bills included • 8 bedrooms • Available mid September 2024 • Furnished
Location: • Nearest Station: N/A • Distance to Station: N/A
Agent Information: • Address: The Coach House, 38 Cotham Hill, Redland, Bristol, BS6 6LA
Full Description: * Available Immediately, PROFESSIONALS OR STUDENTS * Individual rooms available within a large 8 bedroom house which has recently been refurbsihed. The property will comprise a large open plan living room / kitchen, three shower rooms, eight good sized bedrooms and a courtyard garden. Offered on a furnished basis and available immediately. Located in Hotwells, an ideal location for the Harbourside, City Centre and Clifton with both UOB and Bower Ashton being in easy reach. * The property is subject to a bills contribution of £100 a month.
Location
Address
Room Let, Oldfield Place, Bristol, BS8
City
Bristol
Features and Finishes
Individual student rooms available, Under going refurbishment, High spec finish, Bills included, 8 bedrooms, Available mid September 2024, Furnished
Legal Notice
Our comprehensive database is populated by our meticulous research and analysis of public data. MirrorRealEstate strives for accuracy and we make every effort to verify the information. However, MirrorRealEstate is not liable for the use or misuse of the site's information. The information displayed on MirrorRealEstate.com is for reference only.