Rosebank Gardens, Aberdeen, AB11
Property Details
2
1
Flat
Description
Property Details: • Type: Flat • Tenure: Freehold • Floor Area: N/A
Key Features: • Buy-to-let Investment • Tenanted & Fully Compliant • 2 Bedrooms • Home Report £120K • Current Rental £775pm • Current Yield 8.9% • Furnished Let • EPC Band B • 54 sq m
Location: • Nearest Station: N/A • Distance to Station: N/A
Agent Information: • Address: Portolio Ltd, Westpoint, 4 Redheughs Rigg, Edinburgh, EH12 9DQ
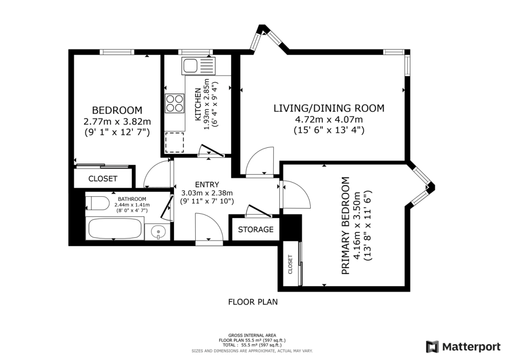
Full Description: Tenanted two-bedroom second floor buy-to-let investment property, located in a quiet residential development in the ever-popular Ferryhill district, just south of Aberdeen city centre. This property represents a ready-made investment opportunity with tenants currently in situ. Accommodation (approx. 54 sq m) includes: entrance hallway with storage, spacious living room, fitted kitchen, two bedrooms, and modern bathroom with three-piece suite. The propert benefits from having gas central heating (Worcester combination boiler), double glazing, secure communal entry and is fully compliant for the rental market. The property is being sold with the tenants in situ as a buy-to-let investment property. The property is fully compliant, and the tenant has been resident since September 2024, providing rental income on day 1 of purchase. The current tenancy generates an annual rental income of £9,300, which represents an immediate yield of 8.1%. The property is sold as seen, and the sale price includes all the inventory items. The Home Report value is £120K. The communal areas are managed by Grampian Housing for approximately £52 per month. The flat is ideally situated in Ferryhill, a sought-after residential neighbourhood close to Aberdeen city centre, train station, and key transport links. The area is popular with both professionals and students due to its proximity to amenities, parks, and commuter routes.BrochuresBrochure 1
Location
Address
Rosebank Gardens, Aberdeen, AB11
City
Aberdeen
Features and Finishes
Buy-to-let Investment, Tenanted & Fully Compliant, 2 Bedrooms, Home Report £120K, Current Rental £775pm, Current Yield 8.9%, Furnished Let, EPC Band B, 54 sq m
Legal Notice
Our comprehensive database is populated by our meticulous research and analysis of public data. MirrorRealEstate strives for accuracy and we make every effort to verify the information. However, MirrorRealEstate is not liable for the use or misuse of the site's information. The information displayed on MirrorRealEstate.com is for reference only.