Rosehearty, Fraserburgh

GBP 120000 For Sale

Property Details

Bedrooms

3

Bathrooms

2

Property Type

Detached

Description

Property Details: • Type: Detached • Tenure: N/A • Floor Area: N/A

Key Features: • NO FORWARD CHAIN • Rural location • Outbuildings • Parking

Location: • Nearest Station: N/A • Distance to Station: N/A

Agent Information: • Address: 32 High Street Portishead BS20 6EN

Full Description: Stonebridge Shaw is pleased to bring to the market this detached, rural property with NO FORWARD CHAIN

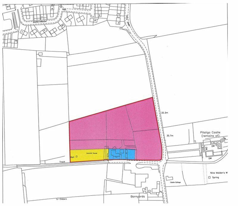
Looking for a DIY project?…………. Then look no further. We bring to the market Cairnhill House, Rosehearty. This is a traditional style two storey detached house, together with outbuildings and agricultural land. The land extends to 5.09 acres or thereby. (See title plan in photos).

Cairnhill House is located in a rural setting close to the village itself. Rosehearty lies approximately fives miles west of Fraserburgh. Rosehearty itself has many amenities on the doorstep, such as – primary school, convenience store, hotel & restaurant, golf course, library and regular bus service to and from Fraserburgh.

The windows are partly of timber construction and partly of UPVC. Mixture of single and double glazing throughout. There is an oil fired central heating system with a free-standing Boulter boiler. (no guarantee given to working condition).

Located on the ground floor – entrance porch, hallway, living room, bedroom, rear sitting room, kitchen and dining on open plan as well as a bathroom. Upstairs you will find two bedrooms, one having a boxroom going off.

The house itself is in a very poor condition throughout and is uninhabitable.

Cairnhill House can be easily found, travelling from Fraserburgh as you approach the village, turn left up Castle Street. Travel up the hill and Cairnhill House is situated on the right, highlighted by one of our for sale boards.

There are outbuildings to the side of the property and the land has post and wire fencing.

Please contact us for a copy of the Home Report should you be interestedNote from the team at Stonebridge ShawWe always aim to ensure our properties are displayed accurately with the photos, virtual tour, floor plans and descriptions provided. However these are intended as a guide and purchasers must satisfy themselves by viewing the property in personBrochuresFull Details

Location

Address

Rosehearty, Fraserburgh

City

Rosehearty

Features and Finishes

NO FORWARD CHAIN, Rural location, Outbuildings, Parking

Legal Notice

Our comprehensive database is populated by our meticulous research and analysis of public data. MirrorRealEstate strives for accuracy and we make every effort to verify the information. However, MirrorRealEstate is not liable for the use or misuse of the site's information. The information displayed on MirrorRealEstate.com is for reference only.

Real Estate Broker
Stonebridge Shaw, Portishead
Brokerage
Stonebridge Shaw, Portishead
Top Tags
5.09 acres of land
Likes

0

Views

161

This website uses cookies to ensure you get the best experience. Learn more