Sandgate, Kent, CT20

GBP 1525000 For Sale

Property Details

Property Type

Land

Description

Property Details: • Type: Land • Tenure: N/A • Floor Area: N/A

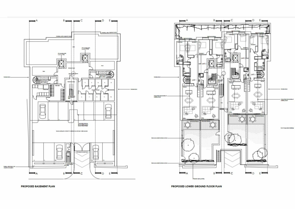
Key Features: • Planning For 10x Apartments • Luxury Development • Sea Views • Pre-Planning Conditions Satisfied • Advanced Project • Rarely Available Site

Location: • Nearest Station: Folkestone West Station • Distance to Station: 1.2 miles

Agent Information: • Address: 25a, West Street, Sittingbourne, ME10 1AL

Full Description: A rare opportunity to acquire land with planning permission for 10 apartments, the site is located on Sandgate Esplanade and will provide stunning views over the English Channel. With planning for 2 blocks, the luxury development will provide 10x 2 bedroom apartments. The owners have satisfied all pre-planning conditions so this project is at an advanced stage and offers a good opportunity for a hasty start. Full planning details can be found through Folkestone and Hythe District Council using reference number 20/0405/FH. Please contact Family Homes on for further details! **CGI's used to assist with visualising the future potential of the site** The Estate Agency Act 1979 requires us to inform all interested that Sunil Popat is director of Sandgate Pavilion Ltd which holds the land currently being marketed and also a director of Family Homes Property Services Ltd known who is the estate agent acting for Sandgate Pavilion ltd. Energy Performance Certificates49FB2168-FBFD-4973-AE3D-B89C0B3FE53B.jpg

Location

Address

Sandgate, Kent, CT20

City

Sandgate

Features and Finishes

Planning For 10x Apartments, Luxury Development, Sea Views, Pre-Planning Conditions Satisfied, Advanced Project, Rarely Available Site

Legal Notice

Our comprehensive database is populated by our meticulous research and analysis of public data. MirrorRealEstate strives for accuracy and we make every effort to verify the information. However, MirrorRealEstate is not liable for the use or misuse of the site's information. The information displayed on MirrorRealEstate.com is for reference only.

Real Estate Broker
Family Homes Sales & Lettings, Sittingbourne
Brokerage
Family Homes Sales & Lettings, Sittingbourne
Top Tags
10x Apartments Luxury Development Sea Views Advanced Project
Likes

0

Views

42

This website uses cookies to ensure you get the best experience. Learn more