Sapphire Court, Keighley Road, Skipton

GBP 0 For Sale

Property Details

Property Type

1,076-7,500 sq ft

Description

*** PRICE ON APPLICATION ***

Property Details: • Type: 1,076-7,500 sq ft • Tenure: N/A • Floor Area: N/A

Key Features: • BREEAM rating 'Very Good' • Air source heat pumps • LED lighting and emergency lighting • Fibre internet connection available • EV car charging points • 3 phase electricity supply • Eaves height up to 6.00m to underside of haunch • Disabled WC and kitchenette facilities • Solar PV Panel

Location: • Nearest Station: Skipton Station • Distance to Station: 0.5 miles

Agent Information: • Address: First Floor, 35 The Grove Ilkley LS29 9NJ

Full Description: OVERVIEW

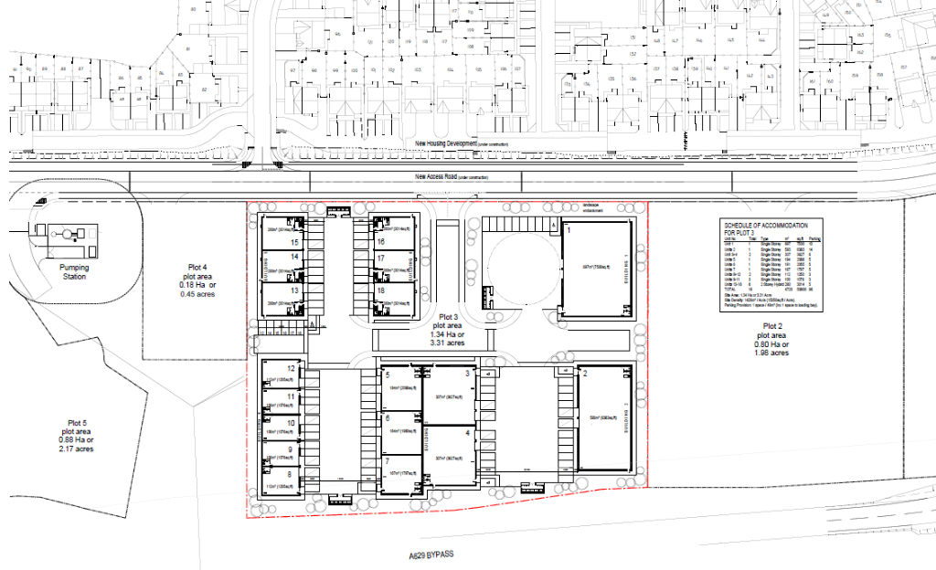
Extending to 3.30 acres, planning permission has been obtained for over 40,000 sq ft of brand new industrial stock to be delivered at Sapphire Court with units ranging from 1,000 - 7,500 sq ft. The development is one of the most anticipated industrial estates in the region and provides much needed commercial accommodation in an area that has been suffering from a severe lack of supply for many years.

The units will be of steel portal frame construction, specification to include:-

BREEAM Rating 'Very Good' Disabled WC and kitchenette facilities Eaves height up to 6.00m to underside of haunch Air source heat pumps LED lighting & emergency lighting

Approximate drive times

Location Time M65 25 minutes M606 45 minutes M62 50 minutes

TERMS

The units are offered by way of a new Full Repairing and Insuring lease for a term to be agreed.

RENT

On application - Rents quoted exclude utilities, business rates (if applicable), building insurance and contents insurance.

SERVICE CHARGE

A service charge will be payable. Details available on request.

LEGAL COSTS

Each party is to be responsible for their own legal fees incurred in connection with the completion of any transaction.

EPC

Available upon completion.

BUSINESS RATES

To be agreed.

Location

Address

Sapphire Court, Keighley Road, Skipton

City

Skipton

Features and Finishes

BREEAM rating 'Very Good', Air source heat pumps, LED lighting and emergency lighting, Fibre internet connection available, EV car charging points, 3 phase electricity supply, Eaves height up to 6.00m to underside of haunch, Disabled WC and kitchenette facilities, Solar PV Panel

Legal Notice

Our comprehensive database is populated by our meticulous research and analysis of public data. MirrorRealEstate strives for accuracy and we make every effort to verify the information. However, MirrorRealEstate is not liable for the use or misuse of the site's information. The information displayed on MirrorRealEstate.com is for reference only.

Real Estate Broker
ATKINSON ASSOCIATES, Ilkley
Brokerage
ATKINSON ASSOCIATES, Ilkley
Top Tags
Sapphire Court Keighley Road Skipton
Likes

0

Views

30

This website uses cookies to ensure you get the best experience. Learn more