Seamer Road, Old Heath
Property Details
Plot
Description
Property Details: • Type: Plot • Tenure: N/A • Floor Area: N/A
Key Features: • FULL DETAILED PLANNING PERMISSION GRANTED FOR A 2400 SQ FT DETACHED PROPERTY • DETACHED GARAGE/WORKSHOP • 0.5 ACRE MATURE PLOT • PRIVATE NO THROUGH ROAD OVERLOOKING PADDOCKS • SOUGHT AFTER POSITION • IDEAL SELF BUILD OPPORTUNITY • MAINS ELECTRICITY AVAILABLE ON SITE. • PLANNING REFERENCE: 21/01141/FUL
Location: • Nearest Station: Southminster Station • Distance to Station: 1.2 miles
Agent Information: • Address: 156 Station Road, Burnham-On-Crouch, CM0 8HJ
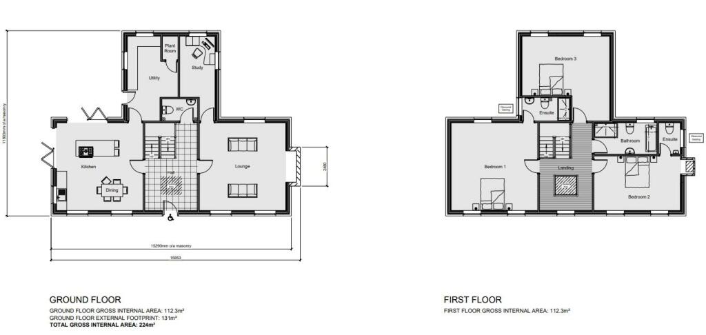
Full Description: BUILING PLOT WITH FULL PLANNING PERMISSION...Located down a leafy, unmade, private no through road is this 0.4 acre (36m W x 45m D) building plot. Planning permission has been granted for the erection of a two storey dwelling with accommodation comprising three double bedrooms on the first floor, two en-suites, family bathroom and galleried landing, whilst the ground floor boasts a large entrance hallway, open plan kitchen/family/dining room, two further reception rooms, utility room and cloakroom. Externally there is an independent access, large driveway and 8.5m x 7.2m garage/workshop. the site offers a selection of established trees and hedgerow throughout. There is main power to the site although a telegraph pole will need to be relocated. There is mains water connected and an old septic tank. Planning permission was granted by appeal on the 24th February 2023. Further information can be found on the Maldon District Council Planning Portal using reference 21/01141/FUL.Agents Note - In its main the site is clear, there are mature trees and shrubs interspersed throughout, although predominately around the boundaries. The plot does benefit from having a garden storage shed, log cabin with kitchenette and a WC, all of which would be extremely beneficial throughout the build project. There is also a well.Agents Note - Planning permission granted by appeal decision, ref: 21/01141/FUL using 'Potton Homes' design. Due to copyright, any buyer wishing to build as per plans approved would be required to use Potton Homes for the timber frame part of the build. All other works could be completed by independent means. 'Potton Homes' can supply a 'full turn key' service. The seller is happy to supply any buyer after purchase, quotation and information from a representative at 'Potton Homes'Alternatively any buyer would have the opportunity to re apply for planning permission using their own design.Services: - Electricity: There is a telegraph pole sited in the centre of the plot, serving this plot/property only. The seller has has a quotation to remove the telegraph pole and install a new single phase underground connection. Quote expires 27th December 2023. £4202 +VAT.Water: We are advised by the seller that there is mains water connected to the site.Drainage: We understand that there is no main drain in the road and therefore a private drainage system would be required. (subject to building control agreement) Gas: No mains gas available on site.Agents Note - These particulars do not constitute any part of an offer or contract. All measurements are approximate. No responsibility is accepted as to the accuracy of these particulars or statements made by our staff concerning the above property. We have not tested any apparatus or equipment therefore cannot verify that they are in good working order. Any intending purchaser must satisfy themselves as to the correctness of such statements within these particulars. All negotiations to be conducted through Church and Hawes. No enquiries have been made with the local authorities pertaining to planning permission or building regulations. Any buyer should seek verification from their legal representative or surveyor.Village Of Southminster - Southminster is a thriving village benefiting from its rail links into London Liverpool Street Station. The village offers a local primary school, day nursery and pre-school whilst schooling for older children is available in the nearby towns of Burnham-on-Crouch, Maldon and South Woodham Ferrers. There is a local park with an establish tennis club and various sports and social clubs. Shopping facilities include 3 convenience stores, a post office, traditional butcher, coffee shop, hairdressers, doctor's surgery, pharmacy, vet, takeaways and public houses.BrochuresSeamer Road, Old Heath
Location
Address
Seamer Road, Old Heath
City
Colchester
Features and Finishes
FULL DETAILED PLANNING PERMISSION GRANTED FOR A 2400 SQ FT DETACHED PROPERTY, DETACHED GARAGE/WORKSHOP, 0.5 ACRE MATURE PLOT, PRIVATE NO THROUGH ROAD OVERLOOKING PADDOCKS, SOUGHT AFTER POSITION, IDEAL SELF BUILD OPPORTUNITY, MAINS ELECTRICITY AVAILABLE ON SITE., PLANNING REFERENCE: 21/01141/FUL
Legal Notice
Our comprehensive database is populated by our meticulous research and analysis of public data. MirrorRealEstate strives for accuracy and we make every effort to verify the information. However, MirrorRealEstate is not liable for the use or misuse of the site's information. The information displayed on MirrorRealEstate.com is for reference only.