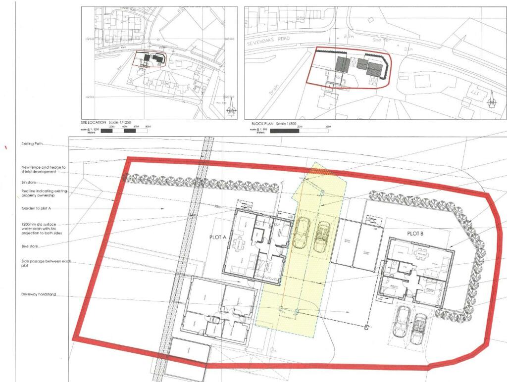
Sevenoaks Road, Eastbourne
Property Details
2
1
Detached Bungalow
Description
Property Details: • Type: Detached Bungalow • Tenure: N/A • Floor Area: N/A
Key Features: • GUIDE PRICE £375,000 - £385,000 • TWO BRAND NEW DETACHED BUNGALOWS • TWO BEDROOMS • 10 YEAR BUILD ZONE WARRANTY • GARAGE AND TWO OFF ROAD PARKING SPACES • OPEN PLAN • INTEGRATED KITCHEN APPLIANCES • ELECTRIC AIR SOURCE UNDER FLOOR HEATING • LEVEL PLOTS • DOUBLE GLAZED THROUGHOUT
Location: • Nearest Station: N/A • Distance to Station: N/A
Agent Information: • Address: 16 Cornfield Road, Eastbourne, BN21 4QE
Full Description: GUIDE PRICE £375,000 - £385,000. BRAND NEW. A choice of two, newly constructed, high specification detached bungalows, anticipated to be ready for occupation during Autumn 2024. Each bungalow has two bedrooms, an open plan living room/kitchen with integrated appliances, a single garage as well as two off road parking spaces. Well appointed throughout 831 ft2 (88 M2) of accommodation, with double glazing, electric air source underfloor heating and level lawned gardens with Indian sandstone patios. AVAILABLE TO RESERVE NOW, with 10 YEAR BUILD ZONE WARRANTY, conveniently situated for local amenities and shopping centre.DETAILED ‘KEY FACTS FOR BUYERS’ ARE AVAILABLE IN THE LINK BELOWEntrust Hunt Frame’s experienced property professionals with the sale of your property, delivering the highest standards of service and communication.Entrance Hall - 2.85 x 1.3 (9'4" x 4'3") - Open Plan Living Room/Kitchen - 5 x 4 (16'4" x 13'1") - Bedroom 1 - 3.58 x 3.5 (11'8" x 11'5") - Bedroom 2 - 3.53 x 2.35 (11'6" x 7'8") - Bathroom - 2.3 max x 1.9 (7'6" max x 6'2") - Garage - 19.9m22 Off Road Parking Spaces - Cycle Store & Bin Store - Tenure - FreeholdCouncil Tax Band awaitedEPC awaitedEastbourne Planning - Application Numbers 230247 & 230516Disclaimer: Whilst every care has been taken preparing these particulars their accuracy cannot be guaranteed and you should satisfy yourself as to their correctness. We have not been able to check outgoings, tenure, or that the services and equipment function properly, nor have we checked any planning or building regulations. They do not form part of any contract. We recommend that these matters and the title be checked by someone qualified to do so.BrochuresSevenoaks Road, EastbourneKEY FACTS FOR BUYERSBrochure
Location
Address
Sevenoaks Road, Eastbourne
City
Eastbourne
Features and Finishes
GUIDE PRICE £375,000 - £385,000, TWO BRAND NEW DETACHED BUNGALOWS, TWO BEDROOMS, 10 YEAR BUILD ZONE WARRANTY, GARAGE AND TWO OFF ROAD PARKING SPACES, OPEN PLAN, INTEGRATED KITCHEN APPLIANCES, ELECTRIC AIR SOURCE UNDER FLOOR HEATING, LEVEL PLOTS, DOUBLE GLAZED THROUGHOUT
Legal Notice
Our comprehensive database is populated by our meticulous research and analysis of public data. MirrorRealEstate strives for accuracy and we make every effort to verify the information. However, MirrorRealEstate is not liable for the use or misuse of the site's information. The information displayed on MirrorRealEstate.com is for reference only.