Sevenoaks Road, Pratts Bottom, BR6

GBP 900000 For Sale

Property Details

Bedrooms

3

Bathrooms

1

Property Type

Detached Bungalow

Description

Property Details: • Type: Detached Bungalow • Tenure: N/A • Floor Area: N/A

Key Features: • DEVELOPMENT OPPORTUNITY • DETACHED THREE BED BUNGALOW • PLANNING PERMISSION GRANTED TO REPLACE WITH A 5 BEDROOM HOUSE • CLOSE TO JUNCTION 4 OF THE M25 • PLOT MEASURING HALF AN ACRE (stv) • KNOCKHOLT AND CHELSFIELD STATIONS CLOSE BY • EXTENSIVE GARDENS & WOODLAND

Location: • Nearest Station: N/A • Distance to Station: N/A

Agent Information: • Address: 49 Windsor Drive, Chelsfield, Orpington, BR6 6EY

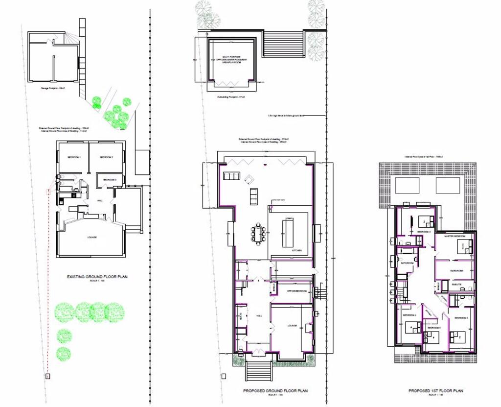
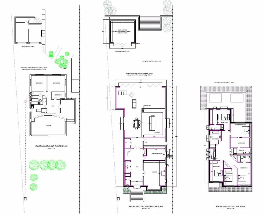
Full Description: Set on a plot of approximately half an acre and within the prestigious Chelsfield Park Estate, Pantiles currently comprises a detached three bedroom bungalow measuring just over 1200 square feet with a detached double garage and extensive gardens comprising lawn and woods.Planning permission has been granted to demolish the existing bungalow and detached garage and construct a replacement two storey five bedroom dwelling with ancillary outbuilding totalling just under 5000 square feet. Pantiles is in within walking distance of Knockholt Station for the commute to London and also Pratts Bottom Village with its public house and country walks. Chelsfield and Orpington main line stations with their fast service to London are a short drive away and the M25 can be joined for major road networks, Gatwick and Heathrow airports. Full details on the planning application can be viewed on Bromley Council’s planning portal under reference 23/02751/FULL1EPC Rating: DGardenSet on a plot of approximately half an acre with extensive gardens comprising lawn and woods

Location

Address

Sevenoaks Road, Pratts Bottom, BR6

City

London

Features and Finishes

DEVELOPMENT OPPORTUNITY, DETACHED THREE BED BUNGALOW, PLANNING PERMISSION GRANTED TO REPLACE WITH A 5 BEDROOM HOUSE, CLOSE TO JUNCTION 4 OF THE M25, PLOT MEASURING HALF AN ACRE (stv), KNOCKHOLT AND CHELSFIELD STATIONS CLOSE BY, EXTENSIVE GARDENS & WOODLAND

Legal Notice

Our comprehensive database is populated by our meticulous research and analysis of public data. MirrorRealEstate strives for accuracy and we make every effort to verify the information. However, MirrorRealEstate is not liable for the use or misuse of the site's information. The information displayed on MirrorRealEstate.com is for reference only.

Real Estate Broker
Langford Rae Property Agents, Chelsfield
Brokerage
Langford Rae Property Agents, Chelsfield
Top Tags
Likes

0

Views

81

This website uses cookies to ensure you get the best experience. Learn more