Shawcliffe Lane, Great Harwood, Hyndburn

GBP 500000 For Sale

Property Details

Property Type

Farm House

Description

Property Details: • Type: Farm House • Tenure: Freehold • Floor Area: N/A

Key Features: • Detached & Attached Barn Buildings • Development Potential • Plans Attached • Planning Approved

Location: • Nearest Station: N/A • Distance to Station: N/A

Agent Information: • Address: 53 King Street, Whalley, BB7 9SP

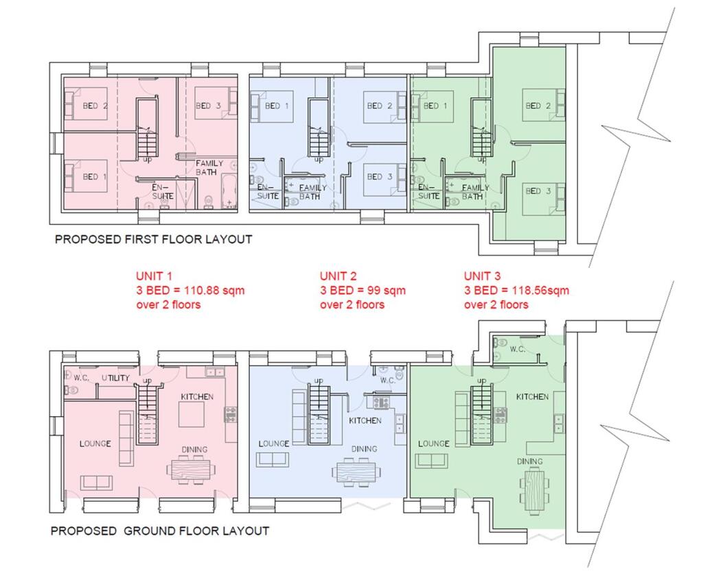
Full Description: Athertons are delighted to offer this fantastic development opportunity of four units to the open market.Planning permission has been approved for the conversion of three attached agricultural buildings attached to the Farmhouse. The plans allow for three, three-bedroom barn conversions converted from an attractive stone-built barn and an additional detached stone built barn.Each property will have its own private gardens, parking spaces and additional visitor parking spaces.The approved plans showcase sympathetic conversions of traditional stone barns, retaining their rustic charm while providing modern living spaces:Unit 1: A three-bedroom unit spanning approximately 110.88m2 (1,193 Sq Ft) over two floors.Unit 2: A three-bedroom unit spanning approximately 99m2 (1,065 Sq Ft) over two floors.Unit 3: A three-bedroom unit spanning approximately 118.56m2 (1,276 Sq Ft) over two floors.Unit 4: A four-bedroom detached unit spanning approximately 162.36m2 (1,747 Sq Ft) over two floors.Development Potential - Athertons are delighted to offer this fantastic development opportunity of four units to the open market. Planning permission has been approved for the conversion of three attached agricultural buildings attached to the Farmhouse. The plans allow for three, three-bedroom barn conversions converted from an attractive stone-built barn and an additional detached stone built barn.Each property will have its own private gardens, parking spaces and additional visitor parking spaces.The approved plans showcase sympathetic conversions of traditional stone barns, retaining their rustic charm while providing modern living spaces:Unit 1: A three-bedroom unit spanning approximately 110.88m2 (1,193 Sq Ft) over two floors.Unit 2: A three-bedroom unit spanning approximately 99m2 (1,065 Sq Ft) over two floors.Unit 3: A three-bedroom unit spanning approximately 118.56m2 (1,276 Sq Ft) over two floors.Unit 4: A four-bedroom detached unit spanning approximately 162.36m2 (1,747 Sq Ft) over two floors.BrochuresShawcliffe Lane, Great Harwood, HyndburnBrochure

Location

Address

Shawcliffe Lane, Great Harwood, Hyndburn

City

Bolton

Features and Finishes

Detached & Attached Barn Buildings, Development Potential, Plans Attached, Planning Approved

Legal Notice

Our comprehensive database is populated by our meticulous research and analysis of public data. MirrorRealEstate strives for accuracy and we make every effort to verify the information. However, MirrorRealEstate is not liable for the use or misuse of the site's information. The information displayed on MirrorRealEstate.com is for reference only.

Real Estate Broker
Athertons, Whalley
Brokerage
Athertons, Whalley
Top Tags
Farm House Planning Approved Stone Barns
Likes

0

Views

17

This website uses cookies to ensure you get the best experience. Learn more