Sheringham Road, Poole
Property Details
3
1
Detached
Description
Property Details: • Type: Detached • Tenure: Freehold • Floor Area: N/A
Key Features: • No Forward Chain • Planning Permission • Two Reception rooms • Desirable Location • Detached Garage • South Facing Garden • Driveway • Close to Schools • Gas Central Heating • Freehold
Location: • Nearest Station: N/A • Distance to Station: N/A
Agent Information: • Address: 109 Commercial Road Parkstone Poole BH14 0JD
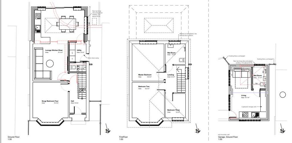
Full Description: Nestled in the sought-after area of Branksome, this delightful three-bedroom detached home offers excellent potential, complete with planning permission for a single-storey rear extension and conversion of the detached garage into an annex.The property boasts a large driveway, providing ample off-road parking for multiple vehicles. Inside, the welcoming sitting room features a charming bay window overlooking the front garden, filling the space with natural light. The modern kitchen is well-equipped with floor-to-ceiling units, an integrated double oven and hob, and space for additional appliances, offering both style and practicality.To the rear, the dining room opens directly onto the south-facing garden via sliding doors, perfect for summer entertaining or enjoying a peaceful morning coffee. The garden itself is a mix of lawn and patio, offering versatile outdoor space for families and keen gardeners alike.Upstairs, the property comprises two spacious double bedrooms and a third single bedroom, ideal as a nursery, home office, or guest room. The main bedroom includes fitted wardrobes, providing excellent storage. The family bathroom is generously sized, featuring a bath, separate shower, toilet, and sink.The detached garage, located at the rear of the garden, has full planning permission to be converted into a self-contained annex, adding flexibility to this home.Whether you're looking to move straight in, extend, or create additional living space, this property presents an exciting opportunity in a popular location close to local amenities, schools, and transport links. Early viewing is recommended to fully appreciate what's on offer. 1. Money laundering regulations: intending purchasers will be asked to produce identification documentation at a later stage and we would ask for your cooperation in order that there will be no delay in agreeing the sale.2. General: while we endeavour to make our sales particulars fair, accurate and reliable, they are only a general guide to the property and, accordingly, if there is any point which is of particular importance to you, please contact the office and we will check the position for you, especially if you are contemplating travelling some distance to view the property.3. Measurements: these approximate room sizes are only intended as general guidance. You must verify the dimensions carefully before ordering carpets or any built-in furniture.4. Services: please note we have not tested the services or any of the equipment or appliances in this property, accordingly we strongly advise prospective buyers to commission their own survey or service reports before finalising their offer to purchase.5. These particulars are issued in good faith but do not constitute representations of fact or form part of any offer or contract. The matters referred to in these particulars should be independently verified by prospective buyers or tenants. Neither Martin and Co Poole limited nor any of its employees or agents has any authority to make or give any representation or warranty whatever in relation to this property.
Location
Address
Sheringham Road, Poole
City
Poole
Features and Finishes
No Forward Chain, Planning Permission, Two Reception rooms, Desirable Location, Detached Garage, South Facing Garden, Driveway, Close to Schools, Gas Central Heating, Freehold
Legal Notice
Our comprehensive database is populated by our meticulous research and analysis of public data. MirrorRealEstate strives for accuracy and we make every effort to verify the information. However, MirrorRealEstate is not liable for the use or misuse of the site's information. The information displayed on MirrorRealEstate.com is for reference only.