Shinsho, Sekimachi, Kameyama City, Mie Prefecture
Property Details
House
Description
Construction Year: 1900
Prefecture: mie
Views: 89
Likes: 2
First Seen: Sat, 12 Oct 2024 13:00:27 GMT
Building Area: 126.10 m²
Land Area: 281.33 m²
Property Type: House
Station: Seki
Station Distance: 701m
Parking: Not Available
Sekijuku tourist attractions and many commercial facilities nearby. This property is an important traditional building. You can actually live in it, or use it as an old folk house cafe, private lodging, etc. Up to 8 million yen in renovation cost subsidies.
Sekijuku tourist attractions and many commercial facilities nearby. This property is an important traditional building. You can actually live in it, or use it as an old folk house cafe, private lodging, etc. Up to 8 million yen in renovation cost subsidies. As it is an important traditional building, it cannot be demolished. About 25 years ago, we spent 16 million yen on a large-scale renovation, including replacing the roof with tiles.
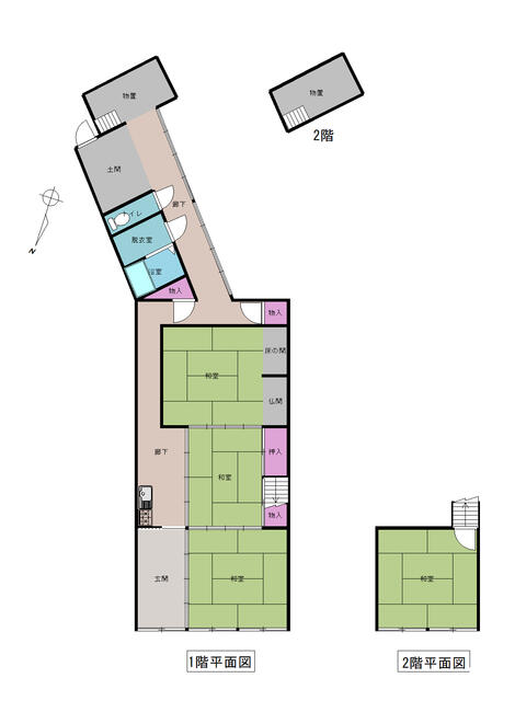
This 123-year-old wooden house is a designated Important Traditional Building located a 10-minute walk from Seki Station on the JR Kansai Main Line. The house features four bedrooms, a dining room, and a kitchen. Currently unoccupied, it is eligible for a renovation subsidy of up to ¥800,000,000. Surrounded by commercial facilities and close to Seki's tourist attractions, the house offers potential as a residence, traditional Japanese cafe, or vacation rental.
Nestled in the heart of Kameyama City, Mie Prefecture, this property offers a tranquil retreat in the charming neighborhood of Shinsho. Surrounded by lush greenery and picturesque landscapes, the area boasts a rich history and vibrant culture. From exploring the ancient temples and shrines to indulging in the local cuisine, there's something for everyone to discover in this captivating corner of Japan.
Location
Address
Shinsho, Sekimachi, Kameyama City, Mie Prefecture
City
mie
Legal Notice
Our comprehensive database is populated by our meticulous research and analysis of public data. MirrorRealEstate strives for accuracy and we make every effort to verify the information. However, MirrorRealEstate is not liable for the use or misuse of the site's information. The information displayed on MirrorRealEstate.com is for reference only.