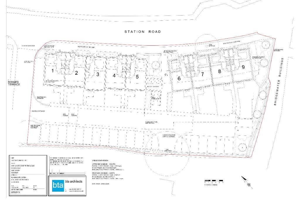
Shorland Row Plot 3, Station Road, Castle Cary, Somerset, BA7 7BY

GBP 299950 For Sale

Property Details

Bedrooms

3

Bathrooms

1

Property Type

Terraced

Description

Property Details: • Type: Terraced • Tenure: Freehold • Floor Area: N/A

Key Features: • New build terraced home • Three bedrooms • Sitting room • Kitchen • Family bathroom • Rear garden • Two allocated parking spaces and visitor parking • Reserve your plot for only £1,000 • No additional cost choice of flooring for those who reserve • Full 10-year NHBC warranty upon build completion

Location: • Nearest Station: N/A • Distance to Station: N/A

Agent Information: • Address: 9 High Street, Bruton, BA10 0AB

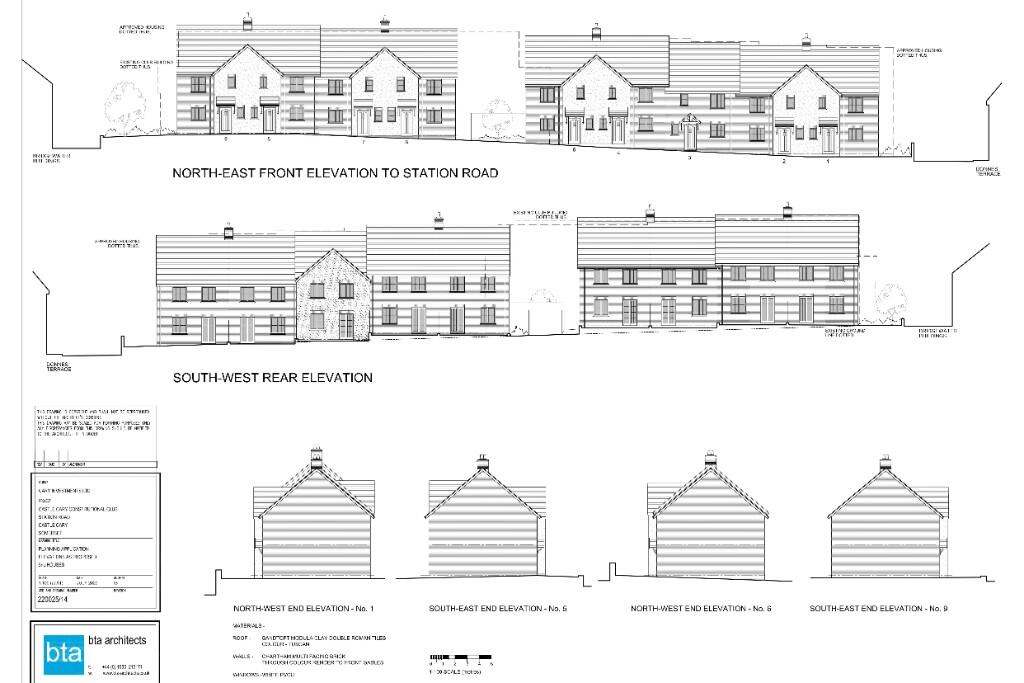
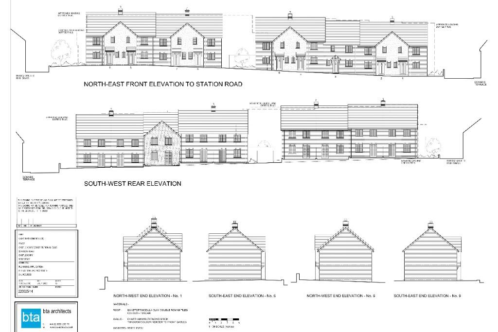
Full Description: Welcome to Shorland Row on Station Road, where heritage meets modern living. This thoughtfully designed three-bedroom end-terrace home forms part of an exclusive new-build development on the site of the former Constitutional Club - a landmark reimagined for contemporary lifestyles.

This property offers a high-quality finish throughout, paired with modern energy-efficient features to support sustainable living. Interiors have been carefully considered to balance comfort, style, and practicality - ideal for first-time buyers, young professionals, and growing families.

On the ground floor, step into a welcoming sitting room, perfect for relaxing or entertaining, alongside a well-appointed kitchen designed for modern living. A convenient cloakroom adds practicality to the layout.

On the first floor there is a generous double bedroom with ample space for wardrobes and more, a second double bedroom ideal for guests or family, a versatile single, perfect as a nursery, study, or dressing room, and a family bathroom.

Outside there is a rear garden and two allocated parking spaces.

Set in an established residential area just moments from Castle Cary's vibrant town centre, you'll enjoy the best of both worlds: peaceful surroundings with cafés, shops, bakeries, and hairdressers just a short stroll away. The nearby train station provides direct links to London, making commuting or weekend escapes effortless.

* Tenure: Freehold * Council Tax Band: B * Local Council: Somerset Council * EPC: A (Predicted) * Utilities and Similar: Mains electricity, mains gas, mains water, mains drainage, and solar panels * Heating: Gas boiler and radiators * No Onward Chain

AGENT'S NOTE: Some images may have been digitally enhanced, edited, or generated as computer-generated imagery (CGI) for illustrative purposes only. They are intended to give an impression of the property and should not be relied upon as an exact representation.

Location

Address

Shorland Row Plot 3, Station Road, Castle Cary, Somerset, BA7 7BY

City

Somerset

Features and Finishes

New build terraced home, Three bedrooms, Sitting room, Kitchen, Family bathroom, Rear garden, Two allocated parking spaces and visitor parking, Reserve your plot for only £1,000, No additional cost choice of flooring for those who reserve, Full 10-year NHBC warranty upon build completion

Legal Notice

Our comprehensive database is populated by our meticulous research and analysis of public data. MirrorRealEstate strives for accuracy and we make every effort to verify the information. However, MirrorRealEstate is not liable for the use or misuse of the site's information. The information displayed on MirrorRealEstate.com is for reference only.

Real Estate Broker
Hunter French, Bruton
Brokerage
Hunter French, Bruton
Likes

0

Views

10

This website uses cookies to ensure you get the best experience. Learn more