Siop Newydd Barns, Monknash, Cowbridge, CF71 7QQ

GBP 305000 For Sale

Property Details

Property Type

Ask agent

Description

Property Details: • Type: Ask agent • Tenure: N/A • Floor Area: N/A

Key Features:

Location: • Nearest Station: Llantwit Major Station • Distance to Station: 3.1 miles

Agent Information: • Address: Windsor Place, Cardiff, CF10 3SX

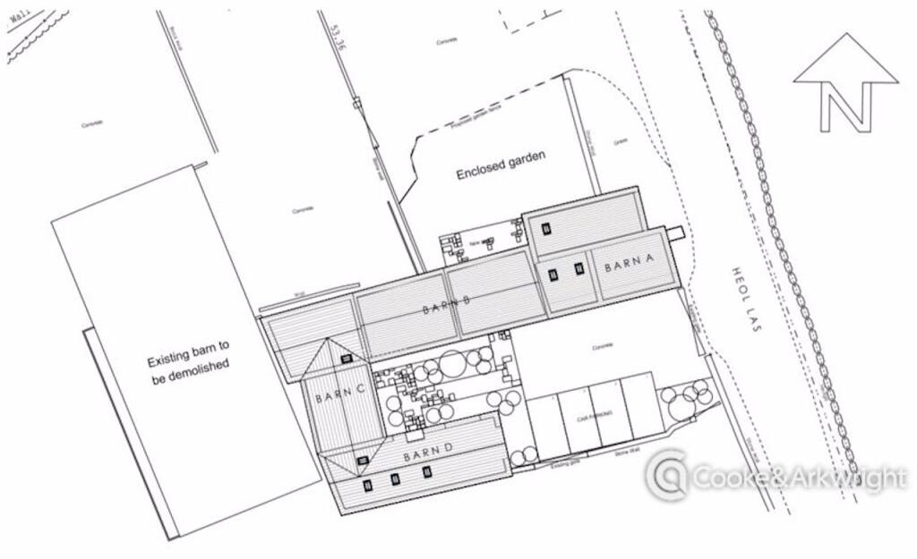
Full Description: DescriptionA delightful set of stone built barns with planning permission to convert the existing barns into four holiday let units. Two 2 bedroom and two 1 bedroom units in an exceptional rural setting located close to the heritage coast and coastal paths.Planning consent (Ref 2019/00546/FUL) approved to convert into four holiday let unitsBarn A - Approximately 74.8 m m2 accommodation including an open plan lounge and kitchen diner, two double bedrooms and shower roomBarn B - Approximately 54.9 m2 with open plan lounge and kitchen diner, double bedroom and shower roomBarn C - Approximately 52.2 m2 hallway, open plan lounge and kitchen diner, double bedroom and shower roomBarn D - Approximately 61.4 m2 open plan lounge, diner and kitchenette, two double bedrooms and bathroomAn excellent opportunity to purchase a development site extending to approximately 0.56 acres, with approved planning permission obtained on the 19 September 2019 to convert existing barns to 4 holiday units and associated works and the barn at Siop Newydd Monknash. Planning consent was granted for the conversion of the two stone buildings to four holiday lets in September 2019. The detailed drawings, structural engineer's report and other details can be seen on the Vale of Glamorgan's website (application number P/DC/2019/00546/FUL). The application boundary was drawn tightly around the building and no external space was allowed for gardens or other amenity space. Car- parking for six cars was required to be provided between buildings.LocationThe site is located on the Heol Las coastal road between Marcross and Monknash in an area popular with walkers and cyclists. The historic Plough and Harrow Public House lies within walking distance. The nearby town of Llantwit Major lies approximately 4.8 miles distance. The picturesque market town of Cowbridge is approximately 7.6 miles and the capital city Cardiff lies approximately 20.3 miles East of the site. There is convenient access to the M4 motorway, A48 and mainline rail links are within comfortable driving distance.Planning HistoryA subsequent planning application (P/DC/2022/2048/OUT) to convert one of the barns to a dwelling and the other to an office was made by the current owners Vivard Ltd but was refused on the 28 July 2022. An Appeal against this decision was lodged in December 2022 (CAS-02391-24XOY6) but was dismissed in August 2023). Further information can be obtained from Vivard Ltd (email: ) who will arrange access to the site.Additional ground shown edged blue on the plan is also offered for sale (outside the area for which consent has been granted); offers invited.DirectionsFrom Cowbridge travel in a westerly direction and turn left onto Llantwit Major Road, continue along this road until reaching the crossroads, turn left and head towards Llantwit Major, upon reaching the roundabout take the third exit, continue along Wick Road for approximately one and half miles and turn left signposted to Atlantic College and St Donats. Travel along this road, upon reaching the T Junction, turn right and travel for approximately one and half miles where Siop Newydd can be found on your left hand side before reaching the Hamlet of Monknash.ServicesMains water and electricity are available in the vicinity. The cost of connection to be confirmed by any prospective purchaser.

Location

Address

Siop Newydd Barns, Monknash, Cowbridge, CF71 7QQ

City

Cowbridge with Llanblethian

Legal Notice

Our comprehensive database is populated by our meticulous research and analysis of public data. MirrorRealEstate strives for accuracy and we make every effort to verify the information. However, MirrorRealEstate is not liable for the use or misuse of the site's information. The information displayed on MirrorRealEstate.com is for reference only.

Real Estate Broker
Cooke & Arkwright Limited, Retail & Leisure
Brokerage
Cooke & Arkwright Limited, Retail & Leisure
Top Tags
Likes

0

Views

50

This website uses cookies to ensure you get the best experience. Learn more