Skipton New Road, Foulridge

GBP 295000 For Sale

Property Details

Bedrooms

2

Bathrooms

1

Property Type

Apartment

Description

Property Details: • Type: Apartment • Tenure: N/A • Floor Area: N/A

Key Features:

Location: • Nearest Station: N/A • Distance to Station: N/A

Agent Information: • Address: 53 King Street, Whalley, BB7 9SP

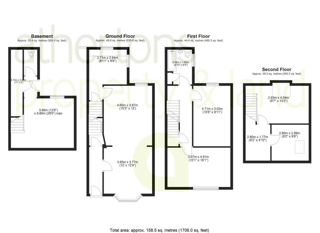
Full Description: A well appointed three storey (plus cellar) retail premises in a popular location on the main road in Foulridge. The property is of stone construction under a pitched slate roof and offers open plan retail accommodation on the ground floor with a small cellar and duplex two bedroom apartment to the first and second floor.A well appointed three storey (plus cellar) retail premises in a popular location on the main road in Foulridge. The property is of stone construction under a pitched slate roof and offers open plan retail accommodation on the ground floor with a small cellar and duplex two bedroom apartment to the first and second floor.The property has undergone some refurbishment works in recent years and is in ready-to-move-in condition. The building is ideal for an investor or owner/occupier looking for for setting up their own business with residential accommodation above.This versatile property offers an excellent opportunity for both business and residential purposes, comprising commercial premises on the ground floor and basement levels, with a spacious two-bedroom duplex apartment above.Commercial Premises (Ground Floor and Basement):The ground floor provides a generous space of approximately 49.8 square metres (535.6 sq ft), ideal for retail or office use. With its large front-facing windows, this area benefits from ample natural light and excellent street visibility. The basement offers an additional 35.6 square metres (383.4 sq ft) of usable space, perfect for storage, workspace, or further development opportunities. This level includes a separate WC for convenience.Residential Duplex Apartment (First and Second Floors):Accessed via a private entrance, the first and second floors form a beautifully proportioned duplex apartment. The first floor boasts a spacious living room (4.71m x 3.02m) and a bright kitchen/dining area (3.07m x 4.91m), along with a convenient bathroom. The second floor offers two well-sized bedrooms. The primary bedroom (2.93m x 4.04m) features ample natural light, while the second bedroom (2.80m x 2.89m) makes for a comfortable guest room, home office, or study.Total Area:The property spans approximately 158.5 square metres (1706 sq ft), making it an ideal choice for investors or owner-occupiers looking to combine business and living spaces.Location:Situated in a prime location, this property is well-positioned for both commercial activity and residential living, with excellent transport links and local amenities nearby.BrochuresSkipton New Road, FoulridgeBrochure

Location

Address

Skipton New Road, Foulridge

City

Skipton New Road

Legal Notice

Our comprehensive database is populated by our meticulous research and analysis of public data. MirrorRealEstate strives for accuracy and we make every effort to verify the information. However, MirrorRealEstate is not liable for the use or misuse of the site's information. The information displayed on MirrorRealEstate.com is for reference only.

Real Estate Broker
Athertons, Whalley
Brokerage
Athertons, Whalley
Top Tags
Likes

0

Views

109

This website uses cookies to ensure you get the best experience. Learn more