Snelsins Road, Cleckheaton, BD19

GBP 235000 For Sale

Property Details

Bedrooms

2

Bathrooms

1

Property Type

Detached

Description

Property Details: • Type: Detached • Tenure: Freehold • Floor Area: N/A

Key Features: • WHY WE LOVE THIS HOUSE • For Sale by Modern Auction • Guide Price £235,000 plus Reservation Fee • Characterful Two Bed Former Lodge House • Substantial Adjacent Coach House & Stable Block • Versatile Accommodation with Wealth of Possibilities • Planning Permision to Convert to 4 Bed Detached Residence • Sold with No Chain

Location: • Nearest Station: N/A • Distance to Station: N/A

Agent Information: • Address: 2 Central Parade, Dewsbury Road, Cleckheaton, BD19 3RU

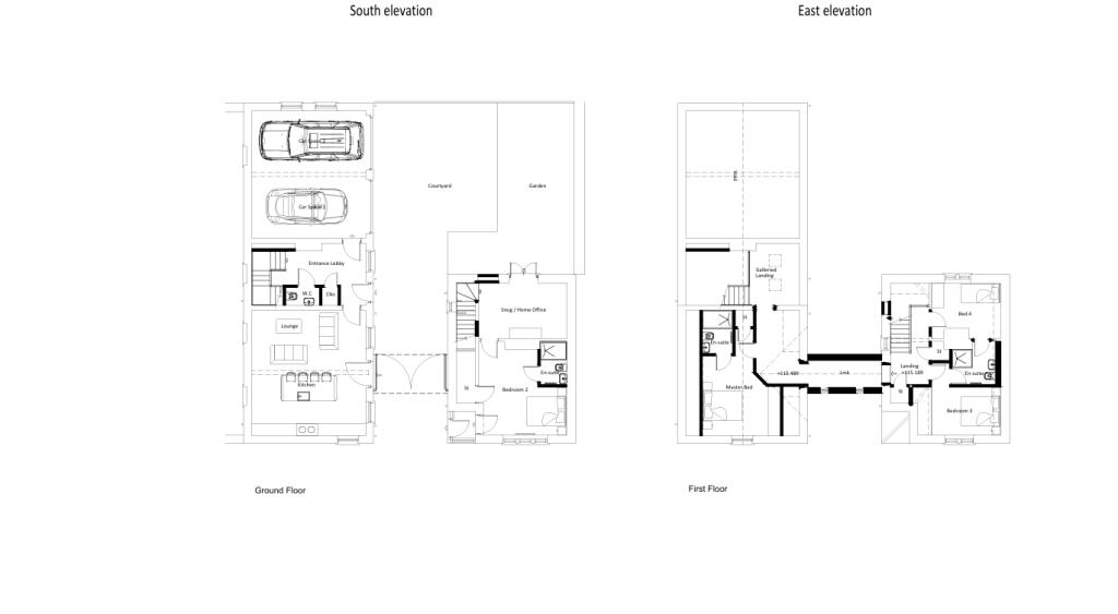
Full Description: For Sale by Modern Auction - Subject to Guide Price & Reservation fee - Guide Price £235,000Known as 'Fieldhead Lodge' this characterful, detached residence offers a wealth of features and was formerly the lodge house to the large Victorian 'Fieldhead' mansion to the rear. Offering tremendous scope and a versatile footprint, it includes a two bedroom detached house with adjacent, substantial stone built detached former coach house and stable block situated beneath impressive clay tiles roofs with a courtyard garden . Requiring cosmetic updating but priced to reflect, the property also has planning permission to link the two buildings and create a stunning four bedroom family home - please see Kirklees Planning website 2023/62/93506/E. Comprises hall, lounge, kitchen, two bedrooms and bathroom with double garage, former tack room and attached two storey workshop/storage which is ideal for home office/hobby room or even 'granny annex'. Sold with NO CHAIN and benefiting from GCH & part uPVC DG. Entrance VestibuleLounge4.6m x 4.3m (15' 1" x 14' 1")Alcove cupboard, feature ceiling cornice and roseKitchen Diner4.3m x 2.8m (14' 1" x 9' 2")Range of modest wall and base units incorporating contrasting work top and sink. Gas cooker point and plumbing for auto washer. Walk-in pantry and wall mounted boiler. Rera door.Bedroom One4.5m x 4.3m (14' 9" x 14' 1")Cast iron fireplace surround. Vanity sink and walk-in wardrobe.Bedroom Two3.4m x 2.7m (11' 2" x 8' 10")Cast iron fireplace and storage cupboard.BathroomThree piece suite comprising bath, hand wash basin and wc.ExteriorThe property benefits from a courtyard to the rear with outhouse storage buildings.Coachhouse6.1m x 5.6m (20' 0" x 18' 4")Adjacent to the house is a detached block which was formerly the coach house, stable block and tack room with power and water. The coach house is now a double garage with two roller shutter doors with a full height ceiling.Tack Room5.3m x 3m (17' 5" x 9' 10")Former tack room with access to the courtyard and storage cupboards. Gives access to the coachouse and stables.Stables6.2m x 5.5m (20' 4" x 18' 1")Versatile open space which could be used for a multitude of purposes including home office use, workshop or storage. Timber staircase leading to the first floor with similar open space and former loading access door.

The house and coach house/stable block has planning permission to link the two via a feature glazed bridge and convert into a four bedroom detached property. Interested parties should visit Kirklees Planning website - 2023/62/93506/E.Auctioneers NotesThis property is for sale by Modern Method of Auction allowing the buyer and seller to complete within a 56 Day Reservation Period. Interested parties’ personal data will be shared with the Auctioneer (iamsold Ltd). If considering a mortgage, inspect and consider the property carefully with your lender before bidding. A Buyer Information Pack is provided, which you must view before bidding. The buyer is responsible for the Pack fee. For the most recent information on the Buyer Information Pack fee, please contact the iamsold team. The buyer signs a Reservation Agreement and makes payment of a Non-Refundable Reservation Fee of 4.5% of the purchase price inc. VAT, subject to a minimum of £6,600 inc. VAT. This Fee is paid to reserve the property to the buyer during the Reservation Period and is paid in addition to the purchase price. The Fee is considered within calculations for stamp duty. Services may be recommended by the Agent/Auctioneer in which they will receive payment (truncated)Please NotePlease note if you proceed with an offer on this property we are obliged to undertake mandatory Anti Money Laundering checks on behalf of HMRC. All estate agents have to do this by law and we outsource this process to our compliance partners Credas who charge a fee for this serviceBrochuresParticulars

Location

Address

Snelsins Road, Cleckheaton, BD19

City

Dewsbury

Features and Finishes

WHY WE LOVE THIS HOUSE, For Sale by Modern Auction, Guide Price £235,000 plus Reservation Fee, Characterful Two Bed Former Lodge House, Substantial Adjacent Coach House & Stable Block, Versatile Accommodation with Wealth of Possibilities, Planning Permision to Convert to 4 Bed Detached Residence, Sold with No Chain

Legal Notice

Our comprehensive database is populated by our meticulous research and analysis of public data. MirrorRealEstate strives for accuracy and we make every effort to verify the information. However, MirrorRealEstate is not liable for the use or misuse of the site's information. The information displayed on MirrorRealEstate.com is for reference only.

Real Estate Broker
Robert Watts Estate Agents, Cleckheaton
Brokerage
Robert Watts Estate Agents, Cleckheaton
Top Tags
Likes

0

Views

19

This website uses cookies to ensure you get the best experience. Learn more