South Way, Newhaven

GBP 600000 For Sale

Property Details

Property Type

Plot

Description

Property Details: • Type: Plot • Tenure: N/A • Floor Area: N/A

Key Features:

Location: • Nearest Station: Newhaven Town Station • Distance to Station: 0.3 miles

Agent Information: • Address: Riverside House, 16 Bridge Street, Newhaven, BN9 9PJ

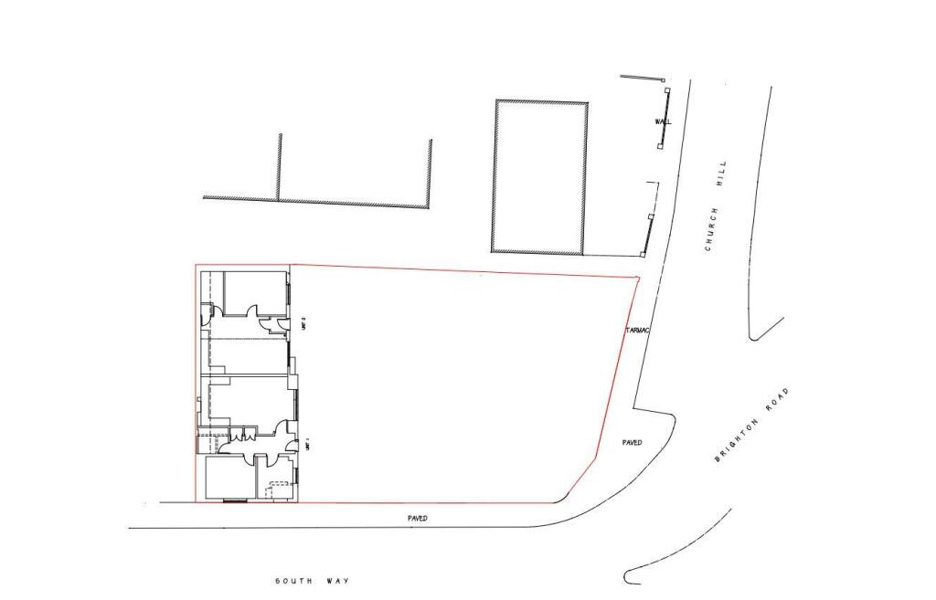
Full Description: Phillip Mann estate agents are delighted to offer this development site. The site is located at the A26/A259 junction in the centre of Newhaven, immediately opposite the pedestrianised High Street.The property comprises a cleared site for the development of a new four-storey block consisting of 13 flats and 1 commercial shop/office unit on this gateway site into Newhaven.Planning permission is expected shortly on the planning application for 13 flats and office space, under reference LW/20/0360 on the Lewes and Eastbourne Borough Council's planning website - The new block is to have a prominent shop/office on the ground floor with two x 2 bedroom flats and one x 1 bedroom flat. First floor - three x 2 bedroom flats, one x 1 bedroom flat. Second floor - three x 2 bedroom flats and one x 1 bedroom flat. Third floor - two x 1 bedroom flats.Alternative schemes without the commercial or social units possible subject to planning.NB. in accordance with the 'estate agents act 1979' we are obliged to inform all interested parties that this property is owned by a employee of Phillip Mann Estate Agents.BrochuresSouth Way, NewhavenBrochure

Location

Address

South Way, Newhaven

City

South Way

Legal Notice

Our comprehensive database is populated by our meticulous research and analysis of public data. MirrorRealEstate strives for accuracy and we make every effort to verify the information. However, MirrorRealEstate is not liable for the use or misuse of the site's information. The information displayed on MirrorRealEstate.com is for reference only.

Real Estate Broker
Phillip Mann Estate Agents, Newhaven
Brokerage
Phillip Mann Estate Agents, Newhaven
Top Tags
South Way Newhaven
Likes

0

Views

89

This website uses cookies to ensure you get the best experience. Learn more