South Yunderup WA 6208
Property Details
4
2
New House & Land
Description
Property Details: • Type: New House & Land
• Bedrooms: 4 • Bathrooms: 2
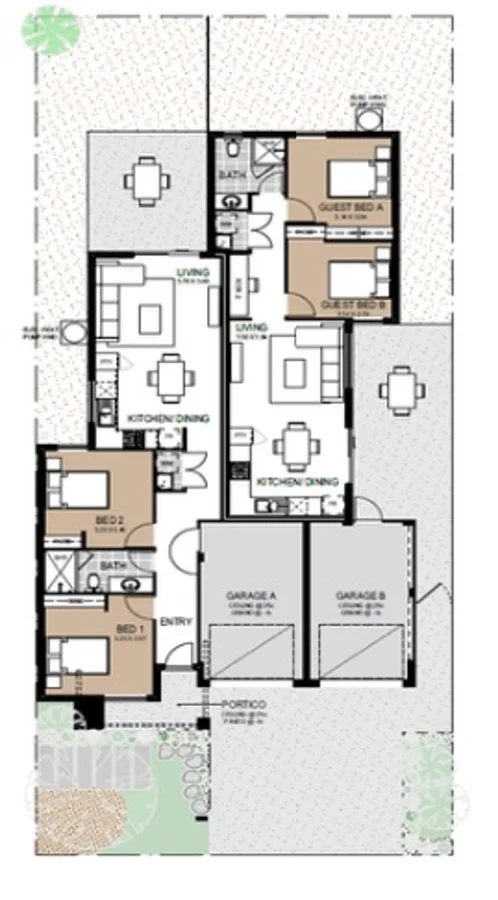
Description: Location so close to the wonderful Mandurah with the beautiful ocean and marina, plus tons of lovely retail shops, restaurants and café's. But Austin Lakes Development has its own ambiance with its beautiful lakes system, the town centre, and other community amenities - just right outside your doorstep! Live amongst natural surroundings and enjoy walking, boating and fishing in the wonderful waterways this estate provides. Growth in land prices here have been very strong and demand for these homes is very strong also - Now is the time to take action and watch your investment Grow. - Fixed site works and build price (subject to timing of titles) - Reverse cycle air conditioning in living areas - Fully fitted out kitchen including 600mm oven, stove top and rangehood - LED lighting throughout - 7 star energy compliance - Solar - Vertical blinds to all windows and sliding doors And many more features and inclusions - ask for the full list This Opportunity: Dual Occupancy: 2bed plus 2 bed - Size: 370m2 $324,500 Land is due to be registered in Nov/Dec 26 Total : 4 beds, 2 baths, 2 cars Total size: 184m2 under roof Build Price: $588,966 FIXED PRICE TURN KEY PACKAGE: $913,466 Unit 1: 2 beds, 1 bath, 1 car Unit 2 2 beds, 1 bath, 1 car GROSS RENTAL ESTIMATE: $980 per week total income - see letter attached - huge demand for rentals here. - 5.5% gross income return Summary of inclusions Refer to the full brochure listing all inclusions and colour selections TO PURCHASE: - Build deposit: $2000 Land Deposit $10,000 - Subject to finance 21 days - Land settlement 14 days after title has registered - Full turn key package $1000 on Expression Of Interest, Two Contract purchase: House building Contract and land Contract THIS PROPERTY IS NOT YET CONSTRUCTED Two contract purchase - Land Contract plus Building Contract This is subject to being available at time of enquiry. FOR SALE: $913,466 Kaye Tilley 0418 823 046
Location
Address
South Yunderup WA 6208
City
South Yunderup
Legal Notice
Our comprehensive database is populated by our meticulous research and analysis of public data. MirrorRealEstate strives for accuracy and we make every effort to verify the information. However, MirrorRealEstate is not liable for the use or misuse of the site's information. The information displayed on MirrorRealEstate.com is for reference only.