Springfield Place, Craigiebuckler, Aberdeen, AB15

GBP 1000 For Sale

Property Details

Bedrooms

2

Bathrooms

1

Property Type

Semi-Detached

Description

Property Details: • Type: Semi-Detached • Tenure: N/A • Floor Area: N/A

Key Features:

Location: • Nearest Station: N/A • Distance to Station: N/A

Agent Information: • Address: 32 King Street, Aberdeen, AB24 5AX

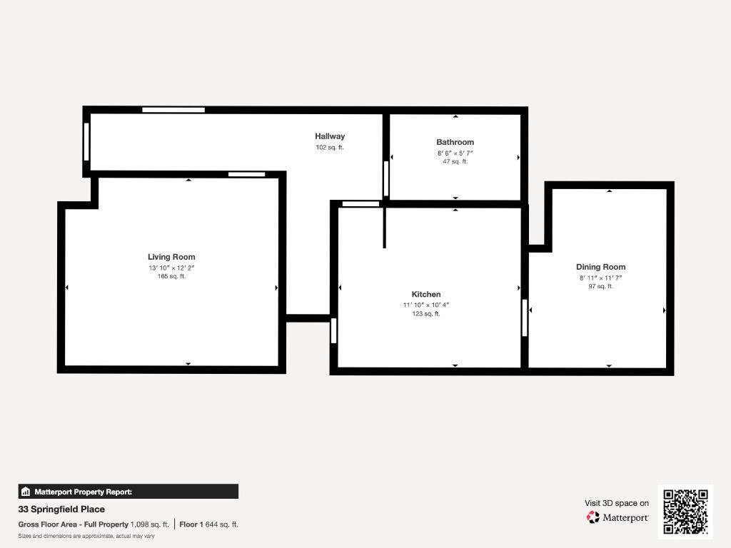
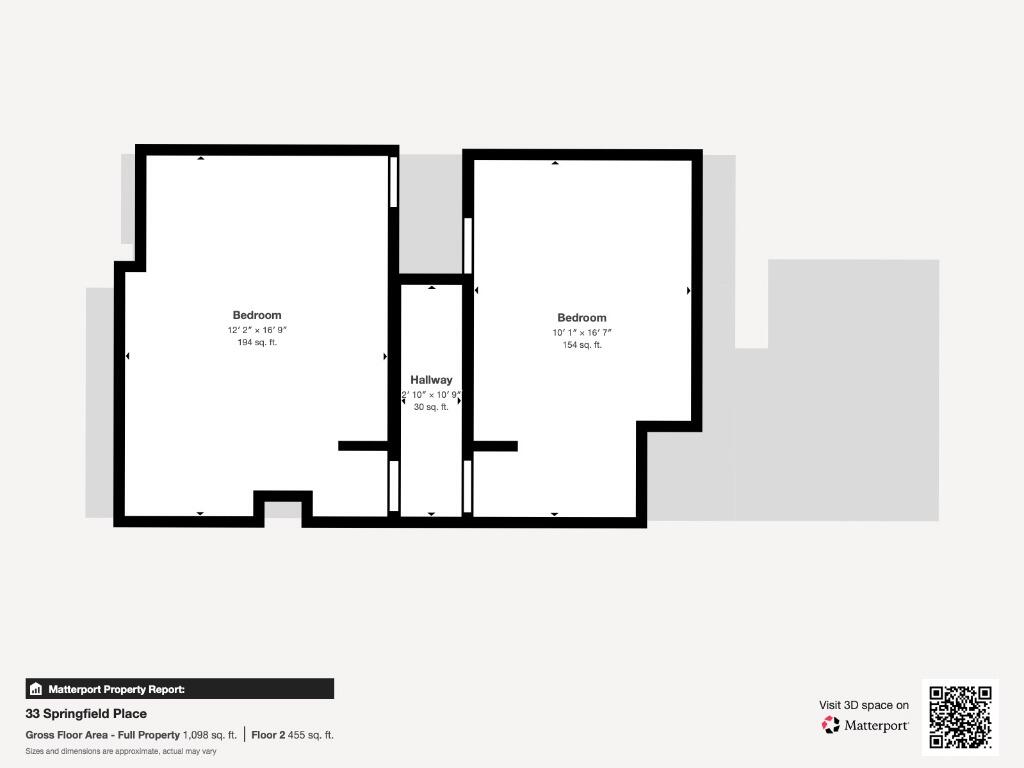
Full Description: This two-story property at 33 Springfield Place, Aberdeen, unfurnished, offers 915 sq. ft. of living space, including two large bedrooms, bathroom large living room and kitchen + sunroom. The ground floor spans 538 sq. ft., while the upper floor measures 377 sq. ft. The primary bedroom is notably spacious at 194 sq. ft..The interior features a mix of flooring, with light wooden floors in the living areas and kitchen, and carpeting in the bedrooms. Large windows, flood the rooms with natural light. The living room and bedrooms are particularly bright and airy.The kitchen is fitted with light wood cabinetry, white countertops, and modern appliances, including a built-in oven. A wooden ceiling adds warmth to the space. The bathroom is sleek and contemporary, with white fixtures and tiling, and includes amenities such as a shower and storage units.Throughout the property, white walls create a clean, neutral backdrop, allowing for personalization. Wooden doors with glass panels add character and facilitate light flow between rooms. Radiators are present in various rooms for heating.The property's layout includes a living room, Sun room, two bedrooms, hall and a kitchen, providing ample space for comfortable living. The overall design emphasizes brightness and openness, creating a welcoming atmosphere throughout this Aberdeen home. EPC rating: D. Landlord Registration Number: Pending. Letting Agent Registration Number: 1811019.

Location

Address

Springfield Place, Craigiebuckler, Aberdeen, AB15

City

Aberdeen City

Legal Notice

Our comprehensive database is populated by our meticulous research and analysis of public data. MirrorRealEstate strives for accuracy and we make every effort to verify the information. However, MirrorRealEstate is not liable for the use or misuse of the site's information. The information displayed on MirrorRealEstate.com is for reference only.

Real Estate Broker
Letts & Co Properties, Aberdeen
Brokerage
Letts & Co Properties, Aberdeen
Top Tags
Likes

0

Views

3

This website uses cookies to ensure you get the best experience. Learn more