St. James's Street, Brighton

GBP 300000 For Sale

Property Details

Bedrooms

1

Property Type

Apartment

Description

Property Details: • Type: Apartment • Tenure: N/A • Floor Area: N/A

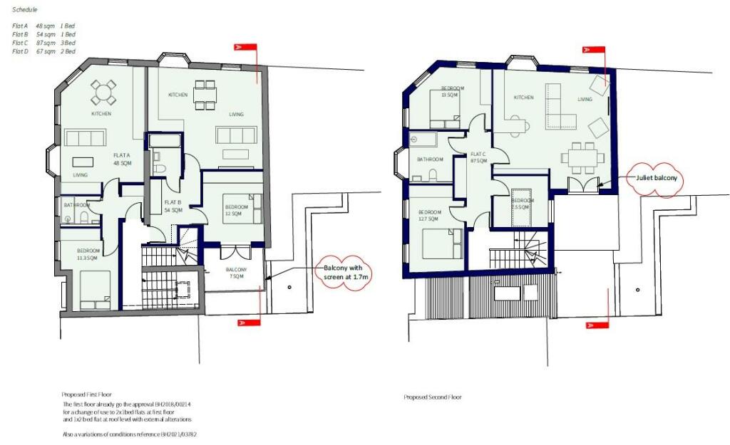
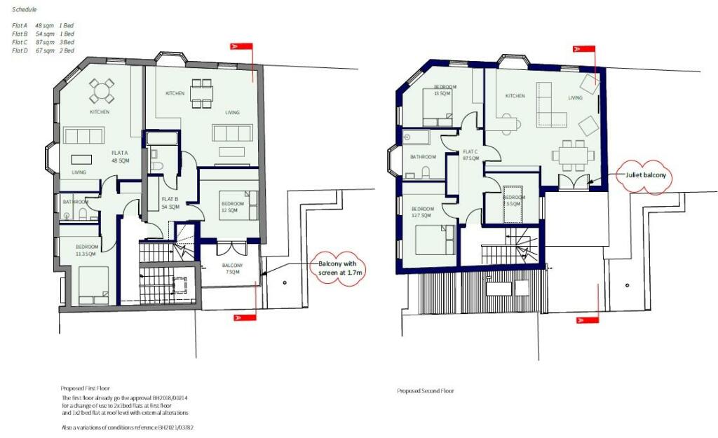
Key Features: • Auction Date 26th February 2025 • Fantastic Development Opportunity • Planning Permission Already Approved • Prime City Centre Location • 994 Years Remaining On Lease • Ground Rent Peppercorn

Location: • Nearest Station: N/A • Distance to Station: N/A

Agent Information: • Address: 174 Church Road, Hove, BN3 2DJ

Full Description: ** Pre Auction Offers Welcome **The upper parts of a prominent corner building with approved planning permission for the erection of two additional storeys to the existing building, creating space for two 1 bedroom flats, one 2 bedroom flat and one 3 bedroom flat. Located in the heart of Brighton, in the popular Kemptown district close to many amenities including Brighton Seafront, Brighton mainline train station and the many shops, cafes and restaurants in the City Centre. The self-contained first floor, which has its own direct entrance fronting Charles Street, currently comprises the former ancillary office/storage accommodation to the ground floor retail unit. Separation service/utility works have been completed to facilitate the developmentYou can find further information about the planning permission (Ref BH2022/03395) at the link below: This is without doubt a fantastic opportunity and should not be missed!BrochuresSt. James's Street, Brighton

Location

Address

St. James's Street, Brighton

City

St. James's Street

Features and Finishes

Auction Date 26th February 2025, Fantastic Development Opportunity, Planning Permission Already Approved, Prime City Centre Location, 994 Years Remaining On Lease, Ground Rent Peppercorn

Legal Notice

Our comprehensive database is populated by our meticulous research and analysis of public data. MirrorRealEstate strives for accuracy and we make every effort to verify the information. However, MirrorRealEstate is not liable for the use or misuse of the site's information. The information displayed on MirrorRealEstate.com is for reference only.

Real Estate Broker
Lextons Auctions, Sussex
Brokerage
Lextons Auctions, Sussex
Top Tags
two 1 bedroom flats one 2 bedroom flat
Likes

0

Views

69

This website uses cookies to ensure you get the best experience. Learn more